"20251216053646:H:0" "20251216053646:H:0" "20251216053646:H:0"
この物件にお問い合わせ
お問い合わせの内容を選択してください
03-5447-6678
(株)ルームワン
営業時間:10:00~19:00
定休日:水曜日
お電話の際は、SUUMOを見たとお伝えいただくとスムーズです。
(株)ルームワン
TEL: 03-5447-6678
※映像に誤りがある場合は こちら

部屋の特徴・設備

  • バストイレ別、エアコン、ガスコンロ対応、クロゼット、フローリング、シャワー付洗面台、TVインターホン、浴室乾燥機、オートロック、室内洗濯置、シューズボックス、システムキッチン、温水洗浄便座、脱衣所、エレベーター、洗面所独立、洗面化粧台、2口コンロ、駐輪場、宅配ボックス、光ファイバー、外壁タイル張り、敷金不要、防犯カメラ、ペット相談、照明付、分譲賃貸、保証人不要、2沿線利用可、ネット専用回線、テラス、保証金不要、24時間換気システム、耐火構造、2駅利用可、3駅以上利用可、3沿線以上利用可、駅徒歩5分以内、駅徒歩10分以内、24時間ゴミ出し可、敷地内ごみ置き場、都市ガス、洗面所にドア、玄関収納、BS、マルチメディアコンセント、年度内入居可、礼金1ヶ月、初期費用カード決済可

物件概要

情報の見方

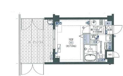
間取り詳細 洋7.6 K2.0 構造 鉄筋コン
階建 1階/6階建 築年月 2011年9月
エネルギー
消費性能
- 断熱性能 -
目安光熱費
  • -
損保 駐車場 -
入居 '26年1月上旬 取引態様 仲介
条件 ペット相談 取り扱い店舗
物件コード
M 284409
SUUMO
物件コード
100474517901 総戸数 -
情報更新日 2025/12/15 次回更新予定日 2025/12/23
敷金積み増し
  • ペット飼育の場合敷金1ヶ月(総額)
契約期間
  • 普通借家 2年
仲介手数料
  • 不要
保証会社
  • 保証会社利用必 初回保証料:総賃料50% 月額保証料:総賃料1.1%
ほか初期費用
  • 合計3.3万円(内訳:鍵交換代3.3万円)
ほか諸費用
  • 更新料 新賃料1.00ヶ月分 24時間サポート(保険料含む) 月額2200円
備考
  • 【仲介手数料無料(0円)対象物件】初期費用の分割・クレジットカード決済可能です。お気軽にご相談下さい。 ペット飼育時敷金1ヶ月積み増し、退去時償却。 退去時精算:室内クリーニング費用44000円、エアコン清掃費16500円。 1年未満の短期解約時違約金として総賃料の1ヶ月。

情報掲載元物件はこちら
この物件にお問い合わせ
お問い合わせの内容を選択してください
(株)ルームワン
営業時間:10:00~19:00/定休日:水曜日

店舗・物件ブランドのアピールポイント

この物件を取り扱う店舗

(株)ルームワン 取引態様:仲介
免許番号: 東京都知事(1)第106608号 / (公社)全日本不動産協会東京都本部会員 / (公社)首都圏不動産公正取引協議会加盟
  • 駅徒歩3分以内
  • 保証人不要相談可
  • 法人契約取扱
  • 社宅・寮対応
  • 賃貸保証対応
あなたに1番のお部屋探しを。
初期費用分割・クレジット決済可能。保証人不要・仲介手数料無料物件多数ございます。
東京都品川区東五反田1-12-13 親切堂ビル4階
10:00~19:00
定休日: 水曜日
JR山手線/五反田駅 歩1分
都営浅草線/五反田駅 歩1分
東急池上線/五反田駅 歩1分
03-5447-6678
  • 部屋情報
  • 地図・周辺環境

【掲載物件情報について】

・SUUMOは「自ら居住するための住宅」をお探しの方に向けたポータルサイトです。契約者以外の方が使用する(例:第三者に宿泊させる等)ことを目的としたお問合せはご遠慮ください


・SUUMOではユーザーの皆様に最も信頼されるサイトを目指して、物件情報の精度向上に努めております。SUUMOに掲載されている物件情報について「事実と異なる点や誤解を招く表現がある」「成約済の物件が掲載されている」などにお気づきになりましたら、以下のページからご連絡ください

その他の情報

(株)ルームワンのその他取り扱い物件

最寄駅から探す

最寄駅の沿線から探す

関連エリアから不動産情報を探す

ページトップへ戻る

お気に入りに追加しました。