"20260209184520:H:0" "20260209184520:H:0" "20260209184520:H:0"

都営大江戸線 勝どき駅 地下2地上58階建 築19年

この物件にお問い合わせ
お問い合わせの内容を選択してください
03-6457-7618
とらいち不動産 本店(株)TORAICHI
営業時間:9時~21時
定休日:なし
お電話の際は、SUUMOを見たとお伝えいただくとスムーズです。
とらいち不動産 本店(株)TORAICHI
TEL: 03-6457-7618
※映像に誤りがある場合は こちら

部屋の特徴・設備

  • バストイレ別、バルコニー、エアコン、クロゼット、フローリング、浴室乾燥機、オートロック、室内洗濯置、陽当り良好、シューズボックス、システムキッチン、追焚機能浴室、温水洗浄便座、エレベーター、洗面所独立、洗面化粧台、駐輪場、宅配ボックス、CATV、光ファイバー、礼金不要、3口以上コンロ、防犯カメラ、独立型キッチン、ペット相談、IHクッキングヒーター、グリル付、全居室洋室、ウォークインクロゼット、保証人不要、単身者相談、二人入居相談、バイク置場、オール電化、2沿線利用可、駅まで平坦、ネット使用料不要、敷金2ヶ月、眺望良好、24時間換気システム、楽器相談、LDK20畳以上、フロントサービス、リバーサイド、学生相談、2駅利用可、3駅以上利用可、3沿線以上利用可、駅前、区画整理地内、駅徒歩10分以内、タワー型マンション、高層階、24時間ゴミ出し可、敷地内ごみ置き場、全居室6畳以上、都市ガス、保証会社利用可、通風良好

物件概要

情報の見方

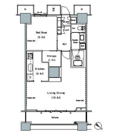
間取り詳細 洋8 LDK20.8 構造 鉄筋コン
階建 7階/地下2地上58階建 築年月 2008年1月
エネルギー
消費性能
- 断熱性能 -
目安光熱費
  • -
損保 駐車場 敷地内50710円
入居 相談 取引態様 仲介
条件 二人入居可/子供可/ペット相談/楽器相談 取り扱い店舗
物件コード
941663
SUUMO
物件コード
100482599309 総戸数 813戸
情報更新日 2026/02/08 次回更新予定日 2026/02/23
敷金積み増し
  • ペット飼育の場合敷金3ヶ月(総額)
契約期間
  • 普通借家 2年
保証会社
  • 保証会社利用必 初回保証料:賃料等の50%・複数ご用意有り・詳細はお問い合わせください
ほか諸費用
  • 更新料 新賃料1.00ヶ月分
備考
  • 常駐管理

情報掲載元物件はこちら
この物件にお問い合わせ
お問い合わせの内容を選択してください
とらいち不動産 本店(株)TORAICHI
営業時間:9時~21時/定休日:なし

この物件を取り扱う店舗

とらいち不動産 本店(株)TORAICHI 取引態様:仲介
免許番号: 東京都知事(1)第110397号 / (公社)全日本不動産協会東京都本部会員 / (公社)首都圏不動産公正取引協議会加盟
  • 駅徒歩3分以内
  • 19時以降も営業
  • 年中無休
  • 保証人不要相談可
  • 引越会社紹介
【高級賃貸】のお部屋探しはお任せください!~新宿区・千代田区・中央区・文京区・江東区・港区・渋谷区・目黒区~
東京都新宿区四谷三栄町 2-1 第一萬寿ビル202
9時~21時
定休日: なし
JR中央線/四ツ谷駅 歩2分
東京メトロ丸ノ内線/四谷三丁目駅 歩9分
03-6457-7618
  • 部屋情報
  • 地図・周辺環境
  • エリアの口コミ

【掲載物件情報について】

・SUUMOは「自ら居住するための住宅」をお探しの方に向けたポータルサイトです。契約者以外の方が使用する(例:第三者に宿泊させる等)ことを目的としたお問合せはご遠慮ください


・SUUMOではユーザーの皆様に最も信頼されるサイトを目指して、物件情報の精度向上に努めております。SUUMOに掲載されている物件情報について「事実と異なる点や誤解を招く表現がある」「成約済の物件が掲載されている」などにお気づきになりましたら、以下のページからご連絡ください

その他の情報

とらいち不動産 本店(株)TORAICHIのその他取り扱い物件

全物件を一覧表示する

最寄駅から探す

最寄駅の沿線から探す

関連エリアから不動産情報を探す

ページトップへ戻る

お気に入りに追加しました。