"20251211230004:H:0" "20251211230004:H:0" "20251211230004:H:0"
この物件にお問い合わせ
お問い合わせの内容を選択してください
050-3557-5186
(株)デュアルアシスト
お電話の際は、SUUMOを見たとお伝えいただくとスムーズです。

部屋の特徴・設備

  • バストイレ別、バルコニー、エアコン、クロゼット、フローリング、TVインターホン、浴室乾燥機、オートロック、室内洗濯置、シューズボックス、システムキッチン、南向き、追焚機能浴室、温水洗浄便座、エレベーター、洗面所独立、2口コンロ、駐輪場、宅配ボックス、CATV、礼金不要、BS・CS、3口以上コンロ、対面式キッチン、防犯カメラ、分譲賃貸、グリル付、二人入居相談、全居室フローリング、2沿線利用可、CS、ネット専用回線、駅まで平坦、24時間換気システム、平坦地、2駅利用可、駅徒歩10分以内、24時間ゴミ出し可、敷地内ごみ置き場、専有面積30坪以上、専有面積25坪以上、LDK12畳以上、都市ガス、BS、初期費用カード決済可

物件概要

情報の見方

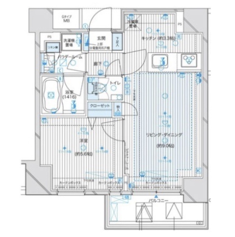
間取り詳細 洋5.6 LDK12.3 構造 鉄筋コン
階建 6階/14階建 築年月 2011年7月
エネルギー
消費性能
- 断熱性能 -
目安光熱費
  • -
損保 - 駐車場 -
入居 相談 取引態様 仲介
条件 二人入居可 取り扱い店舗
物件コード
-
SUUMO
物件コード
100465046356 総戸数 -
情報更新日 2025/12/04 次回更新予定日 2025/12/12
契約期間
  • 普通借家 2年
保証会社
  • オリコフォレントインシュア利用必 保証料/初回契約時/50パーセント 保証料/更新時/10000円/年毎10000円 月額330円税込 外国籍の場合GTN70パーセントプランプラス敷金1ヶ月分増額/1ヶ月償却
ほか初期費用
  • 合計7.37万円(内訳:鍵交換費用33000円 契約事務手数料11000円/入居時 24h生活サポート16500円/入居時 室内抗菌費用13200円/入居時)
ほか諸費用
  • 短期解約違約金有→1年未満:賃料2ヶ月分 解約予告1ヶ月前 敷金退去時1ヶ月分償却/原状回復費含む
備考
  • BS/CS/インターネット対応/要確認 先行契約不可/ベトナム国籍不可/生活保護不可 ワーキングホリデー不可 留学生含む外国籍相談可能

情報掲載元物件はこちら
この物件にお問い合わせ
お問い合わせの内容を選択してください
050-3557-5186
(株)デュアルアシスト

この物件を取り扱う店舗

(株)デュアルアシスト 取引態様:仲介
免許番号: 埼玉県知事(2)第23743号 / (公社)全日本不動産協会埼玉県本部会員 / (公社)首都圏不動産公正取引協議会加盟
  • 19時以降も営業
  • 駅まで車送迎
  • 保証人不要相談可
  • 入居ローン
★物件現地でのお待ち合わせOK★諸条件ご相談に乗ります★
埼玉県川口市芝下1-8-13
-
定休日: -
JR京浜東北線/蕨駅 駅より車(1.4km)

050-3557-5186
  • 部屋情報
  • 地図・周辺環境
  • エリアの口コミ

【掲載物件情報について】

・SUUMOは「自ら居住するための住宅」をお探しの方に向けたポータルサイトです。契約者以外の方が使用する(例:第三者に宿泊させる等)ことを目的としたお問合せはご遠慮ください


・SUUMOではユーザーの皆様に最も信頼されるサイトを目指して、物件情報の精度向上に努めております。SUUMOに掲載されている物件情報について「事実と異なる点や誤解を招く表現がある」「成約済の物件が掲載されている」などにお気づきになりましたら、以下のページからご連絡ください

その他の情報

(株)デュアルアシストのその他取り扱い物件

全物件を一覧表示する

最寄駅から探す

最寄駅の沿線から探す

関連エリアから不動産情報を探す

ページトップへ戻る

お気に入りに追加しました。