"20251210181532:H:0" "20251210181532:H:0" "20251210181532:H:0"
この物件にお問い合わせ
お問い合わせの内容を選択してください
072-349-0678
関西リビング不動産リアルティ(株)松原店
営業時間:9:30~18:30
定休日:8/13~8/15
お電話の際は、SUUMOを見たとお伝えいただくとスムーズです。

部屋の特徴・設備

  • バストイレ別、バルコニー、エアコン、クロゼット、フローリング、TVインターホン、オートロック、室内洗濯置、シューズボックス、システムキッチン、温水洗浄便座、洗面所独立、2口コンロ、駐輪場、宅配ボックス、礼金不要、敷金不要、IHクッキングヒーター、2沿線利用可、ネット使用料不要、築2年以内、学生相談、2駅利用可、3駅以上利用可、駅徒歩5分以内、駅徒歩10分以内、敷地内ごみ置き場、東南向き、都市ガス、年内入居可、IT重説 対応物件、初期費用カード決済可

物件概要

情報の見方

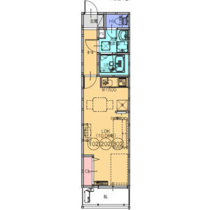
間取り詳細 LDK10.0 構造 木造
階建 1階/3階建 築年月 2025年9月
エネルギー
消費性能
- 断熱性能 -
目安光熱費
  • -
損保 駐車場 敷地内9900円
入居 取引態様 仲介
条件 単身者限定 取り扱い店舗
物件コード
3643263
SUUMO
物件コード
100472036036 総戸数 18戸
情報更新日 2025/12/09 次回更新予定日 2025/12/24
契約期間
  • 普通借家 2年
保証会社
  • 保証会社利用必 お問い合わせください
備考
  • 現地お待ち合わせやご送迎等は勿論、遠方のお客様へはオンライン契約もご対応可能です★インターネット未公開物件のご紹介や、初期費用の分割支払い、保証人不要物件や福祉可能物件等、どんなご相談もお気軽にお問合せ下さい。きっと上手くいきます。

情報掲載元物件はこちら
この物件にお問い合わせ
お問い合わせの内容を選択してください
関西リビング不動産リアルティ(株)松原店
営業時間:9:30~18:30/定休日:8/13~8/15

この物件を取り扱う店舗

関西リビング不動産リアルティ(株)松原店 取引態様:仲介
免許番号: 大阪府知事(2)第59912号 / (公社)全日本不動産協会大阪府本部会員 / (公社)近畿地区不動産公正取引協議会加盟
  • 駅徒歩3分以内
  • 駐車場あり
  • 売買取扱あり
  • 保証人不要相談可
  • 24時間管理
不動産の事なら関西リビング不動産松原店へ!賃貸・売買は勿論、不動産全般をお取り扱いしております。
大阪府松原市上田3-1-18
9:30~18:30
定休日: 8/13~8/15
近鉄南大阪線/河内松原駅 歩1分
近鉄南大阪線/高見ノ里駅 歩13分
近鉄南大阪線/恵我ノ荘駅 歩23分
072-349-0678
  • 部屋情報
  • 地図・周辺環境
  • エリアの口コミ

【掲載物件情報について】

・SUUMOは「自ら居住するための住宅」をお探しの方に向けたポータルサイトです。契約者以外の方が使用する(例:第三者に宿泊させる等)ことを目的としたお問合せはご遠慮ください


・SUUMOではユーザーの皆様に最も信頼されるサイトを目指して、物件情報の精度向上に努めております。SUUMOに掲載されている物件情報について「事実と異なる点や誤解を招く表現がある」「成約済の物件が掲載されている」などにお気づきになりましたら、以下のページからご連絡ください

その他の情報

関西リビング不動産リアルティ(株)松原店のその他取り扱い物件

全物件を一覧表示する

最寄駅から探す

最寄駅の沿線から探す

関連エリアから不動産情報を探す

ページトップへ戻る

お気に入りに追加しました。