"20251216161557:H:0" "20251216161557:H:0" "20251216161557:H:0"
この物件にお問い合わせ
お問い合わせの内容を選択してください
06-6569-9883
homie home あべの昭和町店(株)Advanced Creators
営業時間:10:00~19:00
定休日:水曜定休
お電話の際は、SUUMOを見たとお伝えいただくとスムーズです。

部屋の特徴・設備

  • バストイレ別、バルコニー、エアコン、ガスコンロ対応、クロゼット、フローリング、シャワー付洗面台、TVインターホン、浴室乾燥機、室内洗濯置、シューズボックス、システムキッチン、追焚機能浴室、角住戸、温水洗浄便座、脱衣所、洗面所独立、洗面化粧台、2口コンロ、駐輪場、光ファイバー、礼金不要、閑静な住宅地、最上階、敷金不要、全居室洋室、保証人不要、二人入居相談、全居室フローリング、デザイナーズ、2沿線利用可、仲手0.55ヶ月、ディンプルキー、ネット専用回線、ネット使用料不要、保証金不要、3駅以上利用可、駅徒歩10分以内、敷地内ごみ置き場、プロパンガス、洗面所にドア、室内物干機、ダウンライト、年度内入居可、敷金・礼金不要、保証会社利用可

物件概要

情報の見方

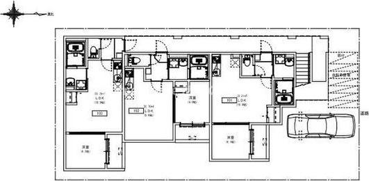
間取り詳細 洋4.1 LDK10.0 構造 木造
階建 3階/3階建 築年月 2018年10月
エネルギー
消費性能
- 断熱性能 -
目安光熱費
  • -
損保 駐車場 -
入居 '26年1月下旬 取引態様 仲介
条件 二人入居可 取り扱い店舗
物件コード
123835
SUUMO
物件コード
100472261299 総戸数 9戸
情報更新日 2025/12/15 次回更新予定日 2025/12/23
契約期間
  • 普通借家 2年
仲介手数料
  • 0.55ヶ月
保証会社
  • オリコ利用必 総賃料の100%(支払手数料2%)
ほか初期費用
  • 合計4.95万円(内訳:入居者アプリ設定費 入居時1.65万円 鍵交換代3.3万円)
ほか諸費用
  • 町内会費 月額550円 ルームサポートサービス 月額2700円

情報掲載元物件はこちら
この物件にお問い合わせ
お問い合わせの内容を選択してください
homie home あべの昭和町店(株)Advanced Creators
営業時間:10:00~19:00/定休日:水曜定休

この物件を取り扱う店舗

homie home あべの昭和町店(株)Advanced Creators 取引態様:仲介
免許番号: 大阪府知事(1)第66435号 / (一社)大阪府宅地建物取引業協会会員 / (公社)近畿地区不動産公正取引協議会加盟
  • 駅徒歩3分以内
  • 保証人不要相談可
  • コンサル
  • 女性スタッフ
  • 賃貸保証対応
騙されたらアカン!他社より1円でも安くて、安心をモットーに!カラクリ全公開のhomie home あべの昭和町店
大阪府大阪市阿倍野区阪南町2-5-24 J-ARC昭和町1階
10:00~19:00
定休日: 水曜定休
地下鉄御堂筋線/昭和町駅 歩1分
地下鉄谷町線/文の里駅 歩8分
06-6569-9883
  • 部屋情報
  • 地図・周辺環境
  • エリアの口コミ

【掲載物件情報について】

・SUUMOは「自ら居住するための住宅」をお探しの方に向けたポータルサイトです。契約者以外の方が使用する(例:第三者に宿泊させる等)ことを目的としたお問合せはご遠慮ください


・SUUMOではユーザーの皆様に最も信頼されるサイトを目指して、物件情報の精度向上に努めております。SUUMOに掲載されている物件情報について「事実と異なる点や誤解を招く表現がある」「成約済の物件が掲載されている」などにお気づきになりましたら、以下のページからご連絡ください

その他の情報

homie home あべの昭和町店(株)Advanced Creatorsのその他取り扱い物件

全物件を一覧表示する

最寄駅から探す

最寄駅の沿線から探す

関連エリアから不動産情報を探す

ページトップへ戻る

お気に入りに追加しました。