ハーモニーレジデンス浅草#002 - リブマックス上野店(株)リブ・マックスが提供する賃貸物件情報/東京都台東区寿4/田原町駅の賃貸物件情報 - SUUMO(スーモ)賃貸
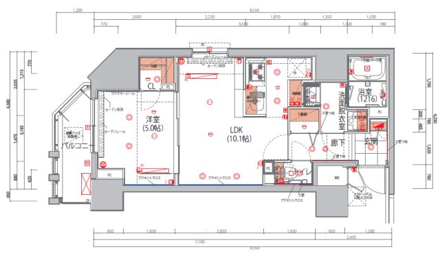
| 間取り詳細 | 洋5 LDK10.1 | 構造 | 鉄筋コン |
|---|---|---|---|
| 階建 | 7階/13階建 | 築年月 | 2017年8月 |
| エネルギー 消費性能 |
- | 断熱性能 | - |
| 目安光熱費 |
|
||
| 損保 | 2万円2年 | 駐車場 | - |
| 入居 | '26年6月下旬 | 取引態様 | 仲介 |
| 条件 | ペット相談/事務所利用不可 | 取り扱い店舗 物件コード |
6882533 |
| SUUMO 物件コード |
100502092573 | 総戸数 | - |
| 情報更新日 | 2026/04/16 | 次回更新予定日 | 2026/04/24 |
| 契約期間 |
|
||
| 保証会社 |
|
||
| ほか初期費用 |
|
||
| ほか諸費用 |
|
||
| 備考 |
|
||
| 周辺情報 |
|
携帯用QRコード | |

TEL:03-5827-5656
都内全域の人気エリア・おすすめエリアのお部屋探しを強力サポート致します!
リブマックス上野店では台東区・文京区・墨田区はもちろん、都内全域の新築物件・ペット物件・デザイナーズ物件・ファミリー物件など多種多様な物件情報をご用意しております。
当社の提案する家具・家電付SETUP賃貸も都内で約5000室ほど展開しております。
SETUP賃貸は生活に必要な家具・家電が揃った状態でお部屋をお貸しするので、引越しの手間や費用を抑え、新生活をスタートできるので、急なご転勤の方、短期出張の方などにお勧めのニュースタイル賃貸マンションです。
【掲載物件情報について】
・SUUMOは「自ら居住するための住宅」をお探しの方に向けたポータルサイトです。契約者以外の方が使用する(例:第三者に宿泊させる等)ことを目的としたお問合せはご遠慮ください
・SUUMOではユーザーの皆様に最も信頼されるサイトを目指して、物件情報の精度向上に努めております。SUUMOに掲載されている物件情報について「事実と異なる点や誤解を招く表現がある」「成約済の物件が掲載されている」などにお気づきになりましたら、以下のページからご連絡ください
|
11.6万円/1DK
|
16.9万円/1LDK
|
12.5万円/1DK
|
|
16.5万円/1LDK
|
9.9万円/1K
|
19万円/2DK
|
|
20.2万円/2LDK
|
20.2万円/1LDK
|
13.9万円/1DK
|
|
15.5万円/1LDK
|
12.6万円/1K
|
25.5万円/2LDK
|
|
17.3万円/1LDK
|
13.5万円/1DK
|
15.25万円/1LDK
|
|
11.47万円/1DK
|
22.2万円/2DK
|
11.9万円/1K
|
|
10.5万円/1K
|
24.5万円/1LDK
|
12.7万円/1LDK
|
|
17.4万円/1LDK
|
16.5万円/2K
|
13.9万円/1LDK
|
|
14万円/1LDK
|
8.8万円/1LDK
|
20.7万円/2LDK
|
|
18万円/1LDK
|
12.2万円/1K
|
9.4万円/ワンルーム
|
お気に入りに追加しました。 |