阪急京都線 正雀駅 3階建 新築 - ホームメイトFC千里丘駅前店(株)サイラスが提供する賃貸物件情報/大阪府摂津市正雀3/正雀駅の賃貸物件情報 - SUUMO(スーモ)賃貸
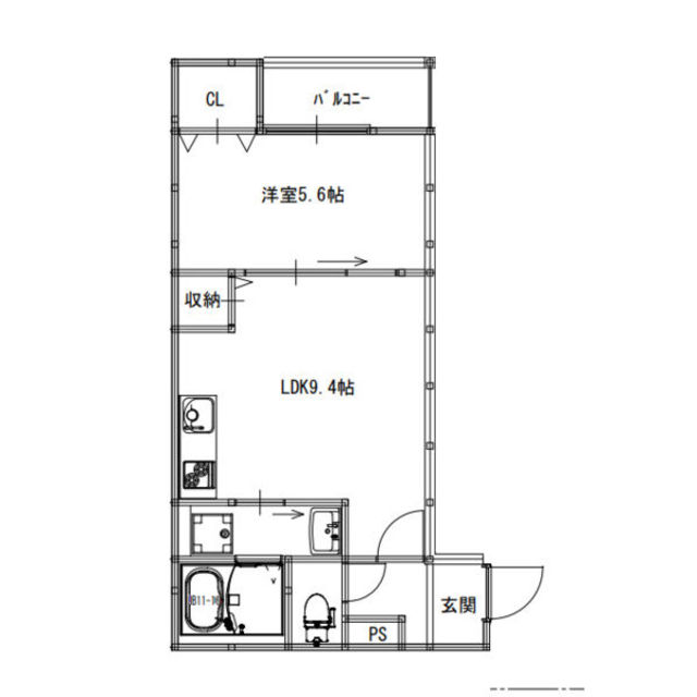
| 間取り詳細 | 洋5.6 LDK9.4 | 構造 | 木造 |
|---|---|---|---|
| 階建 | 1階/3階建 | 築年月 | 2026年6月 |
| エネルギー 消費性能 |
- | 断熱性能 | - |
| 目安光熱費 |
|
||
| 損保 | 要 | 駐車場 | 近隣200m12100円 |
| 入居 | '26年7月上旬 | 取引態様 | 仲介 |
| 条件 | 単身者可/二人入居可/子供可 | 取り扱い店舗 物件コード |
70895139 |
| SUUMO 物件コード |
100501963306 | 総戸数 | 12戸 |
| 情報更新日 | 2026/04/16 | 次回更新予定日 | 2026/04/24 |
| 契約期間 |
|
||
| 保証会社 |
|
||
| ほか初期費用 |
|
||
| ほか諸費用 |
|
||
| 備考 |
|
||
| 周辺情報 |
|
携帯用QRコード | |

TEL:072-648-7009
JR千里丘駅から2分・阪急摂津市駅から5分のところに当店がございます。ぜひお立ち寄りくださいませ!
当店では、安心して新生活を送って頂けますよう精一杯のサポートを致します。当店はJR千里丘駅前にございます。阪急摂津市駅も徒歩圏内でございます。北摂・京都方面・大阪市内などお気軽にご要望をお伝えください!!精一杯お探し致します(^^)/初期費用のクレジット決済も当店は可能ですので、ご利用の際はスタッフまでお申し付け下さいませ。お客様のご来店心よりお待ちしております(^o^)/
【掲載物件情報について】
・SUUMOは「自ら居住するための住宅」をお探しの方に向けたポータルサイトです。契約者以外の方が使用する(例:第三者に宿泊させる等)ことを目的としたお問合せはご遠慮ください
・SUUMOではユーザーの皆様に最も信頼されるサイトを目指して、物件情報の精度向上に努めております。SUUMOに掲載されている物件情報について「事実と異なる点や誤解を招く表現がある」「成約済の物件が掲載されている」などにお気づきになりましたら、以下のページからご連絡ください
|
12.2万円/1LDK
|
6.62万円/1K
|
9.65万円/1LDK
|
|
16.6万円/2LDK
|
14万円/3LDK
|
7.8万円/1K
|
|
16万円/2LDK
|
6.4万円/1LDK
|
4.5万円/1K
|
|
5.8万円/1K
|
5.05万円/1K
|
8万円/1LDK
|
|
8万円/1K
|
14.3万円/1LDK
|
16.1万円/1SLDK
|
|
6.6万円/1DK
|
9.95万円/2LDK
|
21万円/3LDK
|
|
9万円/1SLDK
|
5.7万円/1K
|
6.6万円/1LDK
|
|
10.8万円/1SLDK
|
4.8万円/1K
|
5.9万円/1K
|
|
6.45万円/1DK
|
6万円/1K
|
5.5万円/1K
|
|
12万円/1LDK
|
20.1万円/2LDK
|
10万円/2LDK
|
お気に入りに追加しました。 |