エスリード天王寺ブランシェ - (株)エーポジション中崎町店が提供する賃貸物件情報/大阪府大阪市天王寺区国分町/寺田町駅の賃貸物件情報 - SUUMO(スーモ)賃貸
パノラマ
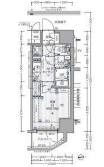
| 間取り詳細 | 洋6 K2.5 | 構造 | 鉄筋コン |
|---|---|---|---|
| 階建 | 14階/15階建 | 築年月 | 2020年3月 |
| エネルギー 消費性能 |
- | 断熱性能 | - |
| 目安光熱費 |
|
||
| 損保 | 1.8万円2年 | 駐車場 | 近隣150m33000円 |
| 入居 | '26年6月下旬 | 取引態様 | 仲介 |
| 条件 | ペット相談 | 取り扱い店舗 物件コード |
661282 |
| SUUMO 物件コード |
100501898978 | 総戸数 | 56戸 |
| 情報更新日 | 2026/04/16 | 次回更新予定日 | 2026/04/24 |
| バルコニー面積 |
|
||
| 契約期間 |
|
||
| 保証会社 |
|
||
| ほか初期費用 |
|
||
| ほか諸費用 |
|
||
| 備考 |
|
||
| 周辺情報 |
|
携帯用QRコード | |

TEL:06-6372-5666
どこよりも、お得な条件でお部屋を借りていただけます!北区、梅田周辺はもちろん、大阪府内どこのエリアでもお探し可能
当店にご来店いただいたお客様に各種キャンペーンをご用意しております!当店は、大阪メトロ谷町線「中崎町」駅から徒歩1分と分かりやすい立地にございます!ご要望があればお迎えサービスも行っております。お部屋探しについて「初期費用を出来る限り抑えたい」「保証人なしの物件物件を探している」「お洒落なお部屋を探している」など、何でもご相談下さい。お客様にとって大切なお部屋を誠心誠意ご納得していただくまでスタッフ一同、全力でお探しさせていただきます。また、引越業者も提携しておりますので、お得にお引越可能ですよ!お部屋探しは「エーポジション中崎町店」へお任せ下さい!
【掲載物件情報について】
・SUUMOは「自ら居住するための住宅」をお探しの方に向けたポータルサイトです。契約者以外の方が使用する(例:第三者に宿泊させる等)ことを目的としたお問合せはご遠慮ください
・SUUMOではユーザーの皆様に最も信頼されるサイトを目指して、物件情報の精度向上に努めております。SUUMOに掲載されている物件情報について「事実と異なる点や誤解を招く表現がある」「成約済の物件が掲載されている」などにお気づきになりましたら、以下のページからご連絡ください
|
7.8万円/1K
|
13.1万円/1LDK
|
12.2万円/1LDK
|
|
7.61万円/1K
|
7.18万円/1K
|
9.05万円/1K
|
|
20万円/1SLK
|
7.65万円/1K
|
7.8万円/1K
|
|
19.5万円/2LDK
|
9.8万円/1DK
|
10.95万円/1LDK
|
|
9.2万円/1K
|
7万円/1K
|
9.5万円/2K
|
|
8.7万円/1DK
|
7.6万円/1K
|
17.5万円/2LDK
|
|
23.5万円/2LDK
|
14.8万円/1LDK
|
10.2万円/ワンルーム
|
|
15.3万円/1K
|
11.5万円/1DK
|
7.39万円/1K
|
|
6.8万円/1K
|
18.5万円/1SLDK
|
11.1万円/1LDK
|
|
18.3万円/2LDK
|
7.25万円/ワンルーム
|
16.3万円/1SLDK
|
お気に入りに追加しました。 |