"20260416151128:H:0" "20260416151128:H:0" "20260416151128:H:0"

パークハビオ渋谷 710号室 - (株)LOHOUSE三田店が提供する賃貸物件情報

部屋の特徴・設備

  • バストイレ別、バルコニー、エアコン、ガスコンロ対応、フローリング、TVインターホン、浴室乾燥機、オートロック、室内洗濯置、追焚機能浴室、温水洗浄便座、エレベーター、2口コンロ、宅配ボックス、防犯カメラ、ペット相談、照明付、CS、楽器相談、キッズルーム、BS

物件概要

情報の見方

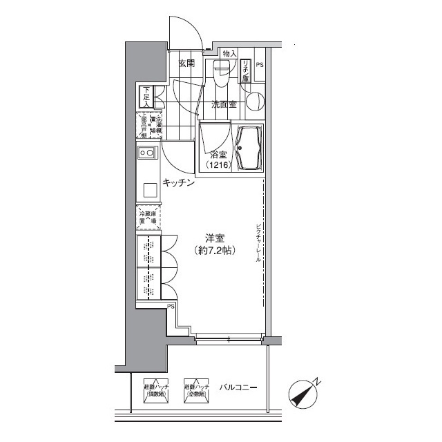
間取り詳細 洋7.2 構造 鉄筋コン
階建 7階/地下1地上14階建 築年月 2012年2月
エネルギー
消費性能
- 断熱性能 -
目安光熱費
  • -
損保 駐車場 -
入居 取引態様 仲介
条件 ペット相談/楽器相談/事務所利用相談 取り扱い店舗
物件コード
547299
SUUMO
物件コード
100501897614 総戸数 154戸
情報更新日 2026/04/15 次回更新予定日 2026/04/23
バルコニー面積
  • 6.46m2
契約期間
  • 普通借家 2年
保証会社
  • オリコフォレントインシュア利用必 初年度保証料:賃料等合計額の50%(最低保証料3万円)毎月:賃料等合計額の1.3%
ほか初期費用
  • 合計3.3万円(内訳:鍵交換代3.3万円)
ほか諸費用
  • 更新料 165000円
 
周辺情報
    -

周辺環境を見る

携帯用QRコード
このQRコードを読み取ることで、
ケータイでも物件情報を見ることができます。

物件情報をメールに送る

この物件にお問い合わせ
お問い合わせの内容を選択してください
03-6809-4653
(株)LOHOUSE三田店
営業時間:10:00~18:30 / 定休日:水曜日

取り扱い店舗

【店舗写真】(株)LOHOUSE三田店

(株)LOHOUSE三田店

TEL:03-6809-4653

賃貸も売買もお気軽にご相談ください。

経験豊富なスタッフがパーソナルなライフスタイルの提案を心掛ける不動産仲介会社です。港区を中心とし、中央区・品川区・目黒区・渋谷区・世田谷区など都内全般幅広い土地勘と知識で賃貸仲介・戸建・マンション売買を行っております。

  • 住所: 東京都港区三田3-1-19 第12シグマビルディング三田5階
  • 営業時間: 10:00~18:30
  • 定休日: 水曜日
  • 免許番号: 東京都知事(2)第99461号 / (公社)全日本不動産協会東京都本部会員 / (公社)首都圏不動産公正取引協議会加盟
  • 取引態様: 仲介
  • 部屋情報
  • 地図・周辺環境
  • 取り扱い店舗の情報
  • エリアの口コミ

【掲載物件情報について】

・SUUMOは「自ら居住するための住宅」をお探しの方に向けたポータルサイトです。契約者以外の方が使用する(例:第三者に宿泊させる等)ことを目的としたお問合せはご遠慮ください


・SUUMOではユーザーの皆様に最も信頼されるサイトを目指して、物件情報の精度向上に努めております。SUUMOに掲載されている物件情報について「事実と異なる点や誤解を招く表現がある」「成約済の物件が掲載されている」などにお気づきになりましたら、以下のページからご連絡ください

その他の情報

(株)LOHOUSE三田店のその他取り扱い物件

全物件を一覧表示する

最寄駅から探す

最寄駅の沿線から探す

関連エリアから不動産情報を探す

ページトップへ戻る

お気に入りに追加しました。