パークキューブ愛宕山タワー - リブ・マックス東京駅前店(株)リブマックスリーシングが提供する賃貸物件情報/東京都港区西新橋3/神谷町駅の賃貸物件情報 - SUUMO(スーモ)賃貸
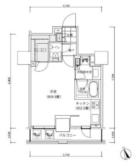
| 間取り詳細 | 洋9.5 K2.5 | 構造 | 鉄筋コン |
|---|---|---|---|
| 階建 | 22階/地下1地上31階建 | 築年月 | 2007年2月 |
| エネルギー 消費性能 |
- | 断熱性能 | - |
| 目安光熱費 |
|
||
| 損保 | 2万円2年 | 駐車場 | - |
| 入居 | 即 | 取引態様 | 仲介 |
| 条件 | ペット相談 | 取り扱い店舗 物件コード |
6877750 |
| SUUMO 物件コード |
100501845890 | 総戸数 | - |
| 情報更新日 | 2026/04/15 | 次回更新予定日 | 2026/04/23 |
| 敷金積み増し |
|
||
| 契約期間 |
|
||
| 保証会社 |
|
||
| ほか初期費用 |
|
||
| ほか諸費用 |
|
||
| 備考 |
|
||
| 周辺情報 |
|
携帯用QRコード | |

TEL:03-3274-3500
家具・家電付きレジデンシャル型賃貸マンションなら当社シェアNO.1!仲介手数料は半月分~最大無料!
リブ・マックスでは、東京都内はもちろん全国規模でお部屋探しをお手伝いしています。単身者向けからファミリー向け、ペット可物件など、多数の新鮮な物件情報をご用意してお待ちしております。遠方からのお部屋探し、法人契約でのお部屋探し、学生さんのお部屋探しなど多様な御要望にも、経験のある明るいスタッフがお応えいたしますので、是非お気軽にご来店ください。お待ちしております!!
【掲載物件情報について】
・SUUMOは「自ら居住するための住宅」をお探しの方に向けたポータルサイトです。契約者以外の方が使用する(例:第三者に宿泊させる等)ことを目的としたお問合せはご遠慮ください
・SUUMOではユーザーの皆様に最も信頼されるサイトを目指して、物件情報の精度向上に努めております。SUUMOに掲載されている物件情報について「事実と異なる点や誤解を招く表現がある」「成約済の物件が掲載されている」などにお気づきになりましたら、以下のページからご連絡ください
|
22.6万円/1LDK
|
35万円/2LDK
|
18.8万円/1LDK
|
|
12.7万円/1DK
|
18.5万円/1LDK
|
14.2万円/1DK
|
|
12.8万円/1K
|
31.9万円/3LDK
|
27.5万円/1LDK
|
|
24万円/2LDK
|
13.7万円/1K
|
41.5万円/2LDK
|
|
18.7万円/1LDK
|
13.9万円/1DK
|
26.8万円/2LDK
|
|
12.1万円/1K
|
23.7万円/1LDK
|
19.6万円/1LDK
|
|
26.5万円/2LDK
|
29.5万円/1LDK
|
12.4万円/ワンルーム
|
|
21.5万円/1LDK
|
11.9万円/1K
|
31.5万円/2LDK
|
|
12.4万円/1K
|
12万円/1K
|
11.6万円/1K
|
|
26.1万円/2LDK
|
39.5万円/2LDK
|
40.5万円/4LDK
|
お気に入りに追加しました。 |