パークキューブ愛宕山タワー - リブマックス恵比寿店(株)リブ・マックスが提供する賃貸物件情報/東京都港区西新橋3/御成門駅の賃貸物件情報 - SUUMO(スーモ)賃貸
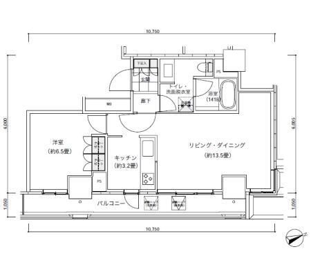
| 間取り詳細 | 洋6.6 LD12.5K3.1 | 構造 | 鉄筋コン |
|---|---|---|---|
| 階建 | 28階/地下1地上31階建 | 築年月 | 2007年2月 |
| エネルギー 消費性能 |
- | 断熱性能 | - |
| 目安光熱費 |
|
||
| 損保 | 2万円2年 | 駐車場 | 敷地内49500円 |
| 入居 | 即 | 取引態様 | 仲介 |
| 条件 | 二人入居可/ペット相談 | 取り扱い店舗 物件コード |
6877617 |
| SUUMO 物件コード |
100501845076 | 総戸数 | - |
| 情報更新日 | 2026/04/15 | 次回更新予定日 | 2026/04/23 |
| 敷金積み増し |
|
||
| 契約期間 |
|
||
| 保証会社 |
|
||
| ほか初期費用 |
|
||
| ほか諸費用 |
|
||
| 備考 |
|
||
| 周辺情報 |
|
携帯用QRコード | |

TEL:03-5784-1155
当社の仲介手数料は一般的な賃料の1ヶ月分ではなく55%です。
リブマックス恵比寿店では人気の恵比寿エリア・代官山・中目黒・広尾エリアはもちろん都内全域の新築物件、ペット可物件、デザイナーズ物件、SOHO可物件など多種多様な物件情報をご用意しております。当社で提案する家具家電付きSETUP賃貸物件(セットアップ賃貸)も都内に10000室ほど展開しております。
SETUP賃貸は生活に必要な家具・家電が揃った状態でお部屋をお貸しするので、引越しの手間や費用を抑え、新生活をスタートできるので、急なご転勤の方、短期出張の方などにお勧めのニュースタイル賃貸マンションです。
お客様のお部屋探しを全力でサポート致します!!
【掲載物件情報について】
・SUUMOは「自ら居住するための住宅」をお探しの方に向けたポータルサイトです。契約者以外の方が使用する(例:第三者に宿泊させる等)ことを目的としたお問合せはご遠慮ください
・SUUMOではユーザーの皆様に最も信頼されるサイトを目指して、物件情報の精度向上に努めております。SUUMOに掲載されている物件情報について「事実と異なる点や誤解を招く表現がある」「成約済の物件が掲載されている」などにお気づきになりましたら、以下のページからご連絡ください
|
15.6万円/1K
|
14.2万円/1K
|
14万円/1K
|
|
11.7万円/1K
|
11.3万円/1K
|
20.6万円/2LDK
|
|
9.4万円/ワンルーム
|
7.2万円/1K
|
14万円/1DK
|
|
25.4万円/1K
|
16.9万円/1LDK
|
10.5万円/1K
|
|
15.9万円/1K
|
14.8万円/1DK
|
18.3万円/1LDK
|
|
19.5万円/1DK
|
26万円/2LDK
|
8.8万円/1K
|
|
9万円/1K
|
14.4万円/ワンルーム
|
13.5万円/1K
|
|
13.1万円/1DK
|
19万円/1DK
|
15.55万円/1DK
|
|
17.6万円/1K
|
15.5万円/ワンルーム
|
18.25万円/1LDK
|
|
22.5万円/2LDK
|
18万円/1LDK
|
13.6万円/1K
|
お気に入りに追加しました。 |