ステージグランデ東池袋駅前 - (株)LIFIXGROUP新宿店が提供する賃貸物件情報/東京都豊島区東池袋5/東池袋駅の賃貸物件情報 - SUUMO(スーモ)賃貸
| 間取り詳細 | - | 構造 | 鉄筋コン |
|---|---|---|---|
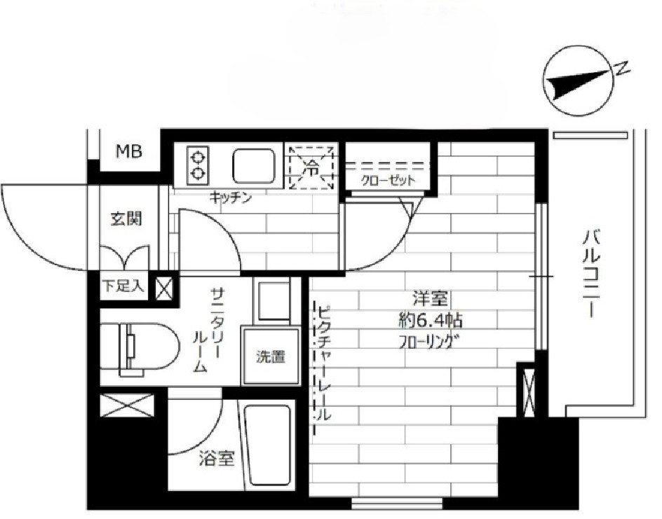
| 階建 | 11階/13階建 | 築年月 | 2015年2月 |
| エネルギー 消費性能 |
- | 断熱性能 | - |
| 目安光熱費 |
|
||
| 損保 | 2万円2年 | 駐車場 | - |
| 入居 | 相談 | 取引態様 | 仲介 |
| 条件 | - | 取り扱い店舗 物件コード |
1219130 |
| SUUMO 物件コード |
100501833694 | 総戸数 | - |
| 情報更新日 | 2026/04/14 | 次回更新予定日 | 2026/04/22 |
| 契約期間 |
|
||
| 保証会社 |
|
||
| ほか初期費用 |
|
||
| ほか諸費用 |
|
||
| 備考 |
|
||
| 周辺情報 |
|
携帯用QRコード | |

TEL:03-5909-0102
都内全エリア対応不動産 ixi新宿西口店
当社はお客様が気になっている物件があれば
他社様掲載物件であってもまとめてご紹介が可能です。
また、ネットには掲載してない非公開物件もご紹介出来ます!
何社も不動産会社を回らなくて済むので
【効率的なお部屋探し】が可能です。
その他些細なことでも気になることがあれば
なんでもお気兼ねなくご相談ください!
【掲載物件情報について】
・SUUMOは「自ら居住するための住宅」をお探しの方に向けたポータルサイトです。契約者以外の方が使用する(例:第三者に宿泊させる等)ことを目的としたお問合せはご遠慮ください
・SUUMOではユーザーの皆様に最も信頼されるサイトを目指して、物件情報の精度向上に努めております。SUUMOに掲載されている物件情報について「事実と異なる点や誤解を招く表現がある」「成約済の物件が掲載されている」などにお気づきになりましたら、以下のページからご連絡ください
|
8.7万円/1K
|
9.9万円/1K
|
8.1万円/ワンルーム
|
|
10万円/1K
|
12.4万円/1K
|
9.8万円/1K
|
|
9.4万円/1K
|
10万円/1K
|
8.7万円/1K
|
|
37.8万円/3LDK
|
8万円/1K
|
9.9万円/1K
|
|
8.7万円/ワンルーム
|
9.8万円/1K
|
10.5万円/1K
|
|
10.3万円/1K
|
8.5万円/1K
|
9.1万円/1K
|
|
9万円/1K
|
8.9万円/1K
|
8.6万円/1K
|
|
10.5万円/1K
|
12.5万円/1K
|
12万円/1K
|
|
9.9万円/1K
|
10.4万円/1DK
|
8.5万円/ワンルーム
|
|
10万円/1K
|
10.5万円/1K
|
9.98万円/1K
|
お気に入りに追加しました。 |