イースタンビル 402号室 - (有)大阪ホーム・コンサルタントJR八尾センターが提供する賃貸物件情報/大阪府八尾市本町2/近鉄八尾駅の賃貸物件情報 - SUUMO(スーモ)賃貸
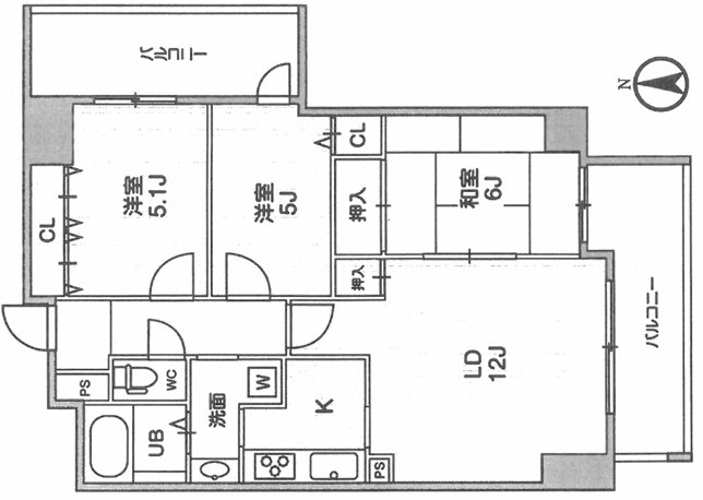
| 間取り詳細 | 和6 洋5.1 洋5 LDK12 | 構造 | 鉄筋コン |
|---|---|---|---|
| 階建 | 4階/10階建 | 築年月 | 1998年10月 |
| エネルギー 消費性能 |
- | 断熱性能 | - |
| 目安光熱費 |
|
||
| 損保 | 2.6万円2年 | 駐車場 | - |
| 入居 | 即 | 取引態様 | 仲介 |
| 条件 | 単身者可/二人入居可/子供可/事務所利用不可 | 取り扱い店舗 物件コード |
0000015234 |
| SUUMO 物件コード |
100501787786 | 総戸数 | - |
| 情報更新日 | 2026/04/14 | 次回更新予定日 | 2026/04/29 |
| 契約期間 |
|
||
| 保証会社 |
|
||
| 備考 |
|
||
| 周辺情報 |
|
携帯用QRコード | |

TEL:0800-8883780 【通話料無料】
賃貸物件の事なら、管理物件豊富な当社におまかせ下さい。ご満足頂けるお部屋をきっとお探し致します。
八尾市・柏原市・東大阪市・大阪市内で賃貸物件を探すなら(有)大阪ホーム・コンサルタントにお任せ下さい。当社のベテランスタッフが親切、丁寧そして楽しくあなたのご希望のお部屋探しをサポート致します。忙しくてなかなか時間がとれない方、お電話・Eメール等でご連絡頂ければ、物件資料をお届け致しますので、お気軽にご相談下さい。スタッフ一同お待ちしております。
【掲載物件情報について】
・SUUMOは「自ら居住するための住宅」をお探しの方に向けたポータルサイトです。契約者以外の方が使用する(例:第三者に宿泊させる等)ことを目的としたお問合せはご遠慮ください
・SUUMOではユーザーの皆様に最も信頼されるサイトを目指して、物件情報の精度向上に努めております。SUUMOに掲載されている物件情報について「事実と異なる点や誤解を招く表現がある」「成約済の物件が掲載されている」などにお気づきになりましたら、以下のページからご連絡ください
|
4.7万円/2DK
|
5万円/ワンルーム
|
3万円/1K
|
|
6.9万円/3DK
|
4万円/2DK
|
11.2万円/2LDK
|
|
9.2万円/3LDK
|
3万円/ワンルーム
|
7.7万円/2LDK
|
|
9.05万円/1LDK
|
3万円/ワンルーム
|
6.2万円/1K
|
|
10.2万円/2LDK
|
6万円/2LDK
|
5.7万円/1SK
|
|
6.7万円/2DK
|
5万円/1DK
|
4.2万円/2K
|
|
7.3万円/1LDK
|
6万円/3LDK
|
6万円/3LDK
|
|
6.5万円/2LDK
|
6.5万円/1LDK
|
5.3万円/3K
|
|
7.3万円/ワンルーム
|
6.1万円/1K
|
7.4万円/1LDK
|
|
5.8万円/1DK
|
6.2万円/3DK
|
7.1万円/1DK
|
お気に入りに追加しました。 |