ZOOM信濃町 - (株)リアルビジョン青山支店が提供する賃貸物件情報/東京都新宿区左門町/四谷三丁目駅の賃貸物件情報 - SUUMO(スーモ)賃貸
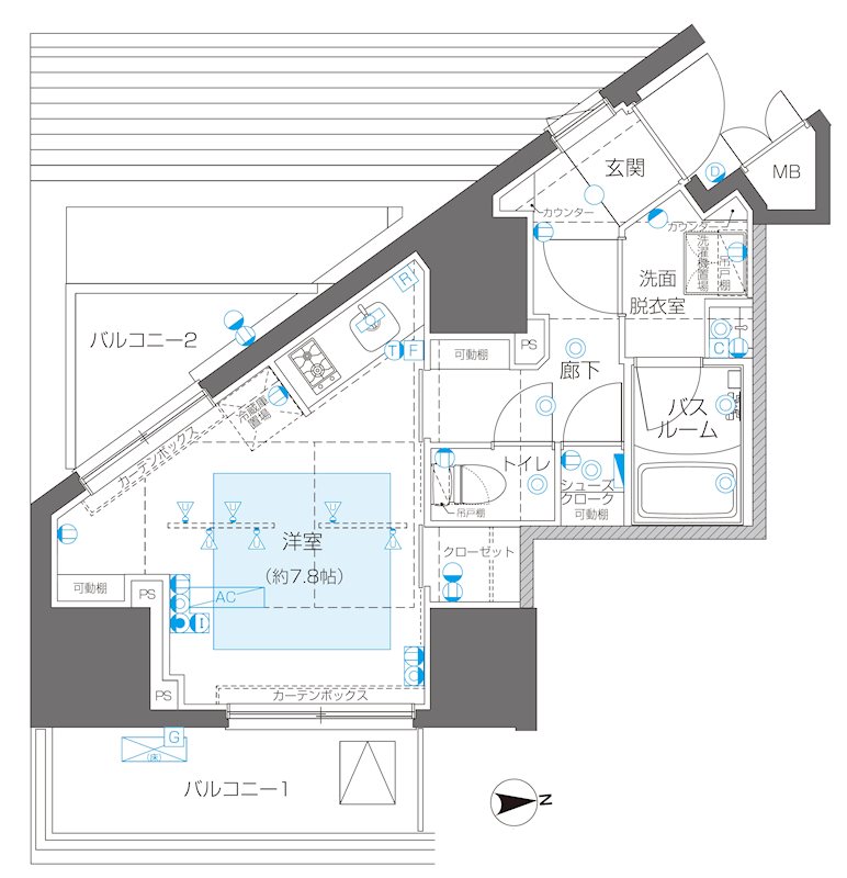
| 間取り詳細 | 洋7.8 | 構造 | 鉄筋コン |
|---|---|---|---|
| 階建 | 8階/13階建 | 築年月 | 2025年7月 |
| エネルギー 消費性能 |
- | 断熱性能 | - |
| 目安光熱費 |
|
||
| 損保 | 要 | 駐車場 | 敷地内40150円/機械式駐 |
| 入居 | 即 | 取引態様 | 仲介 |
| 条件 | ペット相談 | 取り扱い店舗 物件コード |
- |
| SUUMO 物件コード |
100501777054 | 総戸数 | - |
| 情報更新日 | 2026/04/17 | 次回更新予定日 | 2026/04/25 |
| 敷金積み増し |
|
||
| 保証会社 |
|
||
| ほか諸費用 |
|
||
| 備考 |
|
||
| 周辺情報 |
|
携帯用QRコード | |

TEL:03-6450-5592
創業より都心5区・城南エリアに特化し、売買・賃貸・管理を行っております!専任物件多数あります!
都心5区・城南エリアに特化した私たちは売買仲介・賃貸仲介・管理のみならず、未公開の自社企画の戸建てや収益物件もございます!
賃貸から売買、収益物件までお客様の人生のライフプランに合わせた不動産をご提供させて頂きますので、お気軽にご相談下さい!対応スタッフは全員『宅建士』の有資格者となりますので、不動産に関して気になる点やご不明点がございましたら是非、リアルビジョンまで!直接のご連絡は03-6450-5592までおかけ下さい!その他、大手法人契約・外国語対応・入居審査のご相談もお任せ下さい!https://www.realv.jp/
【掲載物件情報について】
・SUUMOは「自ら居住するための住宅」をお探しの方に向けたポータルサイトです。契約者以外の方が使用する(例:第三者に宿泊させる等)ことを目的としたお問合せはご遠慮ください
・SUUMOではユーザーの皆様に最も信頼されるサイトを目指して、物件情報の精度向上に努めております。SUUMOに掲載されている物件情報について「事実と異なる点や誤解を招く表現がある」「成約済の物件が掲載されている」などにお気づきになりましたら、以下のページからご連絡ください
|
33.8万円/1LDK
|
43.5万円/2LDK
|
16.2万円/ワンルーム
|
|
26.7万円/1LDK
|
15.9万円/1LDK
|
12.8万円/ワンルーム
|
|
11.8万円/1K
|
26万円/1LDK
|
19.5万円/1DK
|
|
54万円/2LDK
|
39万円/2LDK
|
20.2万円/1DK
|
|
27.8万円/ワンルーム
|
37万円/1SLDK
|
14.9万円/1K
|
|
14.5万円/1K
|
16.2万円/1DK
|
14.3万円/1K
|
|
20万円/1LDK
|
26.1万円/1LDK
|
15.7万円/1K
|
|
16.1万円/ワンルーム
|
29万円/1LDK
|
21.3万円/2LDK
|
|
21.8万円/1LDK
|
280万円/2LDK
|
18万円/1DK
|
|
17万円/1DK
|
14.4万円/1K
|
24.7万円/1SLDK
|
お気に入りに追加しました。 |