JR京浜東北線 川崎駅 3階建 築30年 - 横浜ライブ川崎店(有)エル・アシストが提供する賃貸物件情報/神奈川県川崎市川崎区大島4/川崎駅の賃貸物件情報 - SUUMO(スーモ)賃貸
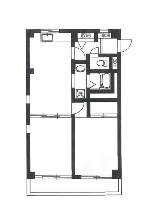
| 間取り詳細 | - | 構造 | 鉄骨 |
|---|---|---|---|
| 階建 | 3階/3階建 | 築年月 | 1996年11月 |
| エネルギー 消費性能 |
- | 断熱性能 | - |
| 目安光熱費 |
|
||
| 損保 | 要 | 駐車場 | 近隣200m20000円 |
| 入居 | 即 | 取引態様 | 仲介 |
| 条件 | 二人入居可/子供可 | 取り扱い店舗 物件コード |
- |
| SUUMO 物件コード |
100501734003 | 総戸数 | - |
| 情報更新日 | 2026/04/14 | 次回更新予定日 | 2026/04/22 |
| 周辺情報 |
|
携帯用QRコード | |

TEL:044-210-4580
<おかげさまで創業20周年になりました> 積み重ねてきた信頼と実績があるのでオーナー様への交渉事もお任せください
初期費用のクレジットカード決済/入居審査の不安/仲介手数料について/家賃相場/事故物件/高齢者/シングルマザー/社宅/テナント/中古売買物件/リフォーム/など
経験豊富なスタッフが賃貸はもちろん、他では聞きづらい事や不動産業界の仕組みについても分かりやすくご説明させていただきます。
その他、賃貸管理部もございますのでマンションやビルオーナー様も同じく大歓迎です。契約内容を見直す機会に是非!
【掲載物件情報について】
・SUUMOは「自ら居住するための住宅」をお探しの方に向けたポータルサイトです。契約者以外の方が使用する(例:第三者に宿泊させる等)ことを目的としたお問合せはご遠慮ください
・SUUMOではユーザーの皆様に最も信頼されるサイトを目指して、物件情報の精度向上に努めております。SUUMOに掲載されている物件情報について「事実と異なる点や誤解を招く表現がある」「成約済の物件が掲載されている」などにお気づきになりましたら、以下のページからご連絡ください
|
10万円/3K
|
3.8万円/1K
|
6.5万円/2DK
|
|
7.2万円/2DK
|
7万円/2DK
|
8万円/2DK
|
|
4.2万円/ワンルーム
|
10万円/1DK
|
8.8万円/3DK
|
|
9.8万円/2DK
|
7万円/1LDK
|
10.2万円/3DK
|
|
7.5万円/2DK
|
7万円/1DK
|
5.9万円/ワンルーム
|
|
4.5万円/1K
|
9.9万円/3LDK
|
7.3万円/2K
|
|
8.3万円/2DK
|
6.3万円/1K
|
4.5万円/ワンルーム
|
|
8万円/2DK
|
7.3万円/2DK
|
8.5万円/2LDK
|
|
9万円/3LDK
|
7.7万円/2K
|
8.5万円/3DK
|
|
3.8万円/ワンルーム
|
7.5万円/2DK
|
5.4万円/ワンルーム
|
お気に入りに追加しました。 |