"20260415125751:H:0" "20260415125751:H:0" "20260415125751:H:0"

パークキューブ銀座イースト - アパマンショップ目黒西口店(株)アップルが提供する賃貸物件情報

部屋の特徴・設備

  • バストイレ別、バルコニー、エアコン、浴室乾燥機、オートロック、室内洗濯置、システムキッチン、追焚機能浴室、エレベーター、宅配ボックス、ペット相談、グリル付、保証人不要、敷金1ヶ月、バイク置場、2沿線利用可、CS、洗濯機、乾燥機、耐震構造、2駅利用可、駅徒歩5分以内、駅徒歩10分以内、24時間ゴミ出し可、敷地内ごみ置き場、BS、礼金1ヶ月、保証会社利用可

物件概要

情報の見方

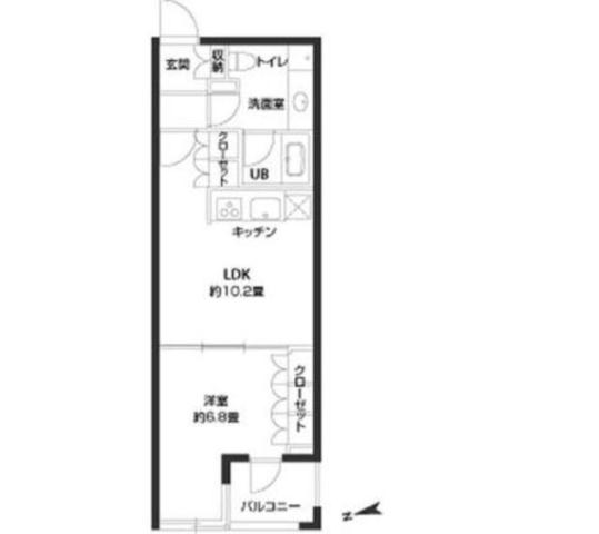
間取り詳細 LDK 構造 鉄骨鉄筋
階建 5階/12階建 築年月 2005年6月
エネルギー
消費性能
- 断熱性能 -
目安光熱費
  • -
損保 駐車場 敷地内41800円
入居 '26年5月下旬 取引態様 仲介
条件 ペット相談 取り扱い店舗
物件コード
76001093
SUUMO
物件コード
100501652967 総戸数 -
情報更新日 2026/04/14 次回更新予定日 2026/04/22
バルコニー面積
  • 3m2
保証会社
  • 保証会社利用可 初回:月額賃料(共益費・駐車場料金含む)の50%、年間:9,600円
ほか初期費用
  • 合計1.65万円(内訳:鍵交換費)
ほか諸費用
  • 口座振替事務手数料 220円(月額)
備考
  • [退去時費用 室内清掃費:77,642円※故意・過失等別途実費]
 
周辺情報
  • ホワイト急便 入舟2丁目店(その他)まで78m
  • ローソン入船店(コンビニ)まで89m
  • 中央湊郵便局(郵便局)まで176m
  • まいばすけっと 新富町駅東店(スーパー)まで193m
  • 入船湯(その他)まで144m
  • ファミリーマート入船三丁目店(コンビニ)まで211m

周辺環境を見る

携帯用QRコード
このQRコードを読み取ることで、
ケータイでも物件情報を見ることができます。

物件情報をメールに送る

この物件にお問い合わせ
お問い合わせの内容を選択してください
03-6867-1010
アパマンショップ目黒西口店(株)アップル
営業時間:10時~19時 / 定休日:水曜日

取り扱い店舗

【店舗写真】アパマンショップ目黒西口店(株)アップル

アパマンショップ目黒西口店(株)アップル

TEL:03-6867-1010

  • 住所: 東京都品川区上大崎2-27-1 サンフェリスタ目黒1階
  • 営業時間: 10時~19時
  • 定休日: 水曜日
  • 免許番号: 国土交通大臣(5)第6971号 / (公社)東京都宅地建物取引業協会会員 / (公社)首都圏不動産公正取引協議会加盟
  • 取引態様: 仲介
  • 部屋情報
  • 地図・周辺環境
  • 取り扱い店舗の情報
  • エリアの口コミ

【掲載物件情報について】

・SUUMOは「自ら居住するための住宅」をお探しの方に向けたポータルサイトです。契約者以外の方が使用する(例:第三者に宿泊させる等)ことを目的としたお問合せはご遠慮ください


・SUUMOではユーザーの皆様に最も信頼されるサイトを目指して、物件情報の精度向上に努めております。SUUMOに掲載されている物件情報について「事実と異なる点や誤解を招く表現がある」「成約済の物件が掲載されている」などにお気づきになりましたら、以下のページからご連絡ください

その他の情報

アパマンショップ目黒西口店(株)アップルのその他取り扱い物件

全物件を一覧表示する

最寄駅から探す

最寄駅の沿線から探す

関連エリアから不動産情報を探す

ページトップへ戻る

お気に入りに追加しました。