"20260416154621:H:0" "20260416154621:H:0" "20260416154621:H:0"

THE TOKYO TOWERS MIDTOWER - ピタットハウス都心営業2課スターツピタットハウス(株)が提供する賃貸物件情報

部屋の特徴・設備

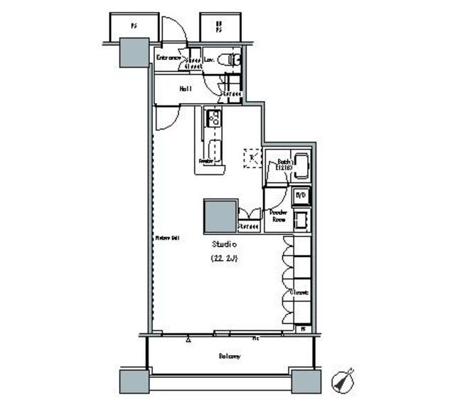
  • バストイレ別、バルコニー、エアコン、浴室乾燥機、オートロック、システムキッチン、追焚機能浴室、エレベーター、宅配ボックス、CATV、ペット相談、グリル付、バイク置場、敷金2ヶ月、保証金不要、楽器相談、フロントサービス、ペット専用設備、駅徒歩10分以内、タワー型マンション、高層階、ゲストルーム、キッズルーム、シアタールーム、24時間ゴミ出し可、敷地内ごみ置き場、東南向き、礼金1ヶ月

物件概要

情報の見方

間取り詳細 - 構造 鉄筋コン
階建 30階/地下2地上58階建 築年月 2008年1月
エネルギー
消費性能
- 断熱性能 -
目安光熱費
  • -
損保 駐車場 -
入居 '26年5月下旬 取引態様 仲介
条件 ペット相談/楽器相談/事務所利用不可 取り扱い店舗
物件コード
-
SUUMO
物件コード
100501651703 総戸数 -
情報更新日 2026/04/15 次回更新予定日 2026/04/23□
バルコニー面積
  • 8m2
契約期間
  • 普通借家 24ヶ月
保証会社
  • オリコフォレントインシュア利用必 初回保証委託料(最低20,000円):月額賃料等の50%、2年目以降:10,000円/年
備考
  • 常駐管理
 
周辺情報
    -

周辺環境を見る

携帯用QRコード
このQRコードを読み取ることで、
ケータイでも物件情報を見ることができます。

物件情報をメールに送る

この物件にお問い合わせ
お問い合わせの内容を選択してください
03-6202-0190
ピタットハウス都心営業2課スターツピタットハウス(株)
営業時間:10:00~18:00 / 定休日:毎週水曜日

取り扱い店舗

【店舗写真】ピタットハウス都心営業2課スターツピタットハウス(株)

ピタットハウス都心営業2課スターツピタットハウス(株)

TEL:03-6202-0190

お部屋探しならピタットハウス都心営業2課にお任せ下さい!中央区の不動産・賃貸物件を多数取り扱いしています!

明るく元気なスタッフがきめ細やかな接客を行い、お客様のご希望にお応えします。
皆様のご来店を心よりお待ちしております。
仲介手数料金額:賃料1ヶ月+税

  • 住所: 東京都中央区日本橋3-1-8 スターツ日本橋ビル4階
  • 営業時間: 10:00~18:00
  • 定休日: 毎週水曜日
  • 免許番号: 国土交通大臣(4)第7129号 / (一社)全国住宅産業協会会員 / (公社)首都圏不動産公正取引協議会加盟
  • 取引態様: 仲介
  • 部屋情報
  • 地図・周辺環境
  • 取り扱い店舗の情報
  • エリアの口コミ

【掲載物件情報について】

・SUUMOは「自ら居住するための住宅」をお探しの方に向けたポータルサイトです。契約者以外の方が使用する(例:第三者に宿泊させる等)ことを目的としたお問合せはご遠慮ください


・SUUMOではユーザーの皆様に最も信頼されるサイトを目指して、物件情報の精度向上に努めております。SUUMOに掲載されている物件情報について「事実と異なる点や誤解を招く表現がある」「成約済の物件が掲載されている」などにお気づきになりましたら、以下のページからご連絡ください

その他の情報

ピタットハウス都心営業2課スターツピタットハウス(株)のその他取り扱い物件

全物件を一覧表示する

最寄駅から探す

最寄駅の沿線から探す

関連エリアから不動産情報を探す

ページトップへ戻る

お気に入りに追加しました。