"20260531223835:H:0" "20260531223835:H:0" "20260531223835:H:0"

JR山手線 池袋駅 14階建 築13年 - (株)ネクストライフ四谷支店が提供する賃貸物件情報

部屋の特徴・設備

  • バストイレ別、エアコン、ガスコンロ対応、クロゼット、フローリング、TVインターホン、浴室乾燥機、オートロック、室内洗濯置、シューズボックス、システムキッチン、追焚機能浴室、温水洗浄便座、脱衣所、エレベーター、洗面所独立、洗面化粧台、2口コンロ、駐輪場、宅配ボックス、CATV、光ファイバー、外壁タイル張り、閑静な住宅地、BS・CS、防犯カメラ、保証人不要、敷金1ヶ月、CATVインターネット、バイク置場、全居室フローリング、2沿線利用可、駅まで平坦、耐火構造、耐震構造、2駅利用可、駅前、駅徒歩10分以内、東南向き、都市ガス、礼金1ヶ月

物件概要

情報の見方

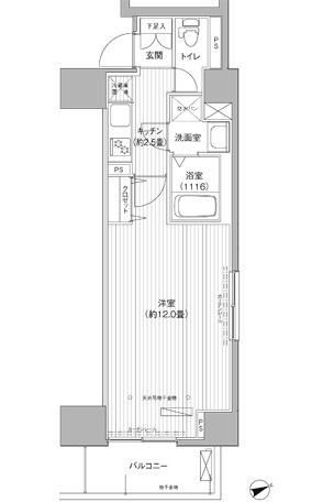
間取り詳細 洋12 K2.5 構造 鉄筋コン
階建 10階/14階建 築年月 2013年8月
エネルギー
消費性能
- 断熱性能 -
目安光熱費
  • -
損保 駐車場 敷地内41800円
入居 相談 取引態様 仲介
条件 - 取り扱い店舗
物件コード
O-0000014042
SUUMO
物件コード
100501617508 総戸数 -
情報更新日 2026/05/30 次回更新予定日 2026/06/07
契約期間
  • 普通借家 2年
保証会社
  • 保証会社利用必 その他初回契約時:40%、更新時:1%、月額:1%
ほか初期費用
  • 合計7.12万円(内訳:退去時ハウスクリーニング 49106円/鍵交換費用 22000円)
 
周辺情報
  • スーパーマーケットリコス 東池袋2丁目店(スーパー)まで43m
  • ローソン 東池袋三丁目店(コンビニ)まで114m

周辺環境を見る

携帯用QRコード
このQRコードを読み取ることで、
ケータイでも物件情報を見ることができます。

物件情報をメールに送る

この物件にお問い合わせ
お問い合わせの内容を選択してください
03-6273-2886
(株)ネクストライフ四谷支店
営業時間:10時30分~18時 / 定休日:水曜日

取り扱い店舗

【店舗写真】(株)ネクストライフ四谷支店

(株)ネクストライフ四谷支店

TEL:03-6273-2886

★夜間対応可! ★審査に強い! ★フランクな雰囲気!

神田と四ッ谷に店舗がありますでお好きな店舗でご対応が可能です!23区内・外問わず内見案内!ご遠方のお客様にはオンラインでのご相談も承っておりますのでまずはお気軽にお問い合わせください!!

  • 住所: 東京都新宿区四谷1-18 belle 四谷9階
  • 営業時間: 10時30分~18時
  • 定休日: 水曜日
  • 免許番号: 東京都知事(1)第110851号 / (公社)東京都宅地建物取引業協会会員 / (公社)首都圏不動産公正取引協議会加盟
  • 取引態様: 仲介
  • 部屋情報
  • 地図・周辺環境
  • 取り扱い店舗の情報
  • エリアの口コミ

【掲載物件情報について】

・SUUMOは「自ら居住するための住宅」をお探しの方に向けたポータルサイトです。契約者以外の方が使用する(例:第三者に宿泊させる等)ことを目的としたお問合せはご遠慮ください


・SUUMOではユーザーの皆様に最も信頼されるサイトを目指して、物件情報の精度向上に努めております。SUUMOに掲載されている物件情報について「事実と異なる点や誤解を招く表現がある」「成約済の物件が掲載されている」などにお気づきになりましたら、以下のページからご連絡ください

その他の情報

(株)ネクストライフ四谷支店のその他取り扱い物件

全物件を一覧表示する

最寄駅から探す

最寄駅の沿線から探す

関連エリアから不動産情報を探す

ページトップへ戻る

お気に入りに追加しました。