"20260415130051:H:0" "20260415130051:H:0" "20260415130051:H:0"

コントレール - (株)良和ハウス上安店が提供する賃貸物件情報

この物件にお問い合わせ
お問い合わせの内容を選択してください
082-553-9390
(株)良和ハウス上安店
営業時間:10時~18時、日祝10時~18時 / 定休日:水曜日

部屋の特徴・設備

  • バストイレ別、バルコニー、エアコン、クロゼット、フローリング、シャワー付洗面台、TVインターホン、オートロック、室内洗濯置、陽当り良好、シューズボックス、システムキッチン、追焚機能浴室、角住戸、温水洗浄便座、脱衣所、洗面所独立、洗面化粧台、駐輪場、即入居可、閑静な住宅地、最上階、3口以上コンロ、対面式キッチン、駐車場1台無料、全居室洋室、単身者相談、東南角住戸、二人入居相談、2沿線利用可、クッションフロア、駅まで平坦、クロゼット2ヶ所、平坦地、浴室1坪以上、クロゼット3ヶ所、3駅以上利用可、駅徒歩10分以内、上階無し、平面駐車場、東南向き、都市ガス、三面鏡付洗面化粧台、BS、初期費用カード決済可

物件概要

情報の見方

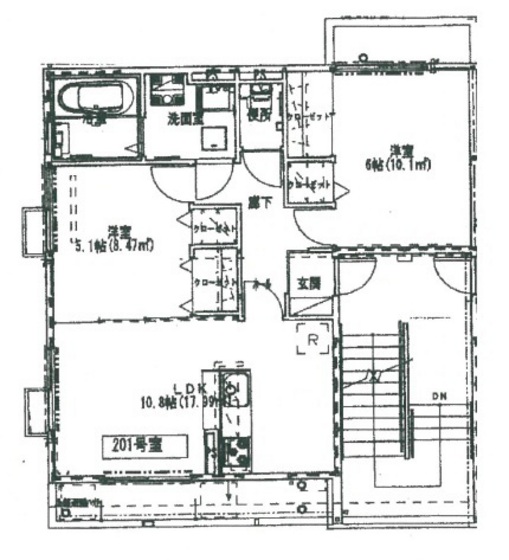
間取り詳細 洋6 洋5.1 LDK10.8 構造 軽量鉄骨
階建 3階/3階建 築年月 2016年9月
エネルギー
消費性能
- 断熱性能 -
目安光熱費
  • -
損保 駐車場 付無料
入居 取引態様 仲介
条件 - 取り扱い店舗
物件コード
-
SUUMO
物件コード
100501553335 総戸数 6戸
情報更新日 2026/04/14 次回更新予定日 2026/04/22
保証会社
  • 保証会社利用必 月額総賃料70%/1年更新:18,000円
 
周辺情報
  • HOPPAmycketにしはら(幼稚園・保育園)まで600m
  • そごう広島店(ショッピングセンター)まで5596m
  • セブンイレブン広島祇園三丁目店(コンビニ)まで352m
  • ドラッグセガミ山本店(ドラッグストア)まで607m
  • 広島市立山本小学校(小学校)まで867m
  • 私立AICJ中学校(中学校)まで850m

周辺環境を見る

携帯用QRコード
このQRコードを読み取ることで、
ケータイでも物件情報を見ることができます。

物件情報をメールに送る

この物件にお問い合わせ
お問い合わせの内容を選択してください
082-553-9390
(株)良和ハウス上安店
営業時間:10時~18時、日祝10時~18時 / 定休日:水曜日

店舗・物件ブランドのアピールポイント

取り扱い店舗

【店舗写真】(株)良和ハウス上安店

(株)良和ハウス上安店

TEL:082-553-9390

広島市全域はもちろん安佐南区の物件探しはお任せ下さい。素敵なお部屋を必ずお探しします。

当店はアストラムライン上安駅のすぐそばにございます。安佐南区でお部屋をお探しの学生さん新社会人さん新婚さん、広島が始めてのご転勤者様、必ず納得のいくお部屋をご案内させて頂きます。スタッフ一同心よりお待ちしております。

  • 住所: 広島県広島市安佐南区上安2-29-3
  • 営業時間: 10時~18時、日祝10時~18時
  • 定休日: 水曜日
  • 免許番号: 国土交通大臣(2)第9113号 / (公社)広島県宅地建物取引業協会会員 /  中国地区不動産公正取引協議会加盟
  • 取引態様: 仲介
  • 部屋情報
  • 地図・周辺環境
  • 取り扱い店舗の情報
  • エリアの口コミ

【掲載物件情報について】

・SUUMOは「自ら居住するための住宅」をお探しの方に向けたポータルサイトです。契約者以外の方が使用する(例:第三者に宿泊させる等)ことを目的としたお問合せはご遠慮ください


・SUUMOではユーザーの皆様に最も信頼されるサイトを目指して、物件情報の精度向上に努めております。SUUMOに掲載されている物件情報について「事実と異なる点や誤解を招く表現がある」「成約済の物件が掲載されている」などにお気づきになりましたら、以下のページからご連絡ください

その他の情報

(株)良和ハウス上安店のその他取り扱い物件

全物件を一覧表示する

最寄駅から探す

最寄駅の沿線から探す

関連エリアから不動産情報を探す

ページトップへ戻る

お気に入りに追加しました。