ブルックサイドレジデンス木場 818号室 - (株)リライフ錦糸町店が提供する賃貸物件情報/東京都江東区塩浜2/木場駅の賃貸物件情報 - SUUMO(スーモ)賃貸
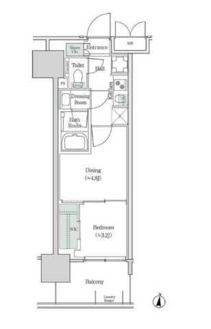
| 間取り詳細 | 洋3.2 D4.8 | 構造 | 鉄筋コン |
|---|---|---|---|
| 階建 | 8階/18階建 | 築年月 | 2026年3月 |
| エネルギー 消費性能 |
- | 断熱性能 | - |
| 目安光熱費 |
|
||
| 損保 | 2万円2年 | 駐車場 | - |
| 入居 | 即 | 取引態様 | 仲介 |
| 条件 | ペット相談/フリーレント1ヶ月 短期解約時:違約金あり | 取り扱い店舗 物件コード |
/B127012R488140 |
| SUUMO 物件コード |
100501055802 | 総戸数 | 563戸 |
| 情報更新日 | 2026/05/29 | 次回更新予定日 | 2026/06/06 |
| 敷金積み増し |
|
||
| 保証会社 |
|
||
| ほか初期費用 |
|
||
| ほか諸費用 |
|
||
| 備考 |
|
||
| 周辺情報 |
|
携帯用QRコード | |

TEL:03-6372-4986
錦糸町駅前! 錦糸町エリア物件情報No.1!住まい探しは店舗数首都圏数最大級の住まいのリライフへ!
【当店の特徴】詳細は当ページ下部をご覧ください。
(1)お客様にご愛顧頂き首都圏数最大級の店舗数と安心のネットワークがございます。(2)総合仲介不動産店の為、ご紹介できる物件数が非常に豊富です。賃貸だけでなくご購入のご相談も可能です。(3)契約金のクレジットカード決済、引越業者の特別割引でのご紹介、インターネット開通作業、家具家電レンタル、近隣駐車場の手配など、物件決定後のアフターサービスも充実しています。
【掲載物件情報について】
・SUUMOは「自ら居住するための住宅」をお探しの方に向けたポータルサイトです。契約者以外の方が使用する(例:第三者に宿泊させる等)ことを目的としたお問合せはご遠慮ください
・SUUMOではユーザーの皆様に最も信頼されるサイトを目指して、物件情報の精度向上に努めております。SUUMOに掲載されている物件情報について「事実と異なる点や誤解を招く表現がある」「成約済の物件が掲載されている」などにお気づきになりましたら、以下のページからご連絡ください
|
19.4万円/1LDK
|
22.2万円/1SLDK
|
15.8万円/1LDK
|
|
14.5万円/1LDK
|
10.6万円/1LDK
|
20.4万円/1SLDK
|
|
11.8万円/1K
|
9万円/1K
|
10万円/1K
|
|
21.2万円/1LDK
|
8.4万円/ワンルーム
|
19.1万円/1LDK
|
|
13.2万円/ワンルーム
|
14.4万円/1DK
|
11.4万円/1K
|
|
27.6万円/2SLDK
|
20.9万円/1LDK
|
13.6万円/2K
|
|
21.8万円/2LDK
|
7.8万円/1K
|
18.8万円/1LDK
|
|
28.4万円/1SLDK
|
11.7万円/1K
|
49万円/2LDK
|
|
30.5万円/2LDK
|
14.5万円/1LDK
|
32.9万円/2LDK
|
|
26.3万円/1LDK
|
24.7万円/2LDK
|
21.5万円/2LDK
|
お気に入りに追加しました。 |