"20260531211538:H:0" "20260531211538:H:0" "20260531211538:H:0"

マル・アズール品川WEST 202号室 - (株)エイチジェイが提供する賃貸物件情報

この物件にお問い合わせ
お問い合わせの内容を選択してください
03-6821-6819
(株)エイチジェイ

部屋の特徴・設備

  • バストイレ別、エアコン、クロゼット、フローリング、TVインターホン、浴室乾燥機、オートロック、室内洗濯置、陽当り良好、シューズボックス、システムキッチン、追焚機能浴室、角住戸、温水洗浄便座、脱衣所、洗面所独立、洗面化粧台、駐輪場、宅配ボックス、即入居可、閑静な住宅地、2面採光、最上階、3口以上コンロ、防犯カメラ、照明付、全居室収納、全居室洋室、保証人不要、敷金1ヶ月、二人入居相談、全居室フローリング、デザイナーズ、玄関ホール、メゾネット、駅まで平坦、緑豊かな住宅地、平坦地、南面リビング、3駅以上利用可、3沿線以上利用可、駅徒歩10分以内、敷地内ごみ置き場、東南向き、都市ガス、洗面所にドア、玄関収納、礼金1ヶ月、IT重説 対応物件

物件概要

情報の見方

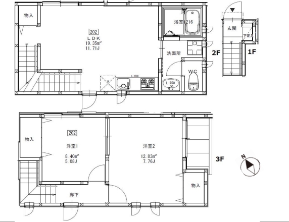
間取り詳細 - 構造 木造
階建 2階/3階建 築年月 2017年8月
エネルギー
消費性能
- 断熱性能 -
目安光熱費
  • -
損保 2万円2年 駐車場 -
入居 取引態様 仲介
条件 二人入居可 取り扱い店舗
物件コード
HK0016
SUUMO
物件コード
100500718331 総戸数 -
情報更新日 2026/05/27 次回更新予定日 2026/06/04
契約期間
  • 普通借家 2年
 
周辺情報
  • 無印良品大崎店(ショッピングセンター)まで594m
  • まいばすけっと大崎駅前店(スーパー)まで570m
  • セブンイレブン西品川2丁目店(コンビニ)まで79m
  • トモズThinkPark店(ドラッグストア)まで734m
  • タリーズコーヒー大崎ガーデンタワー店(飲食店)まで502m
  • 私立品川学藝高校(高校・高専)まで587m

周辺環境を見る

携帯用QRコード
このQRコードを読み取ることで、
ケータイでも物件情報を見ることができます。

物件情報をメールに送る

この物件にお問い合わせ
お問い合わせの内容を選択してください
03-6821-6819
(株)エイチジェイ

取り扱い店舗

(株)エイチジェイ

TEL:03-6821-6819

  • 住所: 東京都渋谷区渋谷1-22-1 CHビル2階
  • 営業時間: -
  • 定休日: -
  • 免許番号: 東京都知事(3)第94122号 / (公社)東京都宅地建物取引業協会会員 / (公社)首都圏不動産公正取引協議会加盟
  • 取引態様: 仲介
  • 部屋情報
  • 地図・周辺環境
  • 取り扱い店舗の情報
  • エリアの口コミ

【掲載物件情報について】

・SUUMOは「自ら居住するための住宅」をお探しの方に向けたポータルサイトです。契約者以外の方が使用する(例:第三者に宿泊させる等)ことを目的としたお問合せはご遠慮ください


・SUUMOではユーザーの皆様に最も信頼されるサイトを目指して、物件情報の精度向上に努めております。SUUMOに掲載されている物件情報について「事実と異なる点や誤解を招く表現がある」「成約済の物件が掲載されている」などにお気づきになりましたら、以下のページからご連絡ください

その他の情報

(株)エイチジェイのその他取り扱い物件

全物件を一覧表示する

最寄駅から探す

最寄駅の沿線から探す

関連エリアから不動産情報を探す

ページトップへ戻る

お気に入りに追加しました。