"20260414175607:H:0" "20260414175607:H:0" "20260414175607:H:0"

オープンレジデンシア南青山ウエストテラス - (株)エステートバンクが提供する賃貸物件情報

この物件にお問い合わせ
お問い合わせの内容を選択してください
03-5843-0111
(株)エステートバンク
営業時間:10:00~19:00 / 定休日:毎水曜日

部屋の特徴・設備

  • バストイレ別、バルコニー、エアコン、クロゼット、フローリング、TVインターホン、浴室乾燥機、オートロック、室内洗濯置、システムキッチン、温水洗浄便座、エレベーター、洗面所独立、洗面化粧台、駐輪場、宅配ボックス、即入居可、閑静な住宅地、3口以上コンロ、対面式キッチン、防犯カメラ、ペット相談、全居室収納、分譲賃貸、グリル付、ウォークインクロゼット、保証人不要、全居室フローリング、2沿線利用可、エアコン2台、ネット使用料不要、食器洗乾燥機、緑豊かな住宅地、ダブルロックキー、クロゼット2ヶ所、クロゼット3ヶ所、2駅利用可、3駅以上利用可、3沿線以上利用可、駅徒歩5分以内、駅徒歩10分以内、敷地内ごみ置き場、LDK12畳以上、備付食器棚、都市ガス、洗面所にドア、三面鏡付洗面化粧台、シューズWIC、天井高シューズクロゼット、玄関収納、ダウンライト、保証会社利用可、通風良好

物件概要

情報の見方

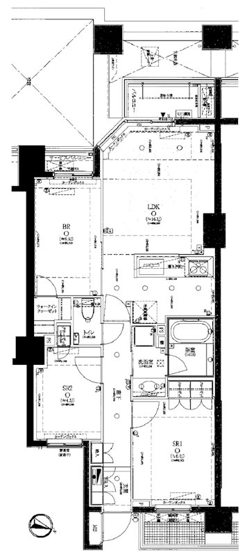
間取り詳細 洋6.8 14.3 納戸 5.5-4.5 構造 鉄筋コン
階建 2階/地下1地上9階建 築年月 2013年8月
エネルギー
消費性能
- 断熱性能 -
目安光熱費
  • -
損保 2.15万円2年 駐車場 -
入居 取引態様 仲介
条件 二人入居可/ペット相談 取り扱い店舗
物件コード
-
SUUMO
物件コード
100498756985 総戸数 38戸
情報更新日 2026/04/06 次回更新予定日 2026/04/14
契約期間
  • 定期借家 3年
保証会社
  • 保証会社利用必 初回保証料:賃料総額の70パーセント、月次保証料:賃料総額の1パーセント
ほか諸費用
  • 鍵交換費用29700円
備考
  • ◆ペット:飼育時敷金1か月積み増し(償却)◆短期解約違約金:1年未満で総賃料の1か月分◆火災保険:21000円/2年、二人入居の場合は24500円◆退去時:ハウスクリーニング費用88000円
 
周辺情報
  • 成城石井南青山店(スーパー)まで547m
  • 薬のヒグチ外苑前店(ドラッグストア)まで305m
  • 成城石井南青山店(スーパー)まで547m
  • スターバックスコーヒー南青山2丁目店(飲食店)まで441m
  • まいばすけっと青山一丁目駅西店(スーパー)まで507m
  • ローソン南青山二丁目店(コンビニ)まで151m

周辺環境を見る

携帯用QRコード
このQRコードを読み取ることで、
ケータイでも物件情報を見ることができます。

物件情報をメールに送る

この物件にお問い合わせ
お問い合わせの内容を選択してください
03-5843-0111
(株)エステートバンク
営業時間:10:00~19:00 / 定休日:毎水曜日

取り扱い店舗

【店舗写真】(株)エステートバンク

(株)エステートバンク

TEL:03-5843-0111

  • 住所: 東京都渋谷区神宮前2-12-1 ウェールビル1階
  • 営業時間: 10:00~19:00
  • 定休日: 毎水曜日
  • 免許番号: 東京都知事(2)第102823号 / (公社)東京都宅地建物取引業協会会員 / (公社)首都圏不動産公正取引協議会加盟
  • 取引態様: 仲介
  • 部屋情報
  • 地図・周辺環境
  • 取り扱い店舗の情報
  • エリアの口コミ

【掲載物件情報について】

・SUUMOは「自ら居住するための住宅」をお探しの方に向けたポータルサイトです。契約者以外の方が使用する(例:第三者に宿泊させる等)ことを目的としたお問合せはご遠慮ください


・SUUMOではユーザーの皆様に最も信頼されるサイトを目指して、物件情報の精度向上に努めております。SUUMOに掲載されている物件情報について「事実と異なる点や誤解を招く表現がある」「成約済の物件が掲載されている」などにお気づきになりましたら、以下のページからご連絡ください

その他の情報

(株)エステートバンクのその他取り扱い物件

全物件を一覧表示する

最寄駅から探す

最寄駅の沿線から探す

関連エリアから不動産情報を探す

ページトップへ戻る

お気に入りに追加しました。