"20260419000122:H:0" "20260419000122:H:0" "20260419000122:H:0"

ピュアベルデ医大南 - いい部屋ネット(株)良和ハウス岡山中央店が提供する賃貸物件情報

この物件にお問い合わせ
お問い合わせの内容を選択してください
086-899-8998
いい部屋ネット(株)良和ハウス岡山中央店
営業時間:10時~17時 / 定休日:火曜日

部屋の特徴・設備

  • バストイレ別、バルコニー、エアコン、クロゼット、フローリング、シャワー付洗面台、TVインターホン、オートロック、室内洗濯置、シューズボックス、温水洗浄便座、脱衣所、エレベーター、洗面所独立、洗面化粧台、駐輪場、宅配ボックス、即入居可、BS・CS、敷金不要、防犯カメラ、全居室洋室、単身者相談、全居室フローリング、2沿線利用可、クッションフロア、ネット専用回線、ネット使用料不要、3駅以上利用可、敷地内ごみ置き場、全居室6畳以上、オープンキッチン、プロパンガス、洗面所にドア、BS

物件概要

情報の見方

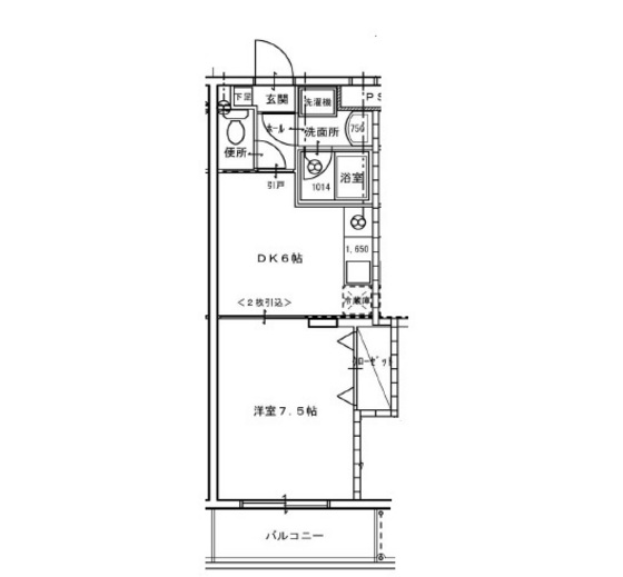
間取り詳細 洋7.5 DK6 構造 鉄筋コン
階建 4階/5階建 築年月 2006年3月
エネルギー
消費性能
- 断熱性能 -
目安光熱費
  • -
損保 2万円2年 駐車場 近隣160m8800円
入居 取引態様 仲介
条件 - 取り扱い店舗
物件コード
-
SUUMO
物件コード
100494314885 総戸数 -
情報更新日 2026/04/17 次回更新予定日 2026/04/25
ほか初期費用
  • 合計2.2万円(内訳:カギ交換代:22000円)
 
周辺情報
  • 岡山聖園幼稚園(幼稚園・保育園)まで391m
  • 岡山市立岡南小学校(小学校)まで778m
  • 岡山市立岡輝中学校(中学校)まで459m
  • 岡山県立岡山南高校(高校・高専)まで352m
  • 岡山市役所(役所)まで1537m
  • 岡山奥田郵便局(郵便局)まで273m

周辺環境を見る

携帯用QRコード
このQRコードを読み取ることで、
ケータイでも物件情報を見ることができます。

物件情報をメールに送る

この物件にお問い合わせ
お問い合わせの内容を選択してください
086-899-8998
いい部屋ネット(株)良和ハウス岡山中央店
営業時間:10時~17時 / 定休日:火曜日

取り扱い店舗

【店舗写真】いい部屋ネット(株)良和ハウス岡山中央店

いい部屋ネット(株)良和ハウス岡山中央店

TEL:086-899-8998

  • 住所: 岡山県岡山市北区田町1-3-1
  • 営業時間: 10時~17時
  • 定休日: 火曜日
  • 免許番号: 国土交通大臣(2)第9113号 / (公社)広島県宅地建物取引業協会会員 /  中国地区不動産公正取引協議会加盟
  • 取引態様: 仲介
  • 部屋情報
  • 地図・周辺環境
  • 取り扱い店舗の情報
  • エリアの口コミ

【掲載物件情報について】

・SUUMOは「自ら居住するための住宅」をお探しの方に向けたポータルサイトです。契約者以外の方が使用する(例:第三者に宿泊させる等)ことを目的としたお問合せはご遠慮ください


・SUUMOではユーザーの皆様に最も信頼されるサイトを目指して、物件情報の精度向上に努めております。SUUMOに掲載されている物件情報について「事実と異なる点や誤解を招く表現がある」「成約済の物件が掲載されている」などにお気づきになりましたら、以下のページからご連絡ください

その他の情報

いい部屋ネット(株)良和ハウス岡山中央店のその他取り扱い物件

全物件を一覧表示する

最寄駅から探す

最寄駅の沿線から探す

関連エリアから不動産情報を探す

ページトップへ戻る

お気に入りに追加しました。