Garden Xavis木場 603号室 - (株)タウンハウジング千葉 津田沼店が提供する賃貸物件情報/東京都江東区東陽3/木場駅の賃貸物件情報 - SUUMO(スーモ)賃貸
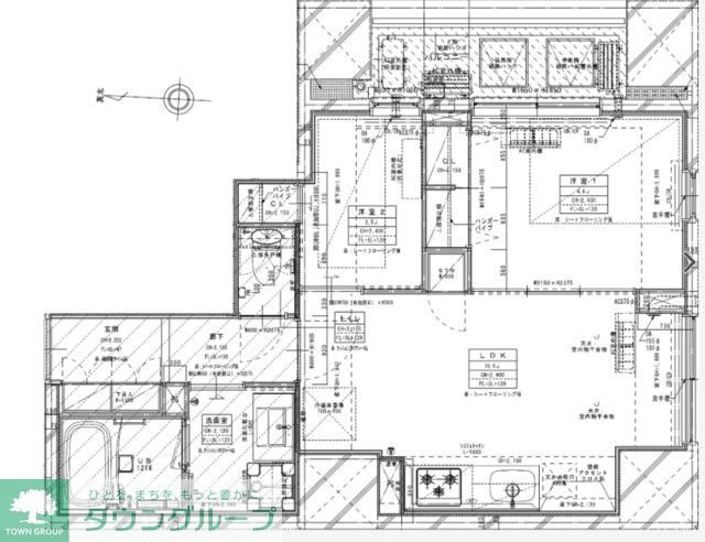
| 間取り詳細 | 洋4.6 洋2.5 LDK10.0 | 構造 | 鉄筋コン |
|---|---|---|---|
| 階建 | 6階/13階建 | 築年月 | 2026年3月 |
| エネルギー 消費性能 |
- | 断熱性能 | - |
| 目安光熱費 |
|
||
| 損保 | 2万円2年 | 駐車場 | - |
| 入居 | 即 | 取引態様 | 仲介 |
| 条件 | ペット相談/フリーレント2ヶ月 2ヶ月 | 取り扱い店舗 物件コード |
R01120-098767 |
| SUUMO 物件コード |
100493996404 | 総戸数 | - |
| 情報更新日 | 2026/04/15 | 次回更新予定日 | 2026/04/23 |
| 契約期間 |
|
||
| 保証会社 |
|
||
| ほか諸費用 |
|
||
| 備考 |
|
||
| 周辺情報 |
|
携帯用QRコード | |

TEL:047-478-0001
他社掲載物件もまとめてご紹介いたしますのでお気軽にご来店お待ちしております。
タウンハウジング津田沼店は千葉全域の物件情報を提供させていただきます。アクセスがいい立地の為学生の方・単身の方・カップルやファミリー物件も多数情報がありますので、お客様の様々なリクエストにお答えいたします。お部屋探しはタウンハウジング津田沼店にお任せください。
【掲載物件情報について】
・SUUMOは「自ら居住するための住宅」をお探しの方に向けたポータルサイトです。契約者以外の方が使用する(例:第三者に宿泊させる等)ことを目的としたお問合せはご遠慮ください
・SUUMOではユーザーの皆様に最も信頼されるサイトを目指して、物件情報の精度向上に努めております。SUUMOに掲載されている物件情報について「事実と異なる点や誤解を招く表現がある」「成約済の物件が掲載されている」などにお気づきになりましたら、以下のページからご連絡ください
|
8.5万円/2LDK
|
7.6万円/1DK
|
7.9万円/3LDK
|
|
8.2万円/1LDK
|
7.9万円/1LDK
|
11.1万円/3LDK
|
|
10.8万円/3LDK
|
11.7万円/2SLDK
|
7.8万円/1K
|
|
19.3万円/2LDK
|
6.6万円/1LDK
|
7.6万円/1LDK
|
|
7.3万円/1K
|
9.4万円/1LDK
|
7万円/1LDK
|
|
8.1万円/1K
|
20万円/2LDK
|
10.8万円/1LDK
|
|
6.2万円/1K
|
7.1万円/3DK
|
19.5万円/2LDK
|
|
10.7万円/2LDK
|
16.7万円/4LDK
|
16.5万円/3LDK
|
|
10.7万円/1K
|
5.6万円/ワンルーム
|
7.4万円/1DK
|
|
7.7万円/1DK
|
20万円/3LDK
|
7.9万円/ワンルーム
|
お気に入りに追加しました。 |