ステラメゾン下北沢 - ピタットハウス(株)西武住宅が提供する賃貸物件情報/東京都世田谷区代田5/下北沢駅の賃貸物件情報 - SUUMO(スーモ)賃貸
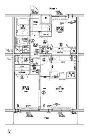
| 間取り詳細 | 洋5 洋4.8 LDK10.7 | 構造 | 鉄筋コン |
|---|---|---|---|
| 階建 | 4階/4階建 | 築年月 | 2000年12月 |
| エネルギー 消費性能 |
- | 断熱性能 | - |
| 目安光熱費 |
|
||
| 損保 | 2万円2年 | 駐車場 | - |
| 入居 | 即 | 取引態様 | 仲介 |
| 条件 | 二人入居可 | 取り扱い店舗 物件コード |
1354702 |
| SUUMO 物件コード |
100489476404 | 総戸数 | - |
| 情報更新日 | 2026/04/15 | 次回更新予定日 | 2026/04/23 |
| 保証会社 |
|
||
| ほか初期費用 |
|
||
| 備考 |
|
||
| 周辺情報 |
|
携帯用QRコード | |

TEL:03-3411-8100
豊富な物件量が自慢です!創業39年の実績で、お客様と大家様から支持されています。
ただ今コロナウイルス対策として、スタッフ一同マスク着用で対応させていただいております。また、店内にアルコール消毒液、飛沫感染予防アクリル板を設置しておりますので、安心してご来店下さい。
下北沢で39年の地域密着店。小田急線、井の頭線、京王線の専門店です。当社管理物件をはじめ、長年提携しているお取引業者様の協力のもと多くの物件をご紹介しています。当社には地方出身者で一人暮らし経験者や、結婚し家庭を持つ者など様々なスタッフがいます。お客様目線でピッタリなお部屋探しをお手伝い致します。賃貸物件はもちろん、売買物件、投資用物件まで幅広く取り扱っております。また
【掲載物件情報について】
・SUUMOは「自ら居住するための住宅」をお探しの方に向けたポータルサイトです。契約者以外の方が使用する(例:第三者に宿泊させる等)ことを目的としたお問合せはご遠慮ください
・SUUMOではユーザーの皆様に最も信頼されるサイトを目指して、物件情報の精度向上に努めております。SUUMOに掲載されている物件情報について「事実と異なる点や誤解を招く表現がある」「成約済の物件が掲載されている」などにお気づきになりましたら、以下のページからご連絡ください
|
6.9万円/ワンルーム
|
19.8万円/1LDK
|
14.3万円/1K
|
|
17万円/1LDK
|
14万円/ワンルーム
|
21.3万円/1LDK
|
|
27.5万円/2LDK
|
10万円/1K
|
23.4万円/1LDK
|
|
39万円/3LDK
|
17.1万円/1LDK
|
24.3万円/1SLDK
|
|
14.4万円/1DK
|
14.3万円/1K
|
27.5万円/2LDK
|
|
19.9万円/ワンルーム
|
14.3万円/ワンルーム
|
14.3万円/1K
|
|
14.3万円/ワンルーム
|
27.5万円/2LDK
|
5.4万円/ワンルーム
|
|
14.3万円/ワンルーム
|
17万円/1K
|
14.4万円/1DK
|
|
28.5万円/2LDK
|
21.3万円/1LDK
|
21万円/3LDK
|
|
39.8万円/3LDK
|
14.5万円/1K
|
18万円/1LDK
|
お気に入りに追加しました。 |