プレサンス ジェネ 栄 - フォーディールーム 名古屋店(株)Four Dが提供する賃貸物件情報/愛知県名古屋市中区栄5/矢場町駅の賃貸物件情報 - SUUMO(スーモ)賃貸
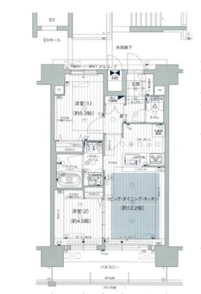
| 間取り詳細 | 洋5.3 洋4.5 LDK12.2 | 構造 | 鉄筋コン |
|---|---|---|---|
| 階建 | 14階/15階建 | 築年月 | 2014年8月 |
| エネルギー 消費性能 |
- | 断熱性能 | - |
| 目安光熱費 |
|
||
| 損保 | 要 | 駐車場 | 近隣100m22000円 |
| 入居 | 即 | 取引態様 | 仲介 |
| 条件 | 単身者可/二人入居可 | 取り扱い店舗 物件コード |
0000062117 |
| SUUMO 物件コード |
100489437954 | 総戸数 | - |
| 情報更新日 | 2026/04/13 | 次回更新予定日 | 2026/04/21 |
| 契約期間 |
|
||
| 保証会社 |
|
||
| 備考 |
|
||
| 周辺情報 |
|
携帯用QRコード | |

TEL:052-583-5610
☆スピード重視☆ご来店不要☆弊社以外のネット上で気になるお部屋をまとめて内見・初期費用の見積りのご依頼承ります。
リーズナブルな物件からハイグレードマンションまで幅広く、お客様のニーズに合わせてご紹介いたします。
名古屋の中心地は勿論、名古屋市内のすべての物件をご紹介可能です!
また、弊社ならではのサービスを展開しております。オンライン相談からお部屋のご内覧、ご契約手続き、初期費用のお支払いまでもがWEB上で可能となります。
当店にてのご契約の場合は初期費用を確実に他社様より安く出来ますので、是非一度ご相談ください。
取り扱い物件数も他社には負けません。他社で紹介しているお部屋も当社でまとめてご内見出来ます!
妥協のないお部屋探しをさせて頂きます。
【掲載物件情報について】
・SUUMOは「自ら居住するための住宅」をお探しの方に向けたポータルサイトです。契約者以外の方が使用する(例:第三者に宿泊させる等)ことを目的としたお問合せはご遠慮ください
・SUUMOではユーザーの皆様に最も信頼されるサイトを目指して、物件情報の精度向上に努めております。SUUMOに掲載されている物件情報について「事実と異なる点や誤解を招く表現がある」「成約済の物件が掲載されている」などにお気づきになりましたら、以下のページからご連絡ください
|
5.4万円/ワンルーム
|
8.22万円/1LDK
|
7.05万円/1LDK
|
|
6.3万円/1K
|
5.5万円/1K
|
8万円/1DK
|
|
9万円/1LDK
|
11.5万円/2LDK
|
6.25万円/1K
|
|
6万円/1K
|
5.86万円/1K
|
6.08万円/1K
|
|
5.8万円/1K
|
6.2万円/1K
|
5.6万円/1K
|
|
6.1万円/1K
|
8.5万円/1K
|
5.7万円/1K
|
|
5.9万円/1K
|
11.1万円/2LDK
|
6.3万円/ワンルーム
|
|
8.25万円/1LDK
|
7.2万円/1K
|
5.65万円/1K
|
|
5万円/1K
|
7.6万円/1LDK
|
6.15万円/1K
|
|
6.46万円/1K
|
5.85万円/1K
|
8.4万円/1LDK
|
お気に入りに追加しました。 |