ディームス渋谷本町 - アエラス目白店 (株)アエラス.ERが提供する賃貸物件情報/東京都渋谷区本町3/西新宿五丁目駅の賃貸物件情報 - SUUMO(スーモ)賃貸
パノラマ
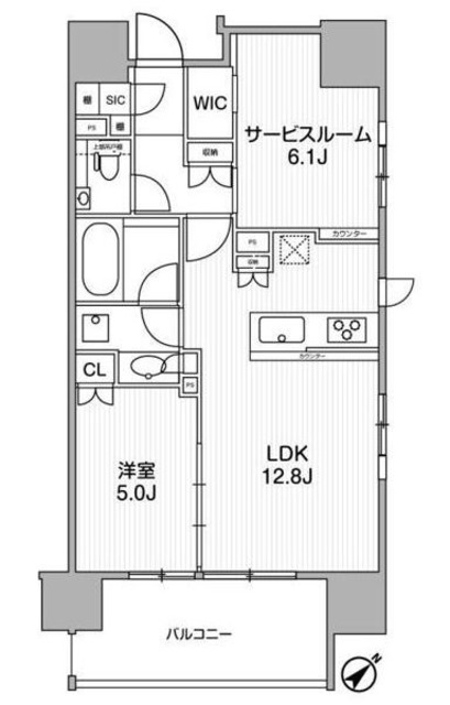
| 間取り詳細 | - | 構造 | 鉄筋コン |
|---|---|---|---|
| 階建 | 5階/14階建 | 築年月 | 2019年2月 |
| エネルギー 消費性能 |
- | 断熱性能 | - |
| 目安光熱費 |
|
||
| 損保 | 要 | 駐車場 | 近隣263m28050円 |
| 入居 | 即 | 取引態様 | 仲介 |
| 条件 | 二人入居可/子供可/ルームシェア不可 | 取り扱い店舗 物件コード |
69878936 |
| SUUMO 物件コード |
100487739058 | 総戸数 | 92戸 |
| 情報更新日 | 2026/04/17 | 次回更新予定日 | 2026/04/25 |
| 契約期間 |
|
||
| ほか初期費用 |
|
||
| 備考 |
|
||
| 周辺情報 |
|
携帯用QRコード | |

TEL:03-6914-4811
まずは、どのような事でも「ご相談」ください。お客様の希望物件が見つかるまで、とことんお付き合いさせて頂きます。
■「弊社掲載」以外の物件でも『合わせて』お調べし、まとめてご紹介いたします。気になる物件は、まとめて遠慮なくご相談ください。
■「審査が不安」「保証人がいない」「賃料交渉して欲しい」などなど、どのような難しいご条件でも遠慮なくご相談ください。笑顔でご対応いたします。
■お手持ちのクレジットカードで、初期費用の全額(または一部)の分割払いを、喜んでお受けいたします。クレジットカード以外でもご相談可能!
■ご検討されているエリア・沿線が広範囲でも、喜んでお探しいたします。
■店舗にご来店できないお客様も、電話やオンラインで、お部屋探しを完結できます。
【掲載物件情報について】
・SUUMOは「自ら居住するための住宅」をお探しの方に向けたポータルサイトです。契約者以外の方が使用する(例:第三者に宿泊させる等)ことを目的としたお問合せはご遠慮ください
・SUUMOではユーザーの皆様に最も信頼されるサイトを目指して、物件情報の精度向上に努めております。SUUMOに掲載されている物件情報について「事実と異なる点や誤解を招く表現がある」「成約済の物件が掲載されている」などにお気づきになりましたら、以下のページからご連絡ください
|
10.7万円/1K
|
14.7万円/ワンルーム
|
7.9万円/ワンルーム
|
|
11.2万円/1K
|
12.2万円/1K
|
25.9万円/1LDK
|
|
13.9万円/1K
|
10.6万円/1K
|
26.4万円/2LDK
|
|
5万円/ワンルーム
|
15.9万円/1SLDK
|
19万円/1LDK
|
|
19.5万円/1LDK
|
5.5万円/ワンルーム
|
12.9万円/2DK
|
|
14.3万円/1LDK
|
12.5万円/2DK
|
23.8万円/1LDK
|
|
20.6万円/2LDK
|
10万円/1K
|
14.45万円/2K
|
|
23万円/2LDK
|
14.5万円/1LDK
|
25.7万円/1LDK
|
|
22.6万円/1LDK
|
22.2万円/1LDK
|
13.1万円/1DK
|
|
21.8万円/1LDK
|
13.9万円/1DK
|
14.2万円/1K
|
お気に入りに追加しました。 |