LUMINOUSつつじヶ丘 312号室 - ハウスコム西東京(株)祖師ヶ谷大蔵店が提供する賃貸物件情報/東京都調布市菊野台1/柴崎駅の賃貸物件情報 - SUUMO(スーモ)賃貸
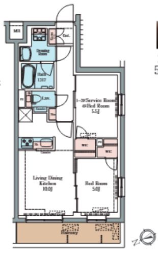
| 間取り詳細 | 洋5 LDK10.0 納戸 5.5 | 構造 | 鉄筋コン |
|---|---|---|---|
| 階建 | 3階/5階建 | 築年月 | 2026年2月 |
| エネルギー 消費性能 |
- | 断熱性能 | - |
| 目安光熱費 |
|
||
| 損保 | 2.15万円2年 | 駐車場 | - |
| 入居 | 即 | 取引態様 | 仲介 |
| 条件 | 二人入居可/ペット相談 | 取り扱い店舗 物件コード |
HC2-5314722-312-0187 |
| SUUMO 物件コード |
100487555512 | 総戸数 | - |
| 情報更新日 | 2026/04/14 | 次回更新予定日 | 2026/04/29 |
| 保証会社 |
|
||
| ほか初期費用 |
|
||
| ほか諸費用 |
|
||
| 備考 |
|
||
| 周辺情報 |
|
携帯用QRコード | |

TEL:0800-8880393 【通話料無料】
小田急線・京王線・田園都市線・世田谷区、狛江市、調布市ならハウスコム祖師ヶ谷大蔵店にお任せ下さいませ!!
ハウスコムは全国に190店舗以上ある地域密着の仲介専門会社でハウスメーカーから地元の不動産会社までお取り引きさせていただいております。気になるお部屋がございましたら、お伝えくださいませ。お探しのお部屋に漏れがないようにいたします。スタッフ一同、一生懸命がんばります!!ぜひご来店くださいませ。
【掲載物件情報について】
・SUUMOは「自ら居住するための住宅」をお探しの方に向けたポータルサイトです。契約者以外の方が使用する(例:第三者に宿泊させる等)ことを目的としたお問合せはご遠慮ください
・SUUMOではユーザーの皆様に最も信頼されるサイトを目指して、物件情報の精度向上に努めております。SUUMOに掲載されている物件情報について「事実と異なる点や誤解を招く表現がある」「成約済の物件が掲載されている」などにお気づきになりましたら、以下のページからご連絡ください
|
29.8万円/4LDK
|
6.5万円/1K
|
12万円/1K
|
|
10.3万円/ワンルーム
|
52万円/3LDK
|
9.6万円/1DK
|
|
14.8万円/2LDK
|
7.9万円/1K
|
5.9万円/1K
|
|
6.3万円/1K
|
16.6万円/1LDK
|
11万円/2DK
|
|
8.9万円/1LDK
|
31.4万円/1SLDK
|
12.2万円/1DK
|
|
5.3万円/ワンルーム
|
22万円/1LDK
|
16.2万円/2LDK
|
|
9.7万円/1K
|
9.5万円/1K
|
5.7万円/1K
|
|
7.6万円/1K
|
37万円/3LDK
|
10.8万円/1K
|
|
22.6万円/3LDK
|
14.4万円/1LDK
|
5.15万円/1K
|
|
7.6万円/1K
|
7万円/1K
|
7.6万円/1K
|
お気に入りに追加しました。 |