レジデンス西新宿スクエア - (株)ユウキ・ホーム麻布十番店が提供する賃貸物件情報/東京都新宿区西新宿5/西新宿五丁目駅の賃貸物件情報 - SUUMO(スーモ)賃貸
パノラマ
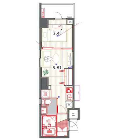
| 間取り詳細 | 洋3.4 DK5.8 | 構造 | 鉄骨鉄筋 |
|---|---|---|---|
| 階建 | 8階/地下1地上14階建 | 築年月 | 2007年2月 |
| エネルギー 消費性能 |
- | 断熱性能 | - |
| 目安光熱費 |
|
||
| 損保 | 1.8万円 | 駐車場 | - |
| 入居 | 相談 | 取引態様 | 仲介 |
| 条件 | 単身者可 | 取り扱い店舗 物件コード |
aaaa 434715 |
| SUUMO 物件コード |
100487294265 | 総戸数 | - |
| 情報更新日 | 2026/02/04 | 次回更新予定日 | 2026/02/19 |
| 保証会社 |
|
||
| ほか初期費用 |
|
||
| 備考 |
|
||
| 周辺情報 |
|
携帯用QRコード | |

TEL:03-5730-0066
麻布十番に3店舗!麻布十番取扱実績No.1 当社のみ取扱いの「専任」情報多数!他の追随を赦さない「地元力」
麻布十番にお店を3店舗展開している「ユウキホーム」はたくさんのお客様に愛され、ご紹介をいただいております。麻布十番や港区を得意とし情報力も一番豊富にございますのでどこにも負けない自信があります。港区以外に中央区・千代田区・目黒区など幅広く取り扱いございますので是非「ユウキホーム」までお問い合わせくださいませ。
英語対応もOK!
賃料、間取り、地域、審査などそのほかなんでも不安や心配事があればお話しください。できる限り皆さまの気持ちにご対応したいと思います。
港区以外の物件も掲載中⇒【http://www.yuuki-home.co.jp/】
【掲載物件情報について】
・SUUMOは「自ら居住するための住宅」をお探しの方に向けたポータルサイトです。契約者以外の方が使用する(例:第三者に宿泊させる等)ことを目的としたお問合せはご遠慮ください
・SUUMOではユーザーの皆様に最も信頼されるサイトを目指して、物件情報の精度向上に努めております。SUUMOに掲載されている物件情報について「事実と異なる点や誤解を招く表現がある」「成約済の物件が掲載されている」などにお気づきになりましたら、以下のページからご連絡ください
|
18.3万円/ワンルーム
|
24万円/1LDK
|
22.5万円/1LDK
|
|
13.4万円/1DK
|
16.1万円/1DK
|
15.7万円/1K
|
|
22.5万円/2LDK
|
23.4万円/1LDK
|
48万円/2LDK
|
|
135万円/3LDK
|
35.5万円/1LDK
|
15.2万円/1K
|
|
28.3万円/2LDK
|
39万円/2LDK
|
13.8万円/ワンルーム
|
|
19.6万円/1DK
|
45.5万円/1SLDK
|
29.9万円/1LDK
|
|
47.2万円/2LDK
|
26万円/1LDK
|
12.3万円/1K
|
|
29万円/1SLDK
|
35.3万円/1LDK
|
22.9万円/1LDK
|
|
9.5万円/2K
|
30万円/2LDK
|
19.7万円/1LDK
|
|
35万円/1LDK
|
32.3万円/1LDK
|
19万円/ワンルーム
|
お気に入りに追加しました。 |