RELUXIA GRANDE 川崎大師公園 317号室 - ハウスコム東神奈川(株)鶴見店が提供する賃貸物件情報/神奈川県川崎市川崎区昭和2/東門前駅の賃貸物件情報 - SUUMO(スーモ)賃貸
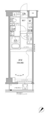
| 間取り詳細 | 洋8.8 | 構造 | 鉄筋コン |
|---|---|---|---|
| 階建 | 3階/7階建 | 築年月 | 2026年3月 |
| エネルギー 消費性能 |
- | 断熱性能 | - |
| 目安光熱費 |
|
||
| 損保 | 要 | 駐車場 | - |
| 入居 | 即 | 取引態様 | 仲介 |
| 条件 | - | 取り扱い店舗 物件コード |
HC2-5359512-317-0163 |
| SUUMO 物件コード |
100486519363 | 総戸数 | - |
| 情報更新日 | 2026/04/17 | 次回更新予定日 | 2026/05/02 |
| 保証会社 |
|
||
| ほか初期費用 |
|
||
| ほか諸費用 |
|
||
| 備考 |
|
||
| 周辺情報 |
|
携帯用QRコード | |

TEL:0800-1700891 【通話料無料】
JR京浜東北線・鶴見駅西口直結!一所懸命満足して頂けるまでお部屋を探します!
鶴見駅は都内と横浜方面両方に出やすく、駅前はおいしい飲食屋やお買い物スポットがたくさんあります。鶴見駅のみならず、お探しできる範囲内で皆様のお部屋探しを全力サポートします。お客様目線・丁寧・熱心をモットーにするスタッフが全力の笑顔で皆様をお出迎えします。お気軽に、何なりとご相談下さい。皆様のご来店、心よりお待ちしております。
【掲載物件情報について】
・SUUMOは「自ら居住するための住宅」をお探しの方に向けたポータルサイトです。契約者以外の方が使用する(例:第三者に宿泊させる等)ことを目的としたお問合せはご遠慮ください
・SUUMOではユーザーの皆様に最も信頼されるサイトを目指して、物件情報の精度向上に努めております。SUUMOに掲載されている物件情報について「事実と異なる点や誤解を招く表現がある」「成約済の物件が掲載されている」などにお気づきになりましたら、以下のページからご連絡ください
|
14.7万円/1LDK
|
7.9万円/2DK
|
7.3万円/1DK
|
|
11.3万円/1LDK
|
4.5万円/ワンルーム
|
12万円/1LDK
|
|
7.4万円/1K
|
9.9万円/1K
|
6.3万円/1K
|
|
8.7万円/1K
|
19.1万円/1LDK
|
15万円/1LDK
|
|
11.4万円/1LDK
|
9.8万円/1K
|
11.4万円/1K
|
|
6万円/1K
|
4.5万円/1K
|
13.3万円/2DK
|
|
6.5万円/ワンルーム
|
9.3万円/1K
|
7.2万円/1K
|
|
9.5万円/2DK
|
25.2万円/3LDK
|
13万円/1K
|
|
10.9万円/1K
|
10万円/1K
|
14.15万円/1LDK
|
|
8.4万円/1K
|
9.6万円/1K
|
10.3万円/1K
|
お気に入りに追加しました。 |