ローレルスクエア登美ヶ丘第I期1番館 - アパマンショップ学園前店(株)丸和不動産が提供する賃貸物件情報/奈良県奈良市中登美ヶ丘4/学研奈良登美ヶ丘駅の賃貸物件情報 - SUUMO(スーモ)賃貸
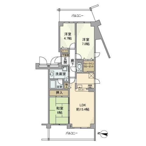
| 間取り詳細 | 和6 洋7.8 洋4.7 LDK15.4 | 構造 | 鉄筋コン |
|---|---|---|---|
| 階建 | 4階/6階建 | 築年月 | 1997年2月 |
| エネルギー 消費性能 |
- | 断熱性能 | - |
| 目安光熱費 |
|
||
| 損保 | 要 | 駐車場 | - |
| 入居 | 相談 | 取引態様 | 仲介 |
| 条件 | - | 取り扱い店舗 物件コード |
103167891 |
| SUUMO 物件コード |
100477659091 | 総戸数 | - |
| 情報更新日 | 2026/02/28 | 次回更新予定日 | 2026/03/08 |
| バルコニー面積 |
|
||
| 契約期間 |
|
||
| 保証会社 |
|
||
| ほか初期費用 |
|
||
| 備考 |
|
||
| 周辺情報 |
|
携帯用QRコード | |

TEL:0742-44-0051
お部屋情報が新鮮!学園前界隈に精通したルームアドバイザー在籍!【どこでも接客】実施中!来店不要・自宅で完結可能!
数少ない賃貸LIFEのお部屋を一緒に見つけましょう!当社は1964年に創業し賃貸アパートやマンション、テナント・駐車場などの賃貸仲介・賃貸管理を行っております。お部屋探しを楽しんでいただく為『トゥクトゥクGO!』を実施しご好評いただいております。また、IT化の進む不動産業界で当社は奈良県でもいち早くVRを導入『どこでもVR内見』HP上でご覧いただけます。奈良県内に12店舗を展開し奈良県内や京都府南部のお部屋探しがどこの店舗でも可能です。当社スタッフはお客様目線でのご説明や案内をモットーに条件交渉なども是非お任せください!お迎えサービスなども無料実施中!
【掲載物件情報について】
・SUUMOは「自ら居住するための住宅」をお探しの方に向けたポータルサイトです。契約者以外の方が使用する(例:第三者に宿泊させる等)ことを目的としたお問合せはご遠慮ください
・SUUMOではユーザーの皆様に最も信頼されるサイトを目指して、物件情報の精度向上に努めております。SUUMOに掲載されている物件情報について「事実と異なる点や誤解を招く表現がある」「成約済の物件が掲載されている」などにお気づきになりましたら、以下のページからご連絡ください
|
4.8万円/1K
|
4.5万円/1DK
|
5.5万円/1K
|
|
13.7万円/2LDK
|
18.5万円/4LDK
|
4.3万円/2DK
|
|
7.3万円/2LDK
|
6万円/1K
|
15.4万円/2LDK
|
|
11.97万円/3LDK
|
10.5万円/2LDK
|
3.9万円/1K
|
|
4.8万円/2LDK
|
4.5万円/1K
|
4万円/1K
|
|
6.7万円/1LDK
|
5.9万円/1K
|
7.5万円/1LDK
|
|
4.2万円/2K
|
7.4万円/2LDK
|
9.65万円/2LDK
|
|
4.9万円/2LDK
|
5.5万円/2DK
|
4.8万円/1K
|
|
7.5万円/1LDK
|
6万円/1K
|
5.5万円/2LDK
|
|
7.4万円/1LDK
|
6.9万円/1LDK
|
5万円/2LDK
|
お気に入りに追加しました。 |