グランカーサ北浦和 302号室 - いい部屋ネット大東建託リーシング(株)坂戸店が提供する賃貸物件情報/埼玉県さいたま市浦和区北浦和3/北浦和駅の賃貸物件情報 - SUUMO(スーモ)賃貸
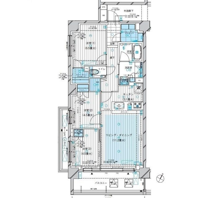
| 間取り詳細 | 洋6.5 洋4.5 洋4.5 LDK14.30 | 構造 | 鉄筋コン |
|---|---|---|---|
| 階建 | 3階/6階建 | 築年月 | 2019年6月 |
| エネルギー 消費性能 |
- | 断熱性能 | - |
| 目安光熱費 |
|
||
| 損保 | 1.66万円2年 | 駐車場 | - |
| 入居 | 即 | 取引態様 | 仲介 |
| 条件 | ペット相談/事務所利用不可 | 取り扱い店舗 物件コード |
261-5600307 |
| SUUMO 物件コード |
100463098733 | 総戸数 | 53戸 |
| 情報更新日 | 2026/02/07 | 次回更新予定日 | 2026/02/15 |
| バルコニー面積 |
|
||
| 保証会社 |
|
||
| ほか初期費用 |
|
||
| ほか諸費用 |
|
||
| 備考 |
|
||
| 周辺情報 |
|
携帯用QRコード | |

TEL:049-285-4343
TVCMでお馴染みの「いい部屋ネット」坂戸店
いい部屋ネット坂戸店です。 いいへや探すならいい部屋ネット!大東建託グループは賃貸仲介件数No.1を獲得しており、「ペット可(相談物件)」「一人暮らし(単身)物件」「敷金ゼロの物件特集」「マンスリー賃貸」などの多様なこだわりからお部屋を見つけられるため、お部屋探しをしている人向けに、賃貸アパートや賃貸マンション等の幅広い賃貸物件がご案内が可能です。また、クレジット決済、LINEでのご対応、WEB内覧、オンラインでの重要事項説明もご対応可能です。是非、当社にお任せくださオンライン内見・現地集合でのご案内も承っております
お気軽にご来店、お問合せ下さい
【掲載物件情報について】
・SUUMOは「自ら居住するための住宅」をお探しの方に向けたポータルサイトです。契約者以外の方が使用する(例:第三者に宿泊させる等)ことを目的としたお問合せはご遠慮ください
・SUUMOではユーザーの皆様に最も信頼されるサイトを目指して、物件情報の精度向上に努めております。SUUMOに掲載されている物件情報について「事実と異なる点や誤解を招く表現がある」「成約済の物件が掲載されている」などにお気づきになりましたら、以下のページからご連絡ください
|
8.8万円/1LDK
|
10万円/4LDK
|
7.5万円/1K
|
|
8.2万円/1LDK
|
16.3万円/2LDK
|
5.2万円/2DK
|
|
11.45万円/1LDK
|
8.25万円/1K
|
13.7万円/3LDK
|
|
16.9万円/3LDK
|
5.8万円/1DK
|
9.6万円/2SLDK
|
|
8.2万円/1LDK
|
9万円/2LDK
|
7.5万円/1K
|
|
13.5万円/2LDK
|
7.2万円/1K
|
4.8万円/1K
|
|
3.8万円/1K
|
5.8万円/2LDK
|
8.75万円/1DK
|
|
9.9万円/ワンルーム
|
7.3万円/2LDK
|
6.6万円/ワンルーム
|
|
5.8万円/3LDK
|
5.73万円/1K
|
6.3万円/1K
|
|
2.7万円/1K
|
7.3万円/1LDK
|
12.5万円/2K
|
お気に入りに追加しました。 |