広島電鉄宇品線 元宇品口駅 6階建 築12年 - いい部屋ネット大東建託リーシング(株)東広島店が提供する賃貸物件情報/広島県広島市南区宇品海岸2/元宇品口駅の賃貸物件情報 - SUUMO(スーモ)賃貸
パノラマ
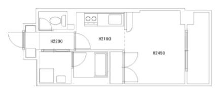
| 間取り詳細 | 洋9 K2.30 | 構造 | 鉄筋コン |
|---|---|---|---|
| 階建 | 5階/6階建 | 築年月 | 2014年12月 |
| エネルギー 消費性能 |
- | 断熱性能 | - |
| 目安光熱費 |
|
||
| 損保 | 要 | 駐車場 | - |
| 入居 | 即 | 取引態様 | 仲介 |
| 条件 | ペット相談 | 取り扱い店舗 物件コード |
413-5401001 |
| SUUMO 物件コード |
100452915021 | 総戸数 | - |
| 情報更新日 | 2025/12/15 | 次回更新予定日 | 2025/12/23 |
| 保証会社 |
|
||
| 備考 |
|
||
| 周辺情報 |
|
携帯用QRコード | |

TEL:082-422-0350
いい部屋ネット東広島店ではお客様にお喜び頂けるお部屋探しをサポート致します!
当店はTV・CMでお馴染みのいい部屋ネット直営店です。直営店ならではの豊富な賃貸情報をご用意しております。全国各地からのお部屋探し(オンラインでのご案内も可能)、お急ぎの引越、現地ご案内も対応可能です!親切、丁寧をモットーに納得のいくお部屋をお探しします!!
【年末年始休業】12/22(月)~1/3(土)
【掲載物件情報について】
・SUUMOは「自ら居住するための住宅」をお探しの方に向けたポータルサイトです。契約者以外の方が使用する(例:第三者に宿泊させる等)ことを目的としたお問合せはご遠慮ください
・SUUMOではユーザーの皆様に最も信頼されるサイトを目指して、物件情報の精度向上に努めております。SUUMOに掲載されている物件情報について「事実と異なる点や誤解を招く表現がある」「成約済の物件が掲載されている」などにお気づきになりましたら、以下のページからご連絡ください
|
6.7万円/1LDK
|
4.3万円/2DK
|
5.3万円/2LDK
|
|
6.7万円/1K
|
5.8万円/3DK
|
5.6万円/1LDK
|
|
6.1万円/1K
|
3.8万円/1K
|
8.3万円/1LDK
|
|
6.2万円/2LDK
|
5.7万円/3DK
|
8.3万円/2LDK
|
|
4.15万円/ワンルーム
|
4.8万円/2LDK
|
4.6万円/2LDK
|
|
5.9万円/ワンルーム
|
4.05万円/1LDK
|
7万円/1LDK
|
|
5.7万円/1LDK
|
3.9万円/1K
|
6.05万円/1LDK
|
|
4.3万円/ワンルーム
|
13.5万円/2LDK
|
5.4万円/ワンルーム
|
|
3.5万円/1K
|
4.1万円/1SK
|
6万円/ワンルーム
|
|
5.9万円/2LDK
|
4.5万円/1K
|
5.6万円/ワンルーム
|
お気に入りに追加しました。 |