Sumai-to練馬区大泉町06 0001号室 - いい部屋ネット大東建託リーシング(株)練馬店が提供する賃貸物件情報/東京都練馬区大泉町3/大泉学園駅の賃貸物件情報 - SUUMO(スーモ)賃貸
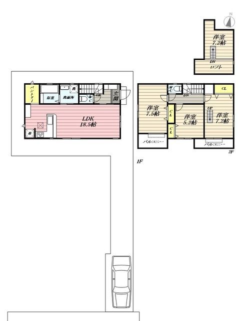
| 間取り詳細 | 洋7.5 洋7.2 洋5.2 LDK18.50 | 構造 | 木造 |
|---|---|---|---|
| 階建 | 1-2階/地上2階建 | 築年月 | 2024年9月 |
| エネルギー 消費性能 |
- | 断熱性能 | - |
| 目安光熱費 |
|
||
| 損保 | - | 駐車場 | 付無料 |
| 入居 | 即 | 取引態様 | 仲介 |
| 条件 | 二人入居可/ペット相談/楽器相談/フリーレント1ヶ月 | 取り扱い店舗 物件コード |
306-5022488 |
| SUUMO 物件コード |
100415651328 | 総戸数 | - |
| 情報更新日 | 2025/12/10 | 次回更新予定日 | 2025/12/18 |
| バルコニー面積 |
|
||
| 保証会社 |
|
||
| ほか初期費用 |
|
||
| ほか諸費用 |
|
||
| 備考 |
|
||
| 周辺情報 |
|
携帯用QRコード | |

TEL:03-3993-2631
【いいへや探すならいい部屋ネット】お部屋探しは「いい部屋ネット 練馬店」へ!直営いい部屋ネット店舗です♪
スタッフ一同、ご来店お待ちしております!TVCMでおなじみの「いい部屋ネット」の大東建託リーシング練馬店です。練馬区をはじめ、中野区、杉並区、西東京市、武蔵野市、その他近隣市区のアパート、マンション、戸建て、分譲賃貸のお部屋探しをサポートします。
新築・築浅マンション・アパート・戸建・タワーマンションなど多数物件をご用意。社宅や法人契約にも対応しております。ワクワクする新生活のスタートをお手伝い!まずはお気軽にご相談くださいませ。大家様の「貸したい」「売りたい」ご相談も随時承っております。賃貸も売買もいい部屋ネットにお任せください!
【掲載物件情報について】
・SUUMOは「自ら居住するための住宅」をお探しの方に向けたポータルサイトです。契約者以外の方が使用する(例:第三者に宿泊させる等)ことを目的としたお問合せはご遠慮ください
・SUUMOではユーザーの皆様に最も信頼されるサイトを目指して、物件情報の精度向上に努めております。SUUMOに掲載されている物件情報について「事実と異なる点や誤解を招く表現がある」「成約済の物件が掲載されている」などにお気づきになりましたら、以下のページからご連絡ください
|
22.5万円/2LDK
|
17万円/1LDK
|
11.55万円/1LDK
|
|
19万円/1DK
|
14万円/1K
|
13.8万円/1LDK
|
|
20万円/3LDK
|
14.3万円/1LDK
|
11.9万円/ワンルーム
|
|
11.6万円/ワンルーム
|
16.8万円/1LDK
|
18.6万円/1LDK
|
|
8.1万円/1K
|
58.5万円/2LDK
|
9.9万円/1K
|
|
13.4万円/1K
|
10.5万円/1DK
|
19.9万円/2LDK
|
|
15万円/1LDK
|
12.9万円/1K
|
11.95万円/1LDK
|
|
14.8万円/1LDK
|
14.7万円/1LDK
|
12.9万円/1K
|
|
18.4万円/2LDK
|
12.55万円/1LDK
|
13.75万円/2LDK
|
|
12.5万円/1LDK
|
14.8万円/1DK
|
22.6万円/2LDK
|
お気に入りに追加しました。 |