メゾン中山 202号室 - オールハウス(株)段原店(お問合せ窓口)が提供する賃貸物件情報/広島県広島市東区中山東1/矢賀駅の賃貸物件情報 - SUUMO(スーモ)賃貸
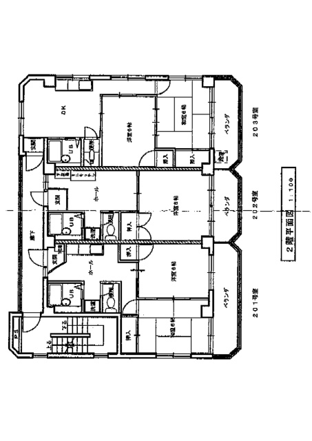
| 間取り詳細 | 洋8 K6 | 構造 | 鉄筋コン |
|---|---|---|---|
| 階建 | 2階/4階建 | 築年月 | 1978年4月 |
| エネルギー 消費性能 |
- | 断熱性能 | - |
| 目安光熱費 |
|
||
| 損保 | 要 | 駐車場 | - |
| 入居 | 即 | 取引態様 | 仲介 |
| 条件 | - | 取り扱い店舗 物件コード |
45101 |
| SUUMO 物件コード |
100336042022 | 総戸数 | - |
| 情報更新日 | 2026/04/18 | 次回更新予定日 | 2026/04/26 |
| 備考 |
|
||
| 周辺情報 |
|
携帯用QRコード | |

TEL:082-567-5678
『また来たくなるお店』が当店舗のテーマです。
豊富な物件情報も大切ですが人一倍気にかけているのは店内の雰囲気です。明るく元気に誠実な営業スタイルを常に心がけております。是非一度お店で体感してください!!ご来店心よりお待ちしております。
是非こちらのPR動画をご覧ください!!
https://www.youtube.com/watch?v=HrHvL97IFDI&feature=youtu.be
【掲載物件情報について】
・SUUMOは「自ら居住するための住宅」をお探しの方に向けたポータルサイトです。契約者以外の方が使用する(例:第三者に宿泊させる等)ことを目的としたお問合せはご遠慮ください
・SUUMOではユーザーの皆様に最も信頼されるサイトを目指して、物件情報の精度向上に努めております。SUUMOに掲載されている物件情報について「事実と異なる点や誤解を招く表現がある」「成約済の物件が掲載されている」などにお気づきになりましたら、以下のページからご連絡ください
|
5.8万円/1K
|
4.5万円/1K
|
3万円/1K
|
|
6万円/3LDK
|
4.1万円/ワンルーム
|
8.6万円/2LDK
|
|
5.3万円/4LDK
|
6.4万円/ワンルーム
|
11.5万円/2LDK
|
|
7.4万円/2LDK
|
7.2万円/1SLDK
|
4.5万円/1K
|
|
8.5万円/2LDK
|
6.5万円/1LDK
|
7.2万円/2LDK
|
|
5.1万円/1K
|
9.1万円/1LDK
|
6.15万円/1K
|
|
6.7万円/1DK
|
10.3万円/2LDK
|
3.8万円/1K
|
|
4.2万円/ワンルーム
|
5.6万円/1DK
|
10万円/4LDK
|
|
3.8万円/1K
|
3.8万円/ワンルーム
|
5.3万円/1K
|
|
4.5万円/1K
|
6.35万円/1K
|
7.8万円/2LDK
|
お気に入りに追加しました。 |