メゾン中山 202号室 - オールハウス(株)大町店が提供する賃貸物件情報/広島県広島市東区中山東1/矢賀駅の賃貸物件情報 - SUUMO(スーモ)賃貸
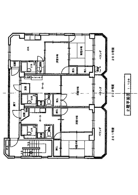
| 間取り詳細 | 洋8 K6 | 構造 | 鉄筋コン |
|---|---|---|---|
| 階建 | 2階/4階建 | 築年月 | 1978年4月 |
| エネルギー 消費性能 |
- | 断熱性能 | - |
| 目安光熱費 |
|
||
| 損保 | 要 | 駐車場 | - |
| 入居 | 即 | 取引態様 | 仲介 |
| 条件 | - | 取り扱い店舗 物件コード |
45101 |
| SUUMO 物件コード |
100336042021 | 総戸数 | - |
| 情報更新日 | 2026/04/14 | 次回更新予定日 | 2026/04/22 |
| 備考 |
|
||
| 周辺情報 |
|
携帯用QRコード | |

TEL:082-567-5678
お客様の気持ちを一番に。理想の住まいを探すお手伝いさせて頂きます☆
是非こちらのPR動画をご覧ください!!
https://www.youtube.com/watch?v=HrHvL97IFDI&feature=youtu.be
オールハウスでは、下記取り組みも行っています。
・オンライン内見
LINEで繋がりオンライン上で物件をご案内させていただきます。
・お客様だけでの物件内覧
スタッフは同行せず、お客様だけで物件をご見学して頂けます。
・物件(近隣状況含む)の動画撮影
ご希望の物件と近隣、周辺状況の動画をお送り出来ます。
【掲載物件情報について】
・SUUMOは「自ら居住するための住宅」をお探しの方に向けたポータルサイトです。契約者以外の方が使用する(例:第三者に宿泊させる等)ことを目的としたお問合せはご遠慮ください
・SUUMOではユーザーの皆様に最も信頼されるサイトを目指して、物件情報の精度向上に努めております。SUUMOに掲載されている物件情報について「事実と異なる点や誤解を招く表現がある」「成約済の物件が掲載されている」などにお気づきになりましたら、以下のページからご連絡ください
|
4万円/1K
|
9.5万円/1LDK
|
7.45万円/ワンルーム
|
|
5.8万円/3DK
|
4.6万円/1K
|
5.7万円/3DK
|
|
6.1万円/1K
|
5.8万円/2LDK
|
6.5万円/3LDK
|
|
8万円/1LDK
|
4万円/1DK
|
10.5万円/2LDK
|
|
4.1万円/1K
|
3.6万円/ワンルーム
|
5.7万円/1K
|
|
3万円/ワンルーム
|
7.5万円/3LDK
|
6万円/1K
|
|
10.9万円/2LDK
|
9.5万円/3LDK
|
4.3万円/2LDK
|
|
6.3万円/1K
|
4.8万円/1LDK
|
4.7万円/1K
|
|
11万円/1LDK
|
4.1万円/1K
|
4万円/ワンルーム
|
|
6.5万円/1K
|
5.8万円/1LDK
|
4.2万円/1K
|
お気に入りに追加しました。 |