西本住宅 - (株)良和ハウス安佐南店が提供する賃貸物件情報/広島県広島市安佐南区川内6/七軒茶屋駅の賃貸物件情報 - SUUMO(スーモ)賃貸
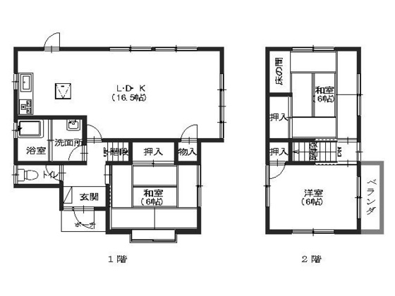
| 間取り詳細 | 和6 和6 洋6 LDK16.5 | 構造 | 木造 |
|---|---|---|---|
| 階建 | 2階建 | 築年月 | 1985年5月 |
| エネルギー 消費性能 |
- | 断熱性能 | - |
| 目安光熱費 |
|
||
| 損保 | 2万円2年 | 駐車場 | 付無料 |
| 入居 | 相談 | 取引態様 | 仲介 |
| 条件 | - | 取り扱い店舗 物件コード |
- |
| SUUMO 物件コード |
100296088996 | 総戸数 | - |
| 情報更新日 | 2026/04/18 | 次回更新予定日 | 2026/04/26 |
| 保証会社 |
|
||
| ほか初期費用 |
|
||
| 周辺情報 |
|
携帯用QRコード | |

TEL:082-553-9092
「これだ!!」って、思う瞬間をお届けしたい!!そんな思いがいっぱいのスタッフがお待ちしております☆
広島県内管理戸数NO1の実績と、地元広島で築き上げてきたネットワークをもとに、様々な物件をご提案させていただきます。
お買い物や学校。地域の情報など、地元ならでは情報も含めて、お客様のニーズにお応えいたします。
また、現地ご案内や、駅までのご送迎も行っておりますので、お気軽にお問合せくださいませ。もちろん、駐車場も完備しておりますので、お車でのご来店も大歓迎です。(弊社は、アストラムライン古市駅徒歩1分の店舗です!)
☆笑顔と経験豊富なスタッフが、皆様のご来店を心よりお待ちしております☆
【掲載物件情報について】
・SUUMOは「自ら居住するための住宅」をお探しの方に向けたポータルサイトです。契約者以外の方が使用する(例:第三者に宿泊させる等)ことを目的としたお問合せはご遠慮ください
・SUUMOではユーザーの皆様に最も信頼されるサイトを目指して、物件情報の精度向上に努めております。SUUMOに掲載されている物件情報について「事実と異なる点や誤解を招く表現がある」「成約済の物件が掲載されている」などにお気づきになりましたら、以下のページからご連絡ください
|
10.3万円/2LDK
|
5.5万円/2LDK
|
6.4万円/ワンルーム
|
|
9万円/2LDK
|
5.6万円/1K
|
6.05万円/1K
|
|
5.2万円/1DK
|
3.5万円/1K
|
3.9万円/1K
|
|
4万円/1K
|
3.5万円/1K
|
4.2万円/2DK
|
|
3.6万円/1DK
|
3.5万円/1DK
|
3.9万円/1DK
|
|
3.5万円/1DK
|
3.5万円/1K
|
5.3万円/1LDK
|
|
2.5万円/ワンルーム
|
9.5万円/1LDK
|
3.5万円/1K
|
|
12万円/3LDK
|
7.8万円/1LDK
|
3.9万円/1K
|
|
4万円/1DK
|
7.4万円/1K
|
4万円/ワンルーム
|
|
6.3万円/3LDK
|
5.9万円/1LDK
|
2.2万円/1K
|
お気に入りに追加しました。 |