JR奈良線/長池駅 歩9分の物件情報

お気に入りに追加しました

お気に入りを解除しました

×0

コーポ明津 1階

  • 1/20

  • 2/20

  • 3/20

  • 4/20

  • 5/20

  • 6/20

  • 7/20

  • 8/20

  • 9/20

  • 10/20

  • 11/20

  • 12/20

  • 13/20

  • 14/20

  • 15/20

  • 16/20

  • 17/20

  • 18/20

  • 19/20

  • 20/20

  • 3.2万円(管理費 3000円)
  • --
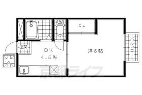
  • 1DK / 24.04平米

ほんとにセパレート@

セパレートでこの価格!2口コンロも設置可能! 物件情報からエリア情報まで京都の賃貸物件紹介はお任せください!

基本情報

賃料 / 管理費・共益費 3.2万円 / 3000円
敷金(保証金) / 礼金(敷引・償却金) - / -
間取り / 専有面積 1DK / 24.04平米
種別 / 構造 アパート / 軽量鉄骨
築年 / 築年月 築39年 / 1987年3月
階建 1階/2階建
総戸数 8戸
向き
住所 地図
京都府城陽市富野北垣内
交通 JR奈良線/長池駅 歩9分
近鉄京都線/富野荘駅 歩11分
JR奈良線/城陽駅 歩18分

動画

動画

部屋の特徴

  • バス・トイレ別
  • 2階以上
  • 駐車場あり
  • 室内洗濯機置場
  • エアコン付き
  • ペット相談可
  • オートロック
  • 洗面所独立
入居条件 年内入居可、IT重説 対応物件
費用条件 礼金不要、敷金不要
バス・トイレ・洗面所 バストイレ別
キッチン ガスコンロ対応、都市ガス
セキュリティ カードキー
駐車・駐輪 駐輪場
部屋の特徴 全居室洋室、全居室6畳以上
バルコニー・テラス・庭 バルコニー
陽当たり・採光 南向き
情報設備・回線 光ファイバー、高速ネット対応
立地・環境 3駅以上利用可、駅徒歩10分以内

周辺環境

スーパー
アル・プラザ 城陽まで630m (徒歩8分)
スーパー
スーパー山田屋 富野荘店まで782m (徒歩10分)
銀行
京都中央信用金庫 富野荘支店まで860m (徒歩11分)
コンビニ
ファミリーマート富野荘駅前店まで920m (徒歩12分)
大学・短大
同志社大学(田辺)まで3940m (徒歩50分)
大学・短大
同志社女子大学(田辺)まで3940m (徒歩50分)

物件概要

間取り詳細 洋6 K4.5
エネルギー消費性能 -
断熱性能 -
目安光熱費 -
駐車場 -
入居 '25年12月下旬
条件 -
損保 3.3万円2年
ほか初期費用 合計6.05万円(内訳:スマイルパック2.2万円 カードキー1.65万円 ハウスクリーニング代2.2万円)
その他諸費用 -
情報更新日 2025/12/16
次回更新予定日 2025/12/24
物件備考 近鉄京都線寺田駅徒歩19分/更新料:22000円 更新手数料:無

店舗情報

取り扱い店舗 (株)京都ライフ小倉店
問い合わせ先 電話で問い合わせ
営業時間 / 定休日 09:30~19:00 / 年中無休(盆正月を除く)
所在地 地図
京都府宇治市小倉町 神楽田21-5 アーパネックス小倉ビル1階
免許番号 京都府知事(11)第6353号 / (公社)京都府宅地建物取引業協会会員 / (公社)近畿地区不動産公正取引協議会加盟
取引態様 仲介

SUUMO物件コード:100469664403

取り扱い店舗物件コード:K25001-101

【掲載物件情報について】
・SUUMOは「自ら居住するための住宅」をお探しの方に向けたポータルサイトです。契約者以外の方が使用する(例:第三者に宿泊させる等)ことを目的としたお問合せはご遠慮ください
・SUUMOではユーザーの皆様に最も信頼されるサイトを目指して、物件情報の精度向上に努めております。
SUUMOに掲載されている物件情報について「事実と異なる点や誤解を招く表現がある」「成約済の物件が掲載されている」などにお気づきになりましたら、以下のページからご連絡ください

お気に入りに
追加しました

右上のボタンから確認できます

お気に入りから
削除しました

右上のボタンから確認できます

お気に入りに
追加済みです

右上のボタンから確認できます

お気に入りが
上限に達しています

右上のボタンから確認できます

システムエラーにより
お気に入りの登録に
失敗しました

システムエラーにより
お気に入りの削除に
失敗しました

ボタンをタップすると
お気に入りへ追加・削除します

未追加

追加済

右上のボタンから確認できます

ブラウザがプライベート設定に
なっています。
お気に入りを使う場合は
通常のブラウザモードに
してください。

以下の内容で
検索条件を
登録しました

以下の内容で
検索条件および
メール配信を登録しました

検索条件に
追加済みです

検索条件が
上限に達しています

システムエラーにより
検索条件登録に
失敗しました

システムエラーです

条件に一致する物件が
ありませんでした。

通信が行えませんでした。
通信状況を確認してください。