"20251207204708:H:0" "20251207204708:H:0" "20251207204708:H:0"
ザ・パークハウス 赤羽台タワー&レジデンス (間取り図 T100A)

ザ・パークハウス 赤羽台タワー&レジデンス (間取り図 T100A)

価格未定
1DK~3LDK | 31.33m2~137.83m2、※戸別宅配ボックス面積0.41m2~0.86m2、合計専有面積31.90m2~138.41m2 | JR京浜東北線「赤羽」歩4分
SUUMO(スーモ)新築マンションのザ・パークハウス 赤羽台タワー&レジデンスの間取り(T100A)詳細情報です。
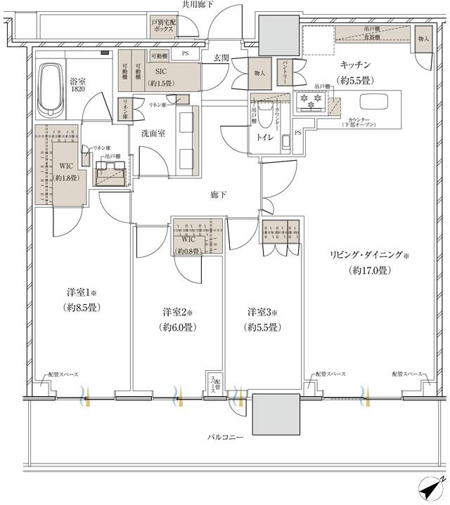
T100A
  • 所在地 東京都北区赤羽台1丁目1番36(他2筆)(地番)
  • 交通 JR京浜東北線「赤羽」歩4分
間取りの概要/特徴
価格

未定

間取り
  • 3LDK+2WIC+SIC
専有面積
  • 100.43m2
バルコニーまたは
テラス面積
  • 19.15m2
その他
  • 戸別宅配ボックス面積:0.57m2 合計専有面積:101.00m2 ※リビング・ダイニング、洋室1・2・3は、建築基準法の居室要件を満たすために、床面全てにおいて50ルクス以上の照度を確保できる照明器具の設置が必要です。
特徴
キッチン
  • ディスポーザー
  • 浄水器or活水器
設備・構造
  • 浴室1.6×2.0M以上
  • リビングダイニング15畳以上
  • LD15畳以上

【この物件広告についての注釈】

※価格は物件の代金総額を表示しています。消費税が課税される場合は税込み価格を表示しており、10000円未満を切り上げている場合があります。

※住戸別の価格(帯)表記については、そのタイプに含まれるすべての住戸の情報を掲載していない場合があります。住戸タイプと各住戸の価格帯表記について、単位(1000万円・100万円・10万円)が異なる場合があります。

※「モデルルーム」とは、間取りや仕様・設備などを知ることができる施設全般を指し、それらの一部のみ展示している「サンプルルーム」や「ギャラリー」、「インフォメーションセンター」なども含みます。

※完成予想図はいずれも外構、植栽、外観等実際のものとは多少異なることがあります。

※CG合成の画像の場合、実際とは多少異なる場合があります。

※完成後1年以上を経過した未入居物件が掲載される場合があります。ご了承ください。

※掲載の省エネ性能ラベル内の物件・住棟・号室名称については最新のものに変更されている場合があります。

※概要のエネルギー消費性能、断熱性能、目安光熱費については、表示している省エネ性能ラベルによってデータの内容が異なります。販売戸数が複数の住棟ラベル、または住戸ラベルの場合は、原則建築確認が下りている物件全体の最小~最大を、販売戸数1戸の住戸ラベルの場合はその住戸のデータを表示しています。

ザ・パークハウス 赤羽台タワー&レジデンス 物件概要

所在地
東京都北区赤羽台1丁目1番36(他2筆)(地番)
地図を見る
交通 JR京浜東北線「赤羽」歩4分 総戸数 550戸(他に生活利便施設5区画、公共自転車置場1区画)
間取り 1DK~3LDK 専有面積 31.33m2~137.83m2、※戸別宅配ボックス面積0.41m2~0.86m2、合計専有面積31.90m2~138.41m2
価格
未定
引渡可能時期 2029年1月中旬予定
販売スケジュール 2026年5月上旬より販売開始予定

情報更新日:2025/12/4

お問い合わせ先

「ザ・パークハウス 赤羽台タワー&レジデンス」販売準備室

0120-320-335 無料

お問合せの際は『SUUMO(スーモ)を見て』とお伝えいただくとスムーズです。

営業時間:11:00AM~正午 1:00PM~5:00PM

定休日:火・水・木曜日 ※2025年12月23日(火)~2026年1月8日(木)は年末年始休業いたします。

【67731658】ザ・パークハウス 赤羽台タワー&レジデンス
他の物件も見てみる!

あなたにオススメの物件

PR

条件を変更して物件を探す

ページトップへ戻る
簡単!約2分で完了
以前にもチェックした物件です 簡単!約2分で完了 まずは気軽に資料請求をしてみよう!