"20251209223848:H:0" "20251209223848:H:0" "20251209223848:H:0"
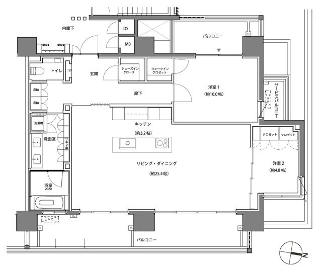
ザ・ブランシエラ那覇 (間取り図 B(2~7階))

ザ・ブランシエラ那覇 (間取り図 B(2~7階))

1億1800万円~3億3700万円  (先着順販売住戸)
2LDK・3LDK | 108.06m2~202.56m2 | 沖縄都市モノレール「牧志」歩3分
SUUMO(スーモ)新築マンションのザ・ブランシエラ那覇の間取り(B(2~7階))詳細情報です。
B(2~7階)
  • 所在地 沖縄県那覇市牧志3-296-4、297-8(地番)
  • 交通 沖縄都市モノレール「牧志」歩3分
間取りの概要/特徴
価格

1億1800万円~1億5100万円(先着順販売住戸)

間取り
  • 2LDK
専有面積
  • 108.06m2
バルコニーまたは
テラス面積
  • 32.23m2
その他
  • サービスバルコニー面積:3.36m2
特徴
キッチン
  • 電磁調理器
  • 浄水器or活水器
立地・配置
  • 角部屋
設備・構造
  • 浴室1.6×2.0M以上
  • リビングダイニング15畳以上
  • 角住戸
  • LD15畳以上

【この物件広告についての注釈】

※価格は物件の代金総額を表示しています。消費税が課税される場合は税込み価格を表示しており、10000円未満を切り上げている場合があります。

※住戸別の価格(帯)表記については、そのタイプに含まれるすべての住戸の情報を掲載していない場合があります。住戸タイプと各住戸の価格帯表記について、単位(1000万円・100万円・10万円)が異なる場合があります。

※「モデルルーム」とは、間取りや仕様・設備などを知ることができる施設全般を指し、それらの一部のみ展示している「サンプルルーム」や「ギャラリー」、「インフォメーションセンター」なども含みます。

※完成予想図はいずれも外構、植栽、外観等実際のものとは多少異なることがあります。

※CG合成の画像の場合、実際とは多少異なる場合があります。

※完成後1年以上を経過した未入居物件が掲載される場合があります。ご了承ください。

※掲載の省エネ性能ラベル内の物件・住棟・号室名称については最新のものに変更されている場合があります。

※概要のエネルギー消費性能、断熱性能、目安光熱費については、表示している省エネ性能ラベルによってデータの内容が異なります。販売戸数が複数の住棟ラベル、または住戸ラベルの場合は、原則建築確認が下りている物件全体の最小~最大を、販売戸数1戸の住戸ラベルの場合はその住戸のデータを表示しています。

ザ・ブランシエラ那覇 物件概要 先着順販売住戸

所在地
沖縄県那覇市牧志3-296-4、297-8(地番)
地図を見る
交通 沖縄都市モノレール「牧志」歩3分 総戸数 17戸
間取り 2LDK・3LDK 専有面積 108.06m2~202.56m2
価格
1億1800万円~3億3700万円
引渡可能時期 即引渡可(諸手続き完了後)

情報更新日:2025/12/3

お問い合わせ先

「ザ・ブランシエラ那覇」棟内モデルルーム

0120-845-078 無料

お問合せの際は『SUUMO(スーモ)を見て』とお伝えいただくとスムーズです。

営業時間:10:00AM~6:00PM

定休日:火・水定休※祝日は除く

【67731556】ザ・ブランシエラ那覇
他の物件も見てみる!

あなたにオススメの物件

PR

条件を変更して物件を探す

ページトップへ戻る
簡単!約2分で完了
以前にもチェックした物件です 簡単!約2分で完了 まずは気軽に資料請求をしてみよう!