"20251207172625:H:0" "20251207172625:H:0" "20251207172625:H:0"
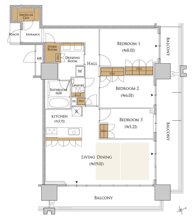
MJR熊本ゲートタワー (間取り図 E-E)

MJR熊本ゲートタワー (間取り図 E-E)

価格未定  (第8期)
SUUMO(スーモ)新築マンションのMJR熊本ゲートタワーの間取り(E-E)詳細情報です。
E-E
  • 所在地 熊本県熊本市西区春日3-2191-2(地番)
  • 交通 JR鹿児島本線「熊本」歩4分
間取りの概要/特徴
価格

未定(第8期)

間取り
  • 3LDK+SR+SIC
専有面積
  • 100.61m2
バルコニーまたは
テラス面積
  • 33.99m2・35.55m2
その他
  • ※バルコニー面積:33.99m2(21~25F)、35.55m2(26~29F)
特徴
キッチン
  • ディスポーザー
  • 浄水器or活水器
立地・配置
  • 角部屋
設備・構造
  • 浴室1.6×2.0M以上
  • リビングダイニング15畳以上
  • 角住戸
  • LD15畳以上

SR:ストアルーム(納戸) WIC:ウォークインクローゼット SIC:シューズインクローゼット PAN:パントリー

【この物件広告についての注釈】

※価格は物件の代金総額を表示しています。消費税が課税される場合は税込み価格を表示しており、10000円未満を切り上げている場合があります。

※住戸別の価格(帯)表記については、そのタイプに含まれるすべての住戸の情報を掲載していない場合があります。住戸タイプと各住戸の価格帯表記について、単位(1000万円・100万円・10万円)が異なる場合があります。

※「モデルルーム」とは、間取りや仕様・設備などを知ることができる施設全般を指し、それらの一部のみ展示している「サンプルルーム」や「ギャラリー」、「インフォメーションセンター」なども含みます。

※完成予想図はいずれも外構、植栽、外観等実際のものとは多少異なることがあります。

※CG合成の画像の場合、実際とは多少異なる場合があります。

※完成後1年以上を経過した未入居物件が掲載される場合があります。ご了承ください。

※掲載の省エネ性能ラベル内の物件・住棟・号室名称については最新のものに変更されている場合があります。

※概要のエネルギー消費性能、断熱性能、目安光熱費については、表示している省エネ性能ラベルによってデータの内容が異なります。販売戸数が複数の住棟ラベル、または住戸ラベルの場合は、原則建築確認が下りている物件全体の最小~最大を、販売戸数1戸の住戸ラベルの場合はその住戸のデータを表示しています。

MJR熊本ゲートタワー 物件概要 第8期

所在地
熊本県熊本市西区春日3-2191-2(地番)
地図を見る
交通 JR鹿児島本線「熊本」歩4分 総戸数 236戸
間取り 2LDK~3LDK 専有面積 58.65m2~112.16m2
価格
未定
引渡可能時期 2026年4月予定
販売スケジュール 販売開始予定 2025年12月上旬

情報更新日:2025/12/5

お問い合わせ先

「MJR熊本ゲートタワー」マンションギャラリー

0120-236-061 無料

お問合せの際は『SUUMO(スーモ)を見て』とお伝えいただくとスムーズです。

営業時間:10:00AM~6:00PM

定休日:火・水曜日

※携帯電話・PHSからもご利用いただけます。

見学予約スケジュール

見学をご希望される日程をお選びください。

12/7
12/8
12/9
12/10
12/11
12/12
12/13
12/14
12/15
12/16
12/17
12/18
12/19
12/20
12/21
12/22
12/23
12/24
12/25
12/26
12/27
12/28
12/29
12/30
12/31
1/1
1/2
1/3
1/4
1/5
1/6
1/7
1/8
1/9
1/10

見学予約メニュー

  • モデルルーム見学会(所要時間:120分)

    ◇◆開催日時:月木金土日祝10:00~13:00~15:30~◆◇

  • 【お忙しい方向け 時短プラン】モデルルーム見学会[60分](所要時間:60分)

    ◇◆開催日時:月木金土日祝10:00~13:00~16:00~◆◇

  • 【オンラインご相談会】(所要時間90分)(所要時間:90分)

    県外などご遠方にお住いの方向けにお使いのPCやタブレット端末で物件のご案内をいたします。
    【Zoom】によるご案内となります。

【67728211】MJR熊本ゲートタワー
他の物件も見てみる!

あなたにオススメの物件

PR

条件を変更して物件を探す

ページトップへ戻る
簡単!約2分で完了
以前、資料請求した物件です
簡単!約2分で完了 まずは気軽に見学予約をしてみよう!
以前にもチェックした物件です
簡単!約2分で完了 まずは気軽に見学予約や資料請求をしてみよう!

モデルルーム見学は予約優先でのご案内になります。

ぜひ、お早めにご予約ください。