"20251207100442:H:0" "20251207100442:H:0" "20251207100442:H:0"
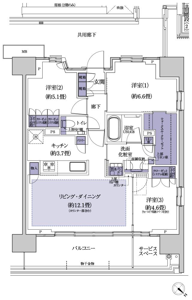
プラウド横浜東神奈川フロント (間取り図 M)

プラウド横浜東神奈川フロント (間取り図 M)

6700万円台~1億1400万円台/予定  ((一般定期借地権)第2期3次)
SUUMO(スーモ)新築マンションのプラウド横浜東神奈川フロントの間取り(M)詳細情報です。
M
  • 所在地 神奈川県横浜市神奈川区東神奈川1-3-2、3-4(地番)
  • 交通 JR京浜東北線「東神奈川」歩3分
間取りの概要/特徴
価格

未定((一般定期借地権)第2期3次)

※権利金/無 保証金/無 敷金/未定((一般定期借地権)第2期3次)

間取り
  • 3LDK+WTC
専有面積
  • 72.42m2
バルコニーまたは
テラス面積
  • 10.08m2
特徴
キッチン
  • ディスポーザー
  • 浄水器or活水器
立地・配置
  • 角部屋
設備・構造
  • 床暖房
  • ワイドスパン
  • 角住戸

N:納戸、FIC:フィットインクローゼット、WIC:ウォークインクローゼット、SIC:シューズインクローク、WTC:ウォークスルークローゼット

【この物件広告についての注釈】

※価格は物件の代金総額を表示しています。消費税が課税される場合は税込み価格を表示しており、10000円未満を切り上げている場合があります。

※住戸別の価格(帯)表記については、そのタイプに含まれるすべての住戸の情報を掲載していない場合があります。住戸タイプと各住戸の価格帯表記について、単位(1000万円・100万円・10万円)が異なる場合があります。

※「モデルルーム」とは、間取りや仕様・設備などを知ることができる施設全般を指し、それらの一部のみ展示している「サンプルルーム」や「ギャラリー」、「インフォメーションセンター」なども含みます。

※完成予想図はいずれも外構、植栽、外観等実際のものとは多少異なることがあります。

※CG合成の画像の場合、実際とは多少異なる場合があります。

※完成後1年以上を経過した未入居物件が掲載される場合があります。ご了承ください。

※掲載の省エネ性能ラベル内の物件・住棟・号室名称については最新のものに変更されている場合があります。

※概要のエネルギー消費性能、断熱性能、目安光熱費については、表示している省エネ性能ラベルによってデータの内容が異なります。販売戸数が複数の住棟ラベル、または住戸ラベルの場合は、原則建築確認が下りている物件全体の最小~最大を、販売戸数1戸の住戸ラベルの場合はその住戸のデータを表示しています。

プラウド横浜東神奈川フロント 物件概要 (一般定期借地権)第2期3次

所在地
神奈川県横浜市神奈川区東神奈川1-3-2、3-4(地番)
地図を見る
交通 JR京浜東北線「東神奈川」歩3分 総戸数 124戸
間取り 2LDK・3LDK 専有面積 62.7m2~81.5m2
予定価格帯
6700万円台~1億1400万円台
引渡可能時期 2026年8月下旬予定
販売スケジュール 販売開始予定 12月下旬

情報更新日:2025/12/3

お問い合わせ先

<プラウド横浜東神奈川フロント>

0120-323-124 無料

お問合せの際は『SUUMO(スーモ)を見て』とお伝えいただくとスムーズです。

営業時間:平日11:00~18:00、土日祝10:00~18:00

定休日:毎週火・水・木曜日

見学予約スケジュール

見学をご希望される日程をお選びください。

12/7
12/8
12/9
12/10
12/11
12/12
12/13
12/14
12/15
12/16
12/17
12/18
12/19
12/20
12/21
12/22
12/23
12/24
12/25
12/26
12/27
12/28
12/29
12/30
12/31
1/1
1/2
1/3
1/4
1/5
1/6
1/7
1/8
1/9
1/10

見学予約メニュー

  • (土日祝)コンセプトルームご案内会[120分](所要時間:120分)

    ◇◆開催日時:土日祝10:00~15:00~◆◇

  • (平日)コンセプトルームご案内会[120分](所要時間:120分)

    ◇◆開催日時:月金11:00~15:00~◆◇

【67730696】プラウド横浜東神奈川フロント
他の物件も見てみる!

あなたにオススメの物件

PR

条件を変更して物件を探す

ページトップへ戻る
簡単!約2分で完了
以前、資料請求した物件です
簡単!約2分で完了 まずは気軽に見学予約をしてみよう!
以前にもチェックした物件です
簡単!約2分で完了 まずは気軽に見学予約や資料請求をしてみよう!

モデルルーム見学は予約優先でのご案内になります。

ぜひ、お早めにご予約ください。