"20251209164316:H:0" "20251209164316:H:0" "20251209164316:H:0"
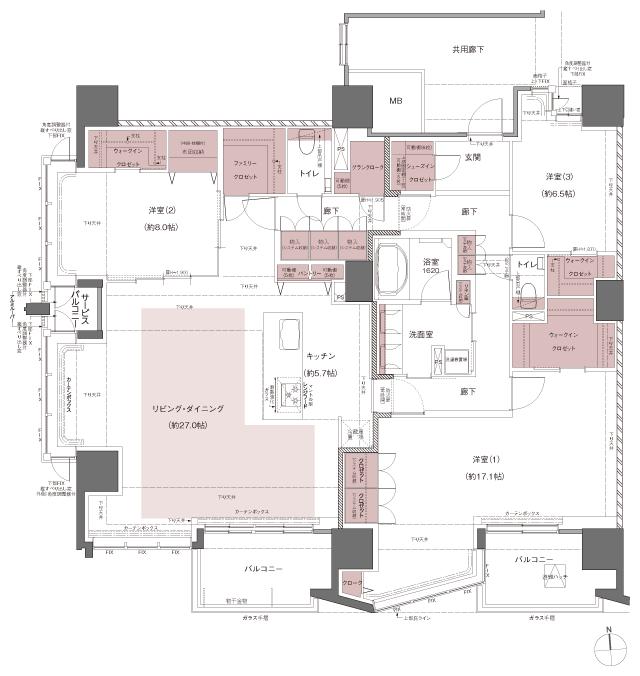
レーベン秋田 THE IMPERIAL TOWER (間取り図 K(SELECT PLAN2))

レーベン秋田 THE IMPERIAL TOWER (間取り図 K(SELECT PLAN2))

1億6942万円  (先着順住戸)
SUUMO(スーモ)新築マンションのレーベン秋田 THE IMPERIAL TOWERの間取り(K(SELECT PLAN2))詳細情報です。
K(SELECT PLAN2)
  • 所在地 秋田県秋田市千秋久保田町3-106(地番)
  • 交通 JR奥羽本線「秋田」歩4分
間取りの概要/特徴
価格

1億6942万円(先着順住戸)

間取り
  • 3LDK+GC+FC+3WIC+SIC
専有面積
  • 160.25m2
バルコニーまたは
テラス面積
  • 13.96m2
その他
  • サービスバルコニー面積:1.68m2 ※基本プランは選択できません
特徴
キッチン
  • ディスポーザー
  • 浄水器or活水器
立地・配置
  • 角部屋
設備・構造
  • 光ファイバー対応
  • 床暖房
  • 浴室1.6×2.0M以上
  • リビングダイニング15畳以上
  • ワイドスパン
  • 角住戸
  • LD15畳以上

※S=サービスルーム(納戸)

【この物件広告についての注釈】

※価格は物件の代金総額を表示しています。消費税が課税される場合は税込み価格を表示しており、10000円未満を切り上げている場合があります。

※住戸別の価格(帯)表記については、そのタイプに含まれるすべての住戸の情報を掲載していない場合があります。住戸タイプと各住戸の価格帯表記について、単位(1000万円・100万円・10万円)が異なる場合があります。

※「モデルルーム」とは、間取りや仕様・設備などを知ることができる施設全般を指し、それらの一部のみ展示している「サンプルルーム」や「ギャラリー」、「インフォメーションセンター」なども含みます。

※完成予想図はいずれも外構、植栽、外観等実際のものとは多少異なることがあります。

※CG合成の画像の場合、実際とは多少異なる場合があります。

※完成後1年以上を経過した未入居物件が掲載される場合があります。ご了承ください。

※掲載の省エネ性能ラベル内の物件・住棟・号室名称については最新のものに変更されている場合があります。

※概要のエネルギー消費性能、断熱性能、目安光熱費については、表示している省エネ性能ラベルによってデータの内容が異なります。販売戸数が複数の住棟ラベル、または住戸ラベルの場合は、原則建築確認が下りている物件全体の最小~最大を、販売戸数1戸の住戸ラベルの場合はその住戸のデータを表示しています。

レーベン秋田 THE IMPERIAL TOWER 物件概要 先着順住戸

所在地
秋田県秋田市千秋久保田町3-106(地番)
地図を見る
交通 JR奥羽本線「秋田」歩4分 総戸数 129戸(他、管理事務室、コワーキングルーム、パーティールーム、ゲストルーム各1戸)
間取り 3LDK 専有面積 160.25m2
価格
1億6942万円
引渡可能時期 2026年3月下旬予定

情報更新日:2025/12/3

お問い合わせ先

タカラレーベン 総合予約受付窓口

0120-050-572 無料

お問合せの際は『SUUMO(スーモ)を見て』とお伝えいただくとスムーズです。

営業時間:9:00AM~6:00PM

定休日:火曜・水曜日(祝日除く)

夜間定休日受付窓口(一次受付)0120-900-902
受付時間/6:00PM~翌9:00AM ※定休日は24時間受付となります。

見学予約スケジュール

見学をご希望される日程をお選びください。

12/9
12/10
12/11
12/12
12/13
12/14
12/15
12/16
12/17
12/18
12/19
12/20
12/21
12/22
12/23
12/24
12/25
12/26
12/27
12/28
12/29
12/30
12/31
1/1
1/2
1/3
1/4
1/5
1/6
1/7
1/8
1/9
1/10
1/11
1/12

見学予約メニュー

  • (土日祝)モデルルーム見学会[120分](所要時間:120分)

    ◇◆開催日時:土日祝10:00~13:30~16:30~◆◇

  • (平日)モデルルーム見学会[120分](所要時間:120分)

    ◇◆開催日時:月木金10:00~13:30~16:30~◆◇

【67728128】レーベン秋田 THE IMPERIAL TOWER
他の物件も見てみる!

あなたにオススメの物件

PR

条件を変更して物件を探す

ページトップへ戻る
簡単!約2分で完了
以前、資料請求した物件です
簡単!約2分で完了 まずは気軽に見学予約をしてみよう!
以前にもチェックした物件です
簡単!約2分で完了 まずは気軽に見学予約や資料請求をしてみよう!

モデルルーム見学は予約優先でのご案内になります。

ぜひ、お早めにご予約ください。