"20251210082818:H:0" "20251210082818:H:0" "20251210082818:H:0"
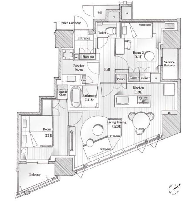
ローレルタワー名古屋千種 (間取り図 N)

ローレルタワー名古屋千種 (間取り図 N)

3158万円~2億5000万円  (第1期2次)
SUUMO(スーモ)新築マンションのローレルタワー名古屋千種の間取り(N)詳細情報です。
N
  • 所在地 愛知県名古屋市千種区内山2丁目1604番(地番)
  • 交通 地下鉄東山線「今池」歩3分
間取りの概要/特徴
価格

6228万円(第1期2次)

間取り
  • 2LDK
専有面積
  • 69.72m2
バルコニーまたは
テラス面積
  • 4.01m2・17.87m2
その他
  • バルコニー面積4.01m2(8~13F・15~18F)・17.87m2(7F) サービスバルコニー面積/2.36m2
特徴
キッチン
  • ディスポーザー
  • 浄水器or活水器
立地・配置
  • 角部屋
設備・構造
  • 光ファイバー対応
  • 床暖房
  • 角住戸

【この物件広告についての注釈】

※価格は物件の代金総額を表示しています。消費税が課税される場合は税込み価格を表示しており、10000円未満を切り上げている場合があります。

※住戸別の価格(帯)表記については、そのタイプに含まれるすべての住戸の情報を掲載していない場合があります。住戸タイプと各住戸の価格帯表記について、単位(1000万円・100万円・10万円)が異なる場合があります。

※「モデルルーム」とは、間取りや仕様・設備などを知ることができる施設全般を指し、それらの一部のみ展示している「サンプルルーム」や「ギャラリー」、「インフォメーションセンター」なども含みます。

※完成予想図はいずれも外構、植栽、外観等実際のものとは多少異なることがあります。

※CG合成の画像の場合、実際とは多少異なる場合があります。

※完成後1年以上を経過した未入居物件が掲載される場合があります。ご了承ください。

※掲載の省エネ性能ラベル内の物件・住棟・号室名称については最新のものに変更されている場合があります。

※概要のエネルギー消費性能、断熱性能、目安光熱費については、表示している省エネ性能ラベルによってデータの内容が異なります。販売戸数が複数の住棟ラベル、または住戸ラベルの場合は、原則建築確認が下りている物件全体の最小~最大を、販売戸数1戸の住戸ラベルの場合はその住戸のデータを表示しています。

ローレルタワー名古屋千種 物件概要 第1期2次

所在地
愛知県名古屋市千種区内山2丁目1604番(地番)
地図を見る
交通 地下鉄東山線「今池」歩3分 総戸数 121戸(他ゲストルーム1戸)
間取り 1LDK~3LDK 専有面積 36.59m2~120.1m2
価格
3158万円~2億5000万円
引渡可能時期 2026年3月中旬予定

情報更新日:2025/12/10

お問い合わせ先

「ローレルタワー名古屋千種」ローレルサロン名古屋

0120-044-121 無料

お問合せの際は『SUUMO(スーモ)を見て』とお伝えいただくとスムーズです。

営業時間:10:00AM~6:00PM

定休日:火・水※祝日は営業

※携帯電話・PHSからもご利用いただけます。

見学予約スケジュール

見学をご希望される日程をお選びください。

12/10
12/11
12/12
12/13
12/14
12/15
12/16
12/17
12/18
12/19
12/20
12/21
12/22
12/23
12/24
12/25
12/26
12/27
12/28
12/29
12/30
12/31
1/1
1/2
1/3
1/4
1/5
1/6
1/7
1/8
1/9
1/10
1/11
1/12
1/13

見学予約メニュー

  • タワーライフを愉しみたい方へ(所要時間:120分)

    開催時間:10:00~ 13:00~ 16:00~

  • アーバンライフを求める方へ(所要時間:120分)

    開催時間:10:00~ 13:00~ 16:00~

  • 徒歩圏で生活を完結させたい方へ(所要時間:120分)

    開催時間:10:00~ 13:00~ 16:00~

【67728389】ローレルタワー名古屋千種
他の物件も見てみる!

あなたにオススメの物件

PR

条件を変更して物件を探す

ページトップへ戻る
簡単!約2分で完了
以前、資料請求した物件です
簡単!約2分で完了 まずは気軽に見学予約をしてみよう!
以前にもチェックした物件です
簡単!約2分で完了 まずは気軽に見学予約や資料請求をしてみよう!

モデルルーム見学は予約優先でのご案内になります。

ぜひ、お早めにご予約ください。