いえとち本舗

いえとち本舗

【山口】家も土地も、まとめてお任せ!ローコスト住宅はいえとち本舗のイエテラス
お気に入りに追加する
山口県防府市新田  Fさん
【1000万円台/防府市/4LDK/32坪】ちょうどいい収納計画
いえとち本舗 【1000万円台/防府市/4LDK/32坪】ちょうどいい収納計画の建築実例画像1
  • 本体価格
    1,600万円1,699万円
    50.0万円53.0万円/坪
  • 延床面積
    105.99m2 (32.0坪)
    敷地面積
    220.04m2 (66.5坪)
    家族構成
    本人(20代)+両親
  • 竣工年月
    2021年6月
    工法
    木造軸組
この会社をもっと知りたくなったら
無料でお届け!まずはカタログ請求

施主Fさんのこだわり

ちょうどいい収納計画の間取り

Fさんが家づくりで最もこだわったのは、ちょうどいい収納計画の家を建てること。特にシューズクローゼットと1階の洋室はこだわったポイント。シューズクローゼットは通常より土間を広くすることで靴好きの施主様も満足の間取りに。太陽光標準搭載など、性能が充実している部分もお気に入り。2階は各部屋にしっかりと収納を計画することで、モノが溢れる心配なくなった。ちょうどいいサイズの収納を計画することで、永くスッキリと生活できる。また、ペットと過ごすため、コンセントの位置も高… 続きを読む

Fさんが家づくりで最もこだわったのは、ちょうどいい収納計画の家を建てること。特にシューズクローゼットと1階の洋室はこだわったポイント。シューズクローゼットは通常より土間を広くすることで靴好きの施主様も満足の間取りに。太陽光標準搭載など、性能が充実している部分もお気に入り。2階は各部屋にしっかりと収納を計画することで、モノが溢れる心配なくなった。ちょうどいいサイズの収納を計画することで、永くスッキリと生活できる。また、ペットと過ごすため、コンセントの位置も高く計画し、快適に過ごしている。

間取り図(4LDK)

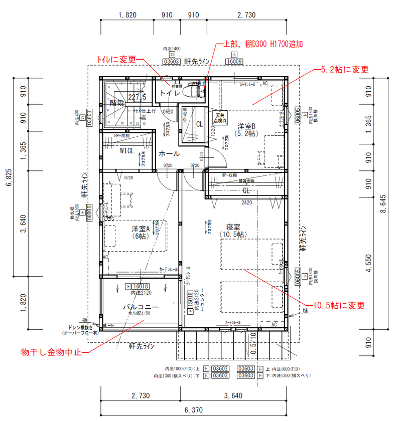
1階
いえとち本舗 【1000万円台/防府市/4LDK/32坪】ちょうどいい収納計画の間取り図(4LDK)1階
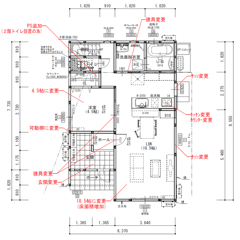
2階
いえとち本舗 【1000万円台/防府市/4LDK/32坪】ちょうどいい収納計画の間取り図(4LDK)2階
この会社をもっと知りたくなったら
無料でお届け!まずはカタログ請求

内外観ギャラリー

この会社をもっと知りたくなったら
無料でお届け!まずはカタログ請求

この会社の他の建築実例を見る

この建築実例が気になった方へおすすめ

この建築実例の詳細情報

この建築実例を建てた店舗情報

住所 山口県山口市大内長野825-1
問い合わせ
083-902-7881
  • ※営業時間内の対応となります。

  • ※お問い合わせの際は「SUUMO(スーモ)を見て」とお伝え下さい。

ホームページ この会社のホームページへ

いえとち本舗のコンテンツ一覧

お問い合わせ

カタログをもらう
商品別カタログ
いえとち本舗のカタログ(IETERRACE(イエテラス)コンセプトブック)
IETERRACE(イエテラス)コンセプトブック
問合コード:1540670001
お問い合わせ先
083-902-7881
  • ※営業時間内の対応となります。

  • ※お問い合わせの際は「SUUMO(スーモ)を見て」とお伝え下さい。

  • 山口県山口市大内長野825-1

  • 定休日:水・木曜日

この会社のホームページへ

この会社が気になったら

カタログをもらう
商品別カタログ
いえとち本舗のカタログ(IETERRACE(イエテラス)コンセプトブック)
IETERRACE(イエテラス)コンセプトブック
問合コード:1540670001

関連キーワード

この建築実例のその他の特徴
ページトップへ戻る