ジューケン

ジューケン

LIXIL賞10回受賞を誇るデザイン力で、夢をカタチに
お気に入りに追加する
広島県広島市  Mさん
【狭小地・街中】ビルに挟まれた間口4.5mの狭小地に広がりと夢を詰め込んだスキップフロアの家
ジューケン 【狭小地・街中】ビルに挟まれた間口4.5mの狭小地に広がりと夢を詰め込んだスキップフロアの家の建築実例画像1
  • 本体価格
    -
  • 延床面積
    74.98m2 (22.6坪)
    敷地面積
    75.61m2 (22.8坪)
    家族構成
    夫婦+子ども2人
  • 竣工年月
    -
    工法
    木造軸組
この会社をもっと知りたくなったら
無料でお届け!まずはカタログ請求

施主Mさんのこだわり

街中・狭小地にハイスペックな住まい

広島県外出身のご夫婦が広島市に住もうと決断され、選んだのは両隣がビル、約22坪で間口4.5mと限られた狭小地。「限られたスペースを有効活用したい」という要望を落とし込みながら課題解決に向けて何度もミーティングを重ねた。その結果、「空間の有効活用」を暮らしの中でとても愉しまれ、高められているMさん。『図面上の数字のような狭さは感じません!』とご夫婦。

広島県外出身のご夫婦が広島市に住もうと決断され、選んだのは両隣がビル、約22坪で間口4.5mと限られた狭小地。「限られたスペースを有効活用したい」という要望を落とし込みながら課題解決に向けて何度もミーティングを重ねた。その結果、「空間の有効活用」を暮らしの中でとても愉しまれ、高められているMさん。『図面上の数字のような狭さは感じません!』とご夫婦。

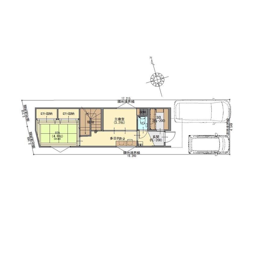
間取り図(4LDK)

1階
ジューケン 【狭小地・街中】ビルに挟まれた間口4.5mの狭小地に広がりと夢を詰め込んだスキップフロアの家の間取り図(4LDK)1階
2階
ジューケン 【狭小地・街中】ビルに挟まれた間口4.5mの狭小地に広がりと夢を詰め込んだスキップフロアの家の間取り図(4LDK)2階
3階
ジューケン 【狭小地・街中】ビルに挟まれた間口4.5mの狭小地に広がりと夢を詰め込んだスキップフロアの家の間取り図(4LDK)3階
この会社をもっと知りたくなったら
無料でお届け!まずはカタログ請求

内外観ギャラリー

この会社をもっと知りたくなったら
無料でお届け!まずはカタログ請求

この建築実例の担当者

ジューケンの担当者画像
代表取締役
吉川富志夫
得意分野
“らしさ”を素敵に表現することに拘った設計

この会社の他の建築実例を見る

この建築実例が気になった方へおすすめ

  • この建築実例のカタログをもらう

    ジューケンのカタログ画像
    総合カタログ
    JUKEN GUIDE BOOK
    ジューケンの家づくりを紹介する冊子とDVDです

この建築実例の詳細情報

この建築実例を建てた店舗情報

住所 広島県広島市中区光南4丁目4-27
問い合わせ
082-246-3741
  • ※営業時間内の対応となります。

  • ※お問い合わせの際は「SUUMO(スーモ)を見て」とお伝え下さい。

ホームページ この会社のホームページへ

ジューケンのコンテンツ一覧

お問い合わせ

カタログをもらう
総合カタログ
ジューケンのカタログ(JUKEN GUIDE BOOK)
JUKEN GUIDE BOOK
問合コード:1225400001
お問い合わせ先
082-246-3741
  • ※営業時間内の対応となります。

  • ※お問い合わせの際は「SUUMO(スーモ)を見て」とお伝え下さい。

  • 広島県広島市中区光南4丁目4-27

  • 定休日:水曜日

この会社のホームページへ

この会社が気になったら

カタログをもらう
総合カタログ
ジューケンのカタログ(JUKEN GUIDE BOOK)
JUKEN GUIDE BOOK
問合コード:1225400001

関連キーワード

ページトップへ戻る