コラボハウス一級建築士事務所

コラボハウス一級建築士事務所

ちょっと「カッコイイ」がちょうどいい。設計士とつくるデザイナーズ住宅
お気に入りに追加する
【2000万円台/約38坪/間取図有】子育て中の設計士と建てた、自然素材が癒しのLDKとモダンなキューブ型の家
コラボハウス一級建築士事務所 【2000万円台/約38坪/間取図有】子育て中の設計士と建てた、自然素材が癒しのLDKとモダンなキューブ型の家の建築実例画像1
  • 本体価格
    2,300万円2,399万円
    59.2万円61.7万円/坪
  • 延床面積
    128.57m2 (38.8坪)
    敷地面積
    228.82m2 (69.2坪)
    家族構成
    夫婦+子ども1人
  • 竣工年月
    2014年12月
    工法
    木造軸組
この会社をもっと知りたくなったら
無料でお届け!まずはカタログ請求

施主Yさんのこだわり

自然素材に囲まれた癒しのLDKで、家族の時間を紡いでいきたい

Y邸の間取りは、意外なほどスンナリと決まった。その分、内装の素材選びやカラーリングには、時間をかけて取り組んだという。もっともこだわったのが、家族が集うLDKだ。南に開いた大きな窓から自然光がやさしく射し込むこの空間を、心から寛げる場所にしたいと、手足に直接触れる素材選びには特にこだわった。床材として選んだのはオークの無垢材。密度が高く、重く硬いオークは、耐水性にもすぐれた人気の床材。木目の美しさや素足に心地よい肌触りも、Yさんがオークを選んだ理由のひとつ… 続きを読む

Y邸の間取りは、意外なほどスンナリと決まった。その分、内装の素材選びやカラーリングには、時間をかけて取り組んだという。もっともこだわったのが、家族が集うLDKだ。南に開いた大きな窓から自然光がやさしく射し込むこの空間を、心から寛げる場所にしたいと、手足に直接触れる素材選びには特にこだわった。床材として選んだのはオークの無垢材。密度が高く、重く硬いオークは、耐水性にもすぐれた人気の床材。木目の美しさや素足に心地よい肌触りも、Yさんがオークを選んだ理由のひとつだ。壁材には、調湿・消臭効果もある漆喰が使われている。Yさんのこだわりはその色合い。漆喰の塗り壁では白が選ばれることが多いが、Yさんが選んだのはアイボリーに近い「エクリュ」。明るい蛍光灯のもとで働く疲れた目を、やさしい色合いの空間が癒してくれる。さらに、Yさんのこだわりは天井にまでおよんでいる。LDK全面の天井は、ウォールナット色に塗装された杉の無垢材で化粧されているのだ。そんな自然素材に囲まれた空間の中で、家族の時間を積み重ねていく。Yさんが理想としていた暮らしは、こうして実現した。家づくりのことを何も知らなかったYさんたちを、理想の家へと導いてくれた、設計士やインテリアコーディネーターに、とても感謝しているようだった。

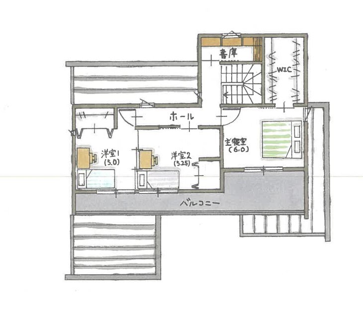
間取り図(4LDK)

1階
コラボハウス一級建築士事務所 【2000万円台/約38坪/間取図有】子育て中の設計士と建てた、自然素材が癒しのLDKとモダンなキューブ型の家の間取り図(4LDK)1階
2階
コラボハウス一級建築士事務所 【2000万円台/約38坪/間取図有】子育て中の設計士と建てた、自然素材が癒しのLDKとモダンなキューブ型の家の間取り図(4LDK)2階
この会社をもっと知りたくなったら
無料でお届け!まずはカタログ請求

内外観ギャラリー

この会社をもっと知りたくなったら
無料でお届け!まずはカタログ請求

この会社の他の建築実例を見る

この建築実例が気になった方へおすすめ

この建築実例の詳細情報

この建築実例を建てた店舗情報

店舗名 中百舌鳥オープンスタジオ
住所 大阪府堺市北区百舌鳥梅町3‐47-1 グレース中百舌鳥トキワ1F
問い合わせ
072-245-9850
  • ※営業時間内の対応となります。

  • ※お問い合わせの際は「SUUMO(スーモ)を見て」とお伝え下さい。

ホームページ この会社のホームページへ

コラボハウス一級建築士事務所のコンテンツ一覧

お問い合わせ

カタログをもらう
プラン集
コラボハウス一級建築士事務所のカタログ(施工事例特集~理想の暮らしと憧れの住まい~)
施工事例特集~理想の暮らしと憧れの住まい~
問合コード:1624520001
お問い合わせ先
072-245-9850
  • ※営業時間内の対応となります。

  • ※お問い合わせの際は「SUUMO(スーモ)を見て」とお伝え下さい。

中百舌鳥オープンスタジオ
  • 大阪府堺市北区百舌鳥梅町3‐47-1 グレース中百舌鳥トキワ1F

  • 定休日:12月29日~1月3日

この会社のホームページへ

この会社が気になったら

カタログをもらう
プラン集
コラボハウス一級建築士事務所のカタログ(施工事例特集~理想の暮らしと憧れの住まい~)
施工事例特集~理想の暮らしと憧れの住まい~
問合コード:1624520001

関連キーワード

この建築実例のその他の特徴
ページトップへ戻る