ソーフィールドホーム

ソーフィールドホーム

デザインにも性能にもこだわり満載 優れたコストパフォーマンスが魅力
お気に入りに追加する
各部屋にエアコンを「設置しない」海外ホテルを手本に建てた快適な家
ソーフィールドホーム 各部屋にエアコンを「設置しない」海外ホテルを手本に建てた快適な家の建築実例画像1
  • 本体価格
    2,500万円2,999万円
    78.7万円94.4万円/坪
  • 延床面積
    105.08m2 (31.7坪)
    敷地面積
    381.67m2 (115.4坪)
    家族構成
    夫婦+母+子ども2人+猫
  • 竣工年月
    2022年2月
    工法
    木造軸組
この会社をもっと知りたくなったら
無料でお届け!まずはカタログ請求

施主Kさんのこだわり

洗練されたモダンスタイルな邸宅で寛ぎの時間を過ごす

「細部にわたるこだわりを伝えると、さらに良い提案となって返ってくるので打ち合わせが楽しみでした。柔軟に対応してくださり、満足のいく家になりました。ポイントは良い工務店との出会い。これに尽きます。」と家づくりの感想を語るKさん。こだわりの照明を施し、家全体海外ホテルを手本にトータルコーディネート。どの空間にいても家族と同じ空気を感じられる憩いの邸宅に。住み心地について「想像以上に全館空調が快適。家中どこでも温度差がなく、各部屋のエアコンが不要なので景観も損な… 続きを読む

「細部にわたるこだわりを伝えると、さらに良い提案となって返ってくるので打ち合わせが楽しみでした。柔軟に対応してくださり、満足のいく家になりました。ポイントは良い工務店との出会い。これに尽きます。」と家づくりの感想を語るKさん。こだわりの照明を施し、家全体海外ホテルを手本にトータルコーディネート。どの空間にいても家族と同じ空気を感じられる憩いの邸宅に。住み心地について「想像以上に全館空調が快適。家中どこでも温度差がなく、各部屋のエアコンが不要なので景観も損なわれません。猫の飼育環境も快適で、花粉症にも配慮されていると思います。おかげでおうち時間が増えました。」とデザインだけでなく毎日を快適に暮らすための機能性も考え抜かれた住空間となった。

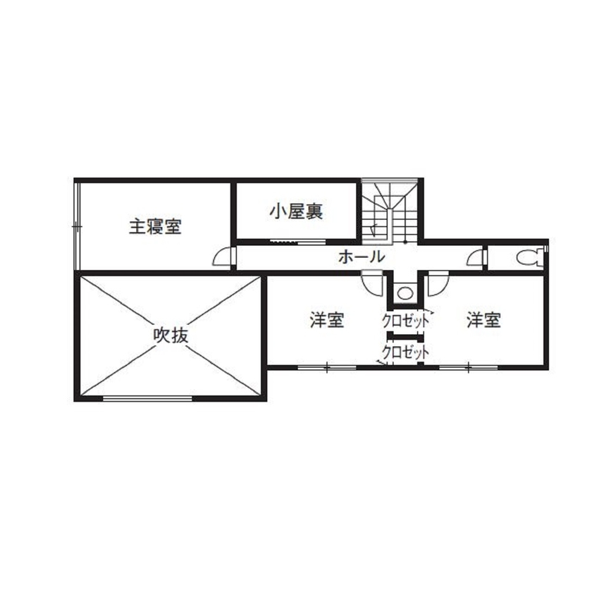
間取り図(4LDK)

1階
ソーフィールドホーム 各部屋にエアコンを「設置しない」海外ホテルを手本に建てた快適な家の間取り図(4LDK)1階
2階
ソーフィールドホーム 各部屋にエアコンを「設置しない」海外ホテルを手本に建てた快適な家の間取り図(4LDK)2階
この会社をもっと知りたくなったら
無料でお届け!まずはカタログ請求

内外観ギャラリー

この会社をもっと知りたくなったら
無料でお届け!まずはカタログ請求

この会社の他の建築実例を見る

この建築実例が気になった方へおすすめ

この建築実例の詳細情報

この建築実例を建てた店舗情報

住所 群馬県伊勢崎市連取町3083-11
問い合わせ
0270-20-1611
  • ※営業時間内の対応となります。

  • ※お問い合わせの際は「SUUMO(スーモ)を見て」とお伝え下さい。

ホームページ この会社のホームページへ

ソーフィールドホームのコンテンツ一覧

お問い合わせ

カタログをもらう
総合カタログ
ソーフィールドホームのカタログ(ソーフィールドホーム カタログ)
ソーフィールドホーム カタログ
問合コード:1171470001
お問い合わせ先
0270-20-1611
  • ※営業時間内の対応となります。

  • ※お問い合わせの際は「SUUMO(スーモ)を見て」とお伝え下さい。

  • 群馬県伊勢崎市連取町3083-11

  • 定休日:-

この会社のホームページへ

この会社が気になったら

カタログをもらう
総合カタログ
ソーフィールドホームのカタログ(ソーフィールドホーム カタログ)
ソーフィールドホーム カタログ
問合コード:1171470001

関連キーワード

この建築実例のその他の特徴
ページトップへ戻る