遊友建築工房

遊友建築工房

プロ集団と一緒につくる「自分らしいデザイン×心地よい自然素材の家」
お気に入りに追加する
兵庫県神戸市北区  Mさん
【神戸市/2000万円台/間取り図有】ガレージ上のウッドデッキにつながるLDK。光に満ちたリラックス空間
遊友建築工房 【神戸市/2000万円台/間取り図有】ガレージ上のウッドデッキにつながるLDK。光に満ちたリラックス空間の建築実例画像1
  • 本体価格
    2,000万円2,499万円
    56.8万円71.0万円/坪
  • 延床面積
    116.49m2 (35.2坪)
    敷地面積
    210.28m2 (63.6坪)
    家族構成
    夫婦+子ども1人
  • 竣工年月
    2012年1月
    工法
    木造軸組
この会社をもっと知りたくなったら
無料でお届け!まずはカタログ請求

施主Mさんのこだわり

趣味のバイクや車、アウトドア用品もたっぷりと収納できる掘り込みガレージ

外観・内観ともにスタイリッシュなM氏邸。道路との高低差を活かしてつくった掘り込みガレージは、大型バイクに乗るなど趣味の多いMさんの希望を取り入れたもの。車やバイクはもちろん、ガレージ・アウトドア用品を一挙に収められる広さがある。リビング・ダイニングは天井を高く取り、ウッドデッキ側の一面はすべてをガラス張りに。自然光がたっぷりと入り、フラットにつながる広いウッドデッキはアウトドアにあるもう一つのリビングとして使っている。塀を設けているので、プライバシーも確保… 続きを読む

外観・内観ともにスタイリッシュなM氏邸。道路との高低差を活かしてつくった掘り込みガレージは、大型バイクに乗るなど趣味の多いMさんの希望を取り入れたもの。車やバイクはもちろん、ガレージ・アウトドア用品を一挙に収められる広さがある。リビング・ダイニングは天井を高く取り、ウッドデッキ側の一面はすべてをガラス張りに。自然光がたっぷりと入り、フラットにつながる広いウッドデッキはアウトドアにあるもう一つのリビングとして使っている。塀を設けているので、プライバシーも確保。子どもが遊ぶ姿を眺めながら、ゆったりと過ごすことができる(設計:一級建築士/遅宗信氏)。

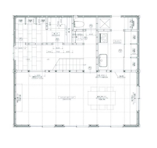
間取り図(2LDK)

1階
遊友建築工房 【神戸市/2000万円台/間取り図有】ガレージ上のウッドデッキにつながるLDK。光に満ちたリラックス空間の間取り図(2LDK)1階
2階
遊友建築工房 【神戸市/2000万円台/間取り図有】ガレージ上のウッドデッキにつながるLDK。光に満ちたリラックス空間の間取り図(2LDK)2階
この会社をもっと知りたくなったら
無料でお届け!まずはカタログ請求

内外観ギャラリー

この会社をもっと知りたくなったら
無料でお届け!まずはカタログ請求

この会社の他の建築実例を見る

この建築実例が気になった方へおすすめ

この建築実例の詳細情報

この建築実例を建てた店舗情報

住所 兵庫県尼崎市武庫之荘1-20-13 YUYU PARK 3F
問い合わせ
0120-11-8072
  • ※営業時間内の対応となります。

  • ※お問い合わせの際は「SUUMO(スーモ)を見て」とお伝え下さい。

ホームページ この会社のホームページへ

遊友建築工房のコンテンツ一覧

お問い合わせ

カタログをもらう
総合カタログ
遊友建築工房のカタログ(【USMORE】YU-YU STYLE 総合カタログ)
【USMORE】YU-YU STYLE 総合カタログ
問合コード:1660640001
お問い合わせ先
0120-11-8072
  • ※営業時間内の対応となります。

  • ※お問い合わせの際は「SUUMO(スーモ)を見て」とお伝え下さい。

  • 兵庫県尼崎市武庫之荘1-20-13 YUYU PARK 3F

  • 定休日:なし(年末年始・夏期休暇あり)

この会社のホームページへ

この会社が気になったら

カタログをもらう
総合カタログ
遊友建築工房のカタログ(【USMORE】YU-YU STYLE 総合カタログ)
【USMORE】YU-YU STYLE 総合カタログ
問合コード:1660640001

関連キーワード

この建築実例のその他の特徴
ページトップへ戻る