1. 不動産・住宅サイト SUUMO > 
  2. 注文住宅・ハウスメーカー > 
  3. 関西 > 
  4. 大阪府 > 
  5. 高橋開発の注文住宅 > 
  6. 【断熱等級5/耐震等級3】ZEH水準のシュッとした家withキッチン 枚方市藤阪
高橋開発の注文住宅
高橋開発の注文住宅

家族のものがたりを大切にする家づくり

お気に入りに
追加する
モデルハウス・イベント来場特典

【断熱等級5/耐震等級3】ZEH水準のシュッとした家withキッチン 枚方市藤阪

高性能で長期優良住宅仕様×機能的なキッチン×シュッとしたデザイン。

テイスト
シンプルデザイン、高性能住宅(耐震・ZEHなど)
ライフスタイル
収納充実・動線配慮で家事ラクな暮らし、生活スタイルに合わせた等身大の暮らし
【断熱等級5/耐震等級3】ZEH水準のシュッとした家withキッチン 枚方市藤阪1
エントランスや外観デザインまで、洗練された装いの上質感が感じられる佇まい
【断熱等級5/耐震等級3】ZEH水準のシュッとした家withキッチン 枚方市藤阪2
内観デザインもシンプルに徹し気持ちよく過ごせる空間に。バルコニーとの一体感でより広く感じられる工夫も
【断熱等級5/耐震等級3】ZEH水準のシュッとした家withキッチン 枚方市藤阪3
豊富な収納で片付けやすいキッチンに。ダイニングテーブルは配膳しやすく会話も弾む、横並びのレイアウト
【断熱等級5/耐震等級3】ZEH水準のシュッとした家withキッチン 枚方市藤阪4
たっぷりと片付けられるパントリーは、あると便利な冷凍庫も置けるようにプランニングしている
【断熱等級5/耐震等級3】ZEH水準のシュッとした家withキッチン 枚方市藤阪5
モデルでは窓やガラスの工夫などのプライバシーコードの設定で、カーテンをつけずに過ごせる住空間を提案
【断熱等級5/耐震等級3】ZEH水準のシュッとした家withキッチン 枚方市藤阪6
子どもたちの遊び場や宿題をする場所として、LDKとの一体感のある場所にタタミコーナーを設けた
【断熱等級5/耐震等級3】ZEH水準のシュッとした家withキッチン 枚方市藤阪7
バルコニーでは、バーベキューやプール遊びなどをのびのびと楽しめる住まいとなっている
【断熱等級5/耐震等級3】ZEH水準のシュッとした家withキッチン 枚方市藤阪8
忙しい朝でも快適に使えるように洗面ボウルは二つ設けたタイプを採用。帰宅後に直行しやすい位置に設けた
【断熱等級5/耐震等級3】ZEH水準のシュッとした家withキッチン 枚方市藤阪9
ガスの洗濯乾燥機を置けるようにし、毎日の家事をラクに。玄関から浴室まで直行できる動線も魅力
【断熱等級5/耐震等級3】ZEH水準のシュッとした家withキッチン 枚方市藤阪10
バルコニーの壁を高くすることで、プライバシーを守りながらも光を採り込んで、気持ちよく過ごせる寝室に
【断熱等級5/耐震等級3】ZEH水準のシュッとした家withキッチン 枚方市藤阪11
子どもの成長に合わせて使えるように、仕切ることもできるようにした子ども部屋
【断熱等級5/耐震等級3】ZEH水準のシュッとした家withキッチン 枚方市藤阪12
玄関先には靴や上着、鞄なども片付けられる機能的なシューズクロークと玄関収納を設けている

デザインも性能も納得の住まい。豊富な収納や工夫を凝らした動線で暮らしやすさも追求

【所要時間2時間程度】先行で公開中のモデルハウスと同様に、外観と内観ともにシュッとしたデザインを叶えている。こちらも長期優良住宅仕様の高い性能を備えた長く快適に暮らせる住まい。特にキッチンにこだわって、大容量のカップボードを備えたほか、キッチンの隣には冷凍庫も置けるウォークスルーパントリーを設けるなど、スッキリと片付けられて使いやすいキッチンを提案している。シューズクロークからファミリークローゼットへの動線や、手洗いからパントリーへの動線、玄関から直行できる位置に設けた浴室など、暮らしやすい動線設計を取り入れているのもポイントの一つ。大きな吹抜けの効果で、あふれる開放感を生み出した明るい吹抜けのリビングや、遊び場や宿題の場所として便利な、気配を感じながら過ごせるタタミコーナーなど、工夫が満載。こちらもぜひ訪れて一つずつ確認してみよう。

このモデルハウスの見どころ・特長

  • 【断熱等級5/耐震等級3】ZEH水準のシュッとした家withキッチン 枚方市藤阪の見どころ1
    採光の工夫を凝らした吹抜けや、機能的なキッチンなど心地よく暮らせる空間を確認しよう

    末永く愛される、シンプルに徹した外観や内観のデザインから、暮らしやすい工夫までじっくりと確認しよう。プライバシーを守る工夫を凝らしながらも明るく開放的に過ごせるリビングや、豊富な収納で使いやすく片付けやすさも叶えたこだわりのキッチンなど、見どころが満載となっている。

  • 【断熱等級5/耐震等級3】ZEH水準のシュッとした家withキッチン 枚方市藤阪の見どころ2
    希望に応じて、土地についてや家づくりについてなど、あらゆる住まいの相談にも対応

    一通りの見学が終われば、土地探しや資金について、家づくりの疑問点など、あらゆる住まいの相談にも対応しているので、希望があればぜひ気軽に相談してみよう。

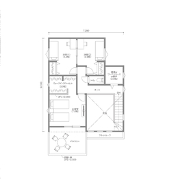
間取り図

  • 1階
    【断熱等級5/耐震等級3】ZEH水準のシュッとした家withキッチン 枚方市藤阪の間取り図(1階)
  • 2階
    【断熱等級5/耐震等級3】ZEH水準のシュッとした家withキッチン 枚方市藤阪の間取り図(2階)

モデルハウス詳細データ

所在地 大阪府枚方市藤阪南町2-5
延床面積 119.03m2
間取り 3LDK+2S
想定家族構成 夫婦+子ども2人
完成年月 2024年7月
予約締切 見学したい日の前日まで
電話番号
072-817-9090
  • ※営業時間内の対応となります。

  • ※お問い合わせの際は「SUUMO(スーモ)を見て」とお伝え下さい。

営業時間 10:00~19:00
ホームページリンク この会社のホームページへ

2024年10月30日より掲載
問合コード:0583690001008

アクセス

大阪府枚方市藤阪南町2-5
JR学研都市線「藤阪」駅より徒歩約4分

モデルハウス見学予約フォーム

※こちらのフォームに必要事項を入力し『「内容確認」へ進む』ボタンをクリックしてください。

  1. 【1】入力
  2. 【2】確認
  3. 【3】完了

必須は必須項目です。必ず入力ください。

お名前(全角)

必須

氏名

完了

ふりがな
※任意

ご連絡先

E-mailアドレス
(半角英数)

必須

※PCアドレス推奨

※確認のご連絡を差し上げる場合があります。

完了

電話番号
(半角数字)

必須

※確認のご連絡を差し上げる場合があります。

完了

ご希望の連絡時間帯
※任意

見学希望日

必須

カレンダーから指定
  • 2025年 12月
  • 2026年 1月
  • 2026年 2月
  • 2026年 3月
  • 2026年 4月
  • 2026年 5月
  • 2026年 6月
  • 2026年 7月
  • 2026年 8月
  • 2026年 9月
  • 2026年 10月
  • 2026年 11月
30 1 2 3 4 5 6
7 8 9 10 11 12 13
14 15 16 17 18 19 20
21 22 23 24 25 26 27
28 29 30 31 1 2 3
28 29 30 31 1 2 3
4 5 6 7 8 9 10
11 12 13 14 15 16 17
18 19 20 21 22 23 24
25 26 27 28 29 30 31
1 2 3 4 5 6 7
8 9 10 11 12 13 14
15 16 17 18 19 20 21
22 23 24 25 26 27 28
1 2 3 4 5 6 7
8 9 10 11 12 13 14
15 16 17 18 19 20 21
22 23 24 25 26 27 28
29 30 31 1 2 3 4
29 30 31 1 2 3 4
5 6 7 8 9 10 11
12 13 14 15 16 17 18
19 20 21 22 23 24 25
26 27 28 29 30 1 2
26 27 28 29 30 1 2
3 4 5 6 7 8 9
10 11 12 13 14 15 16
17 18 19 20 21 22 23
24 25 26 27 28 29 30
31 1 2 3 4 5 6
31 1 2 3 4 5 6
7 8 9 10 11 12 13
14 15 16 17 18 19 20
21 22 23 24 25 26 27
28 29 30 1 2 3 4
28 29 30 1 2 3 4
5 6 7 8 9 10 11
12 13 14 15 16 17 18
19 20 21 22 23 24 25
26 27 28 29 30 31 1
26 27 28 29 30 31 1
2 3 4 5 6 7 8
9 10 11 12 13 14 15
16 17 18 19 20 21 22
23 24 25 26 27 28 29
30 31 1 2 3 4 5
30 31 1 2 3 4 5
6 7 8 9 10 11 12
13 14 15 16 17 18 19
20 21 22 23 24 25 26
27 28 29 30 1 2 3
27 28 29 30 1 2 3
4 5 6 7 8 9 10
11 12 13 14 15 16 17
18 19 20 21 22 23 24
25 26 27 28 29 30 31
1 2 3 4 5 6 7
8 9 10 11 12 13 14
15 16 17 18 19 20 21
22 23 24 25 26 27 28
29 30 1 2 3 4 5

完了

希望時間帯

必須

営業時間: 10:00~19:00

完了

見学間近の予約のため、ご質問は直接お問い合わせ下さい。 お問い合わせ先:072-817-9090
※お問い合わせの際は「SUUMO(スーモ)注文住宅を見た」とお伝えになるとスムーズです。

SUUMOお役立ちメルマガ・アンケート
お役立ち情報の送付希望

※配信を希望しない場合は、「希望しない」にチェックを入れてください。

【ご注意】
1.ご予約いただきました内容に関して、施工会社の担当者よりご連絡させて頂く場合がございます。
集合場所、時間等に関してご質問がある場合は、恐れ入りますが直接お問い合わせください。
2.キャンセルや日程の変更があった場合、直接店舗へご連絡ください。
3.定休日・営業時間外のご予約は原則お受けできかねますので、予めご了承ください。

質問や建築のご予定など

※以下は必須の入力項目ではありませんが、ご入力いただくと今後の流れがスムーズに行えます。

現在のご住所

郵便番号
(半角数字)

ご住所
(全角)

※番地・建物名まで忘れずご記入ください

建築予定時期
建築予算(土地予算除く)
建築予定地

建築内容
年齢  

現在の状況






その他、ご要望があればご記入ください。

【ご注意】
1.ご予約いただきました内容に関して、施工会社の担当者よりご連絡させて頂く場合がございます。
集合場所、時間等に関してご質問がある場合は、恐れ入りますが直接お問い合わせください。
2.キャンセルや日程の変更があった場合、直接店舗へご連絡ください。
3.定休日・営業時間外のご予約は原則お受けできかねますので、予めご了承ください。
このモデルハウスと同じ所在地からハウスメーカー・工務店を探す
このモデルハウスと同じ所在地から展示場を探す

【モデルハウスの本体価格について】
掲載中のモデルハウスの中には一部参考本体価格の記載があるものがございます。価格は全て消費税相当金額を含みます。各社にお問い合わせください。また、モデルハウス情報の参考本体価格は施工当時のもので、現在の価格とは異なる場合があります。詳細は各社にお問い合わせください

お問い合わせ
  • お問い合わせ先
    072-817-9090
    • ※営業時間内の対応となります。

    • ※お問い合わせの際は「SUUMO(スーモ)を見て」とお伝え下さい。

    【断熱等級5/耐震等級3】ZEH水準のシュッとした家withキッチン 枚方市藤阪
    大阪府枚方市藤阪南町2-5
カタログ一覧

高橋開発の注文住宅のカタログ一覧です。無料で請求できます。1社で請求できるカタログ数は3件までです。

ページトップへ戻る